Ivy Bank, Dunbar Road, Haddington, East Lothian, EH41 3PN
Offers Over £725,000
Detached House
5 Bedrooms
2 Bathrooms
3 Reception Rooms
About 0.30 Acres
Private Garden
Garage
Property Description
An attractive 5-bedroom late Georgian detached villa, with a large south facing walled garden and various outbuildings, situated within the historic market town of Haddington and within easy commuting distance of Edinburgh.
The spacious C listed family home dates from 1837 and displays some beautiful period features to include parquet flooring within the entrance hall, black and white tiled flooring in the vestibule, decorative stair rods and banister rail, large sash and case windows with working shutters and superb original fire surrounds in the sitting and dining room.
The large, south facing walled garden is beautifully maintained and feels incredibly private. Mainly laid to lawn, there are a variety of mature trees and shrubs as well as a delightful summer house, gravel sun terrace and a patio with a pergola that catches the evening sun.
In addition there is a rear courtyard offering further outdoor seating with access to various outbuildings as well as a garage.
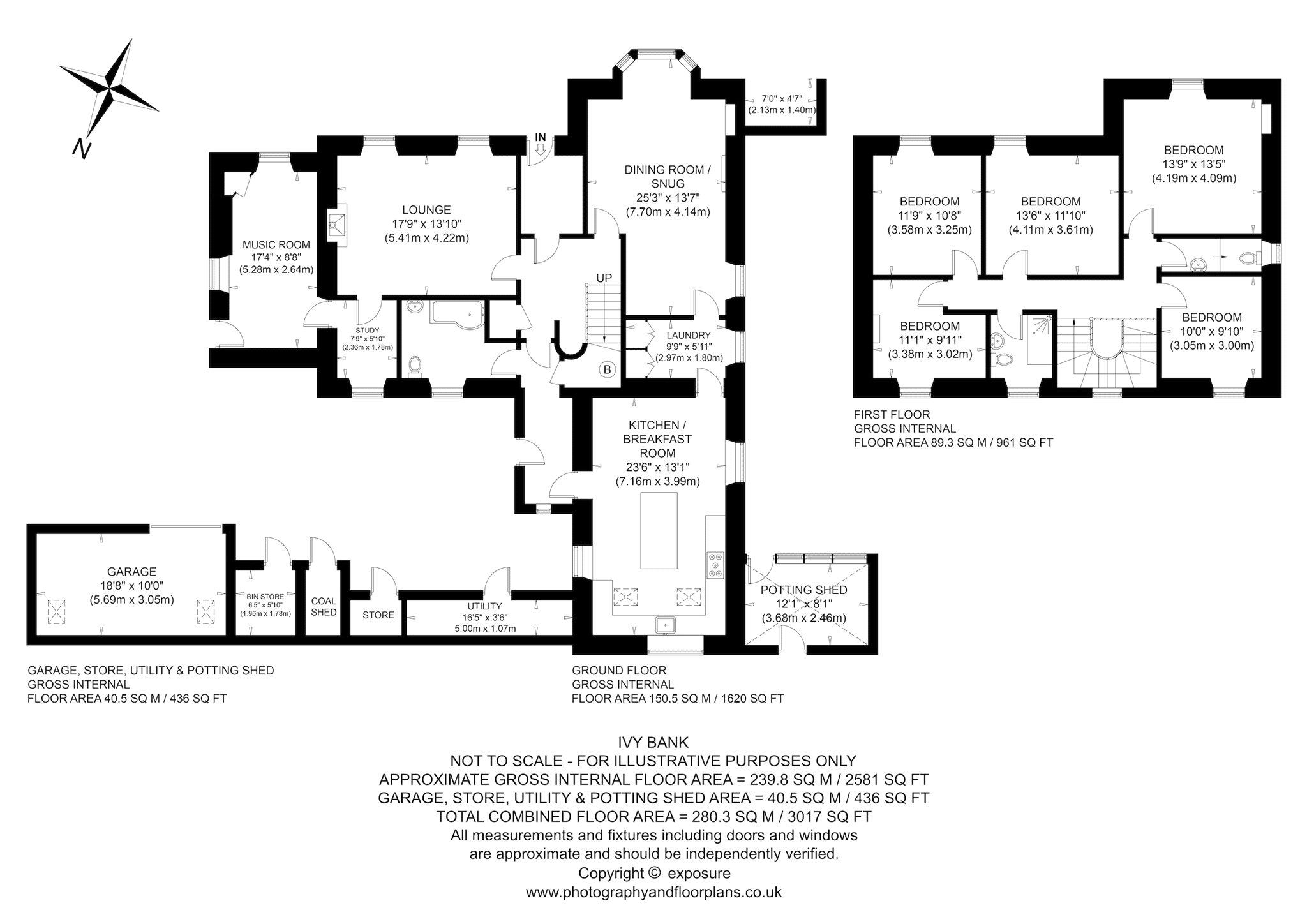
Summary of Accommodation
Ground Floor: Entrance Vestibule, Hall, Sitting Room, Dining Room, Dining Kitchen, Family Room, Family Bathroom, Study and Store/Utility Room
First Floor: Landing, Principal Bedroom, Four Further Double Bedrooms, Family Shower Room and additional WC
Garden: South facing walled garden, mainly laid to lawn, bordered by mature trees and herbaceous borders, together with a large gravel sun terrace and rear courtyard.
Outbuildings: Garage, Four Stone Outbuildings, Summerhouse, Woodstore and Potting Shed
About: 0.30 acres
More Details
Council Tax: Band G
EPC: Band D
Tenure: Freehold
Your home may be repossessed if you do not keep up repayments on your mortgage. There may be a fee for mortgage advice. The actual amount you pay will depend upon your circumstances.
Similar Properties
Looking To Sell Or Let?
Rettie is one of the most trusted and well-respected names in property. Our unrivalled market knowledge helps people from around the world buy, sell, let and develop property in Scotland and the North East of England - from city apartments and rural cottages to large townhouses and prime country homes, farms and estates. We deal with some of the most prestigious properties on the market, but provide the same exceptional standards of service and value for money to all our clients.











































































