Barn 2, Kingswood, Leadburn, Scottish Borders, EH46 7BW
Offers Over £80,000
Detached
3 Bedrooms
3 Bathrooms
1 Reception Room
Private Garden
Off Street Parking
Property Description
An exciting opportunity to purchase a fully serviced plot measuring approximately 0.10 Acres, with full planning permission to convert a former steading into a 2-bedroom home, situated in stunning rural surroundings, yet still within commuting distance of Edinburgh.
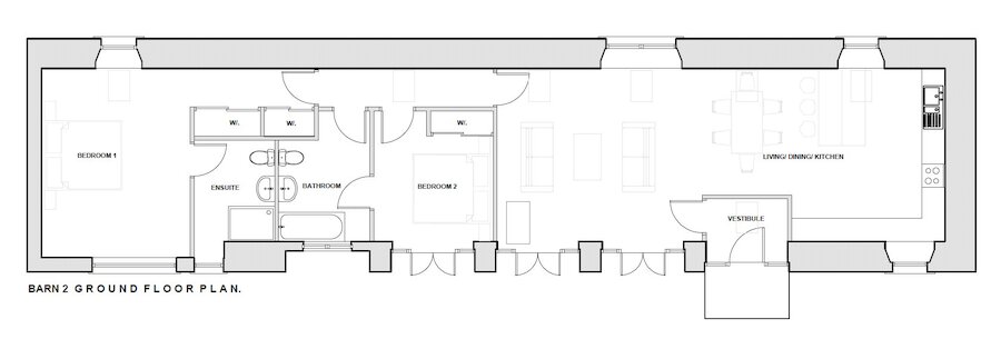
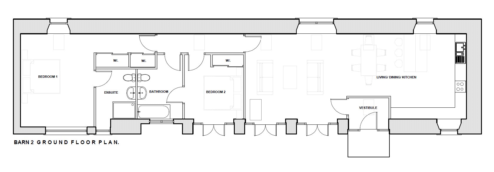
Proposed Summary Of Accommodation
Ground Floor: Entrance Vestibule, Open Plan Kitchen-Dining-Sitting Room, Principal Bedroom with En Suite Shower Room, Double Bedroom with access to a Jack and Jill Bathroom.
Garden: A garden plot.
Parking: Two parking spaces.
About: 0.10 Acres
Planning Ref: Consent 05/02215/FUL for 8 houses with amendment
to add additional 2.
Warrant Ref: 25/01087
More Details
Situation: Private Garden
Council Tax Band: Contact branch
Tenure: Freehold
Your home may be repossessed if you do not keep up repayments on your mortgage.
There may be a fee for mortgage advice. The actual amount you pay will depend upon your circumstances. The fee is up to 1% but a typical fee is 0.3% of the amount borrowed.
Similar Properties
Looking To Sell Or Let?
Rettie is one of the most trusted and well-respected names in property. Our unrivalled market knowledge helps people from around the world buy, sell, let and develop property in Scotland and the North East of England - from city apartments and rural cottages to large townhouses and prime country homes, farms and estates. We deal with some of the most prestigious properties on the market, but provide the same exceptional standards of service and value for money to all our clients.
