Mint Cottage, 1 Longnewton Cottages, Near Gifford, Haddington, EH41 4JW
Offers Over £475,000
Semi Detached House
4 Bedrooms
2 Bathrooms
1 Reception Room
1,518 sq.ft
Private Garden
Off Street Parking
Property Description
A charming semi-detached 4–5-bedroom cottage enjoying breathtaking views across the surrounding East Lothian countryside, ideally situated close to Gifford’s amenities and within easy commuting distance of Edinburgh.
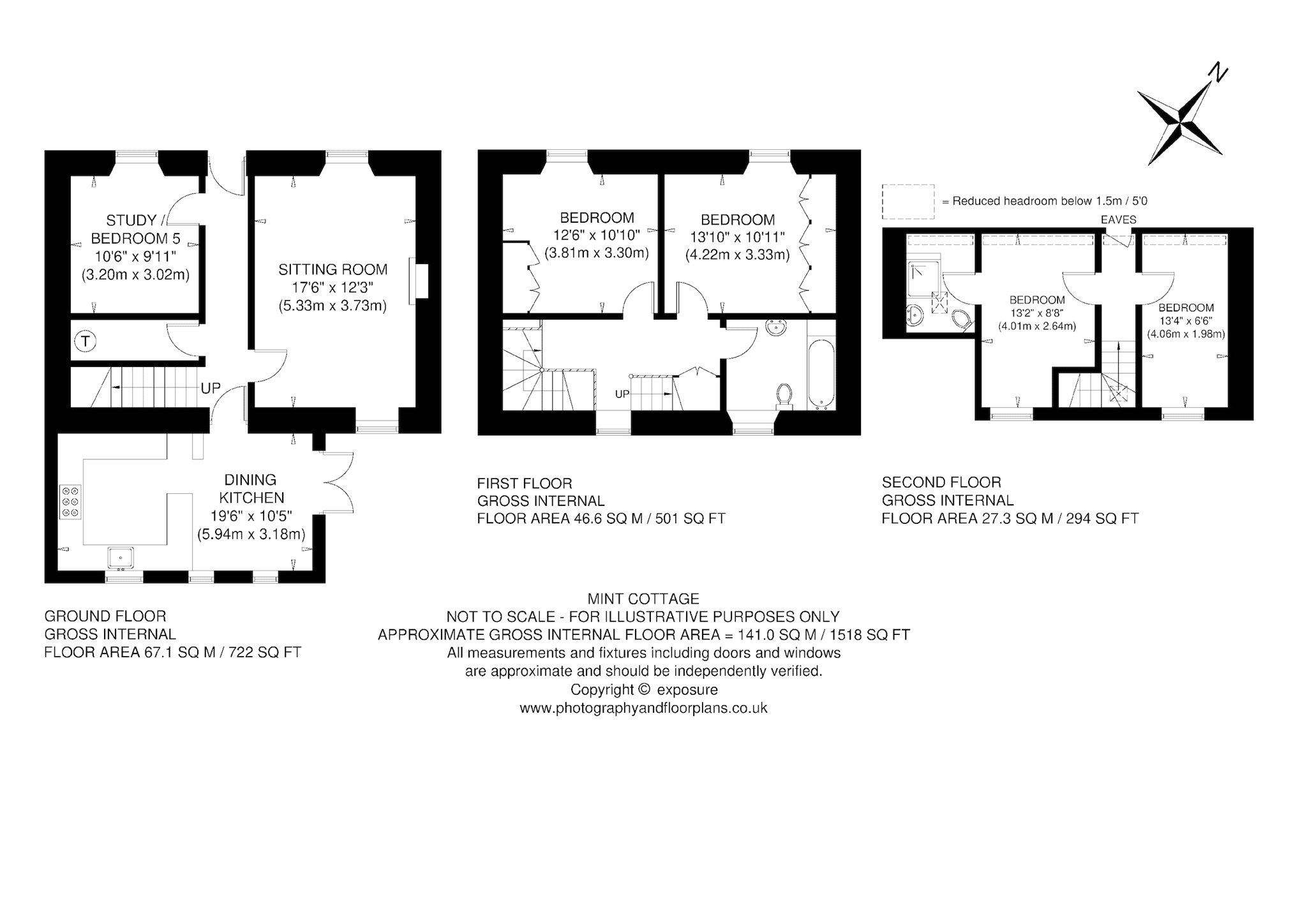
Summary Of Accommodation
Ground Floor: Entrance Hall, Sitting Room, Study/Bedroom 5, Open Plan Kitchen-Dining Room and Storage Cupboard.
First Floor: Landing, Principal Bedroom, Double Bedroom and Bathroom.
Second Floor: Landing, Double Bedroom with En Suite Shower and further Double Bedroom.
Garden: An attractive rear garden, which is terraced, providing patio space and is predominantly laid to lawn, with colourful herbaceous borders and interspersed with mature shrubs and specimen trees.
Parking: Parking at the front of the house for two / three cars.
About: 0.07 Acres
More Details
EPC Band - D
Council Tax Band - Band E
Tenure - Freehold
Your home may be repossessed if you do not keep up repayments on your mortgage.
There may be a fee for mortgage advice. The actual amount you pay will depend upon your circumstances. The fee is up to 1% but a typical fee is 0.3% of the amount borrowed.
Similar Properties
Looking To Sell Or Let?
Rettie is one of the most trusted and well-respected names in property. Our unrivalled market knowledge helps people from around the world buy, sell, let and develop property in Scotland and the North East of England - from city apartments and rural cottages to large townhouses and prime country homes, farms and estates. We deal with some of the most prestigious properties on the market, but provide the same exceptional standards of service and value for money to all our clients.
