46 Titwood Road, Strathbungo, Glasgow, G41 2DG

Strathbungo, Glasgow, G41 2DG
Sold
Pin View on map

Offers Over £380,000

House

Terraced House

Bed

3 Bedrooms

Bathroom

1 Bathroom

Reception

1 Reception Room

Tree

Private Garden

Telephone

Property Description

CLOSING DATE TUESDAY 15TH APRIL AT 12PM

A fabulous mid terraced house situated in the heart of Strathbungo.

This gorgeous red sandstone fronted villa is approached via pathway flanked by lawned front garden with border, leading to the front door.

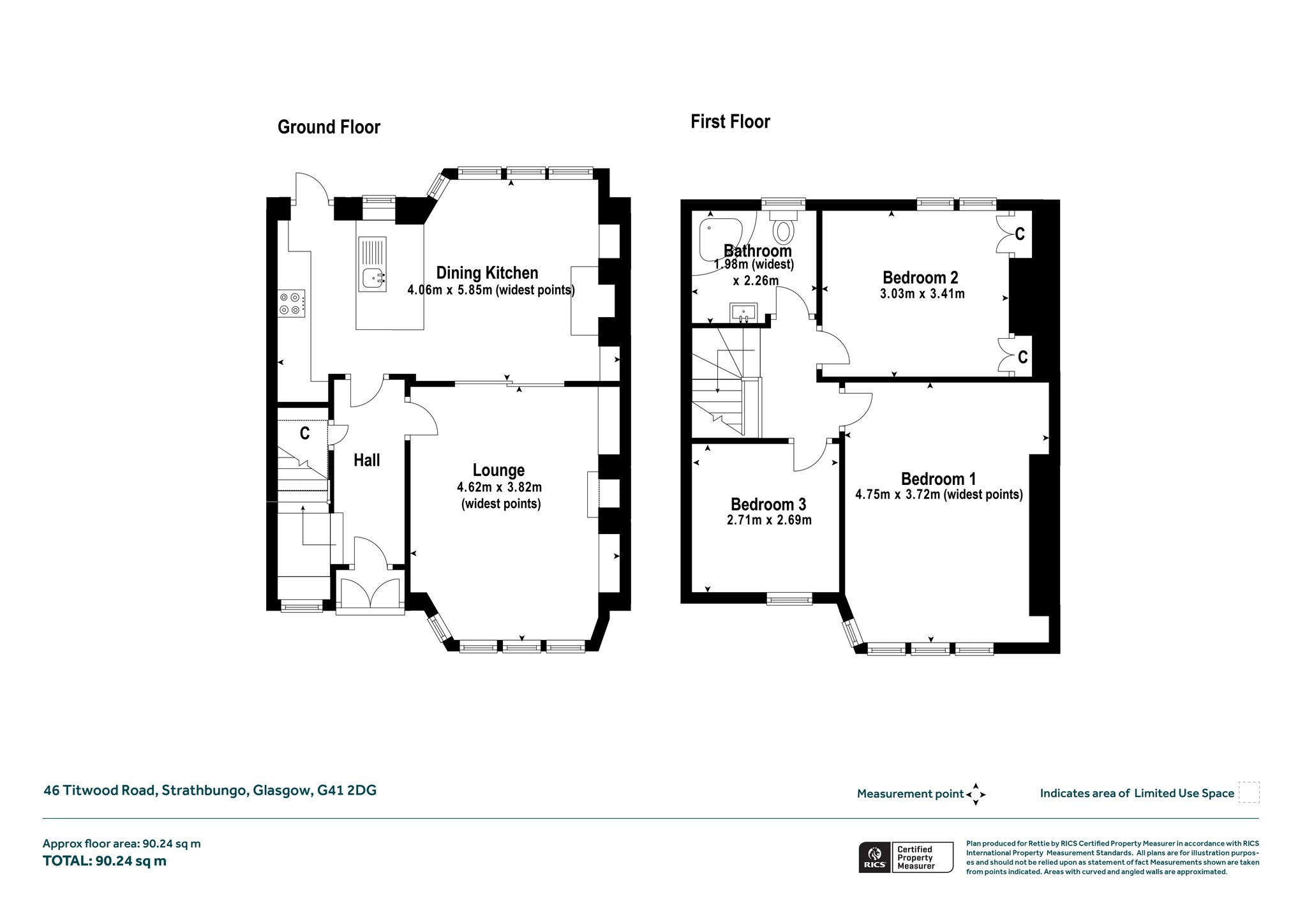
The accommodation of the house itself comprises welcoming reception hallway with understairs cupboard off, bay windowed lounge with cornice and refurbished floorboards with sliding door access through to the dining sized kitchen with bay windowed dining area, kitchen with a range of integrated appliances, base and wall mounted units, tiled splashback, hardwood worktop, breakfast bar and feature fireplace.
Upstairs the accommodation comprises double sized bedroom one, second double sized bedroom with two sets of integrated wardrobes, third bedroom that could easily be utilised as a home office or study and a tiled bathroom with three piece suite and over bath, electric shower.

The property also benefits from double glazing, gas central heating, high quality floor coverings and a modern, contemporary decor throughout. Externally there is the aforementioned front garden, along with a generous rear garden with separate patio, monoblocked pathways and lawn. There is also a garden shed at the bottom of the garden.

Strathbungo has become one of the most sought-after pockets to be found anywhere in Glasgow. It has a truly welcoming community spirit and The Strathbungo Society hosts a range of cultural events such as Bungo in the Backlanes, Bungo at the Bells and the hugely popular Window Wanderland. The diverse mix of bars, cafes and eateries make it enormously popular and, with this property, they are right around the corner. There are also excellent transport links nearby including numerous bus routes on Pollokshaws Road and Queens Park train station a short distance away. Pollokshields West & Crossmyloof train stations are also a matter of minutes away.

More Details

Situation: Private Garden
Council Tax Band: E
Tenure: Freehold

Contact Us

Grace Sloan

Grace Sloan

Branch Manager
Claire Black CIOBS

Claire Black CIOBS

Mortgage & Protection Advisor
Mortgage Calculator
Monthly payments
Please set an interest rate.

Your home may be repossessed if you do not keep up repayments on your mortgage. There may be a fee for mortgage advice. The actual amount you pay will depend upon your circumstances.

Tax Calculator
LBTT calculator for properties purchased in Scotland. Stamp Duty calculator for properties purchased in England.
Land & buildings transaction tax (LBTT)
= £0
New build house with stone and timber cladding

Looking To Sell Or Let?

Rettie is one of the most trusted and well-respected names in property. Our unrivalled market knowledge helps people from around the world buy, sell, let and develop property in Scotland and the North East of England - from city apartments and rural cottages to large townhouses and prime country homes, farms and estates. We deal with some of the most prestigious properties on the market, but provide the same exceptional standards of service and value for money to all our clients.