2/1, 13 Grantley Gardens, Shawlands, Glasgow, G41 3PZ
Property Description
A beautiful two bedroomed, second floor flat situated on one of Shawlands most sought after streets.
This red sandstone tenement building is accessed via secure door entry system into a well-kept communal close and stairwell, where the flat is accessed on the second floor.
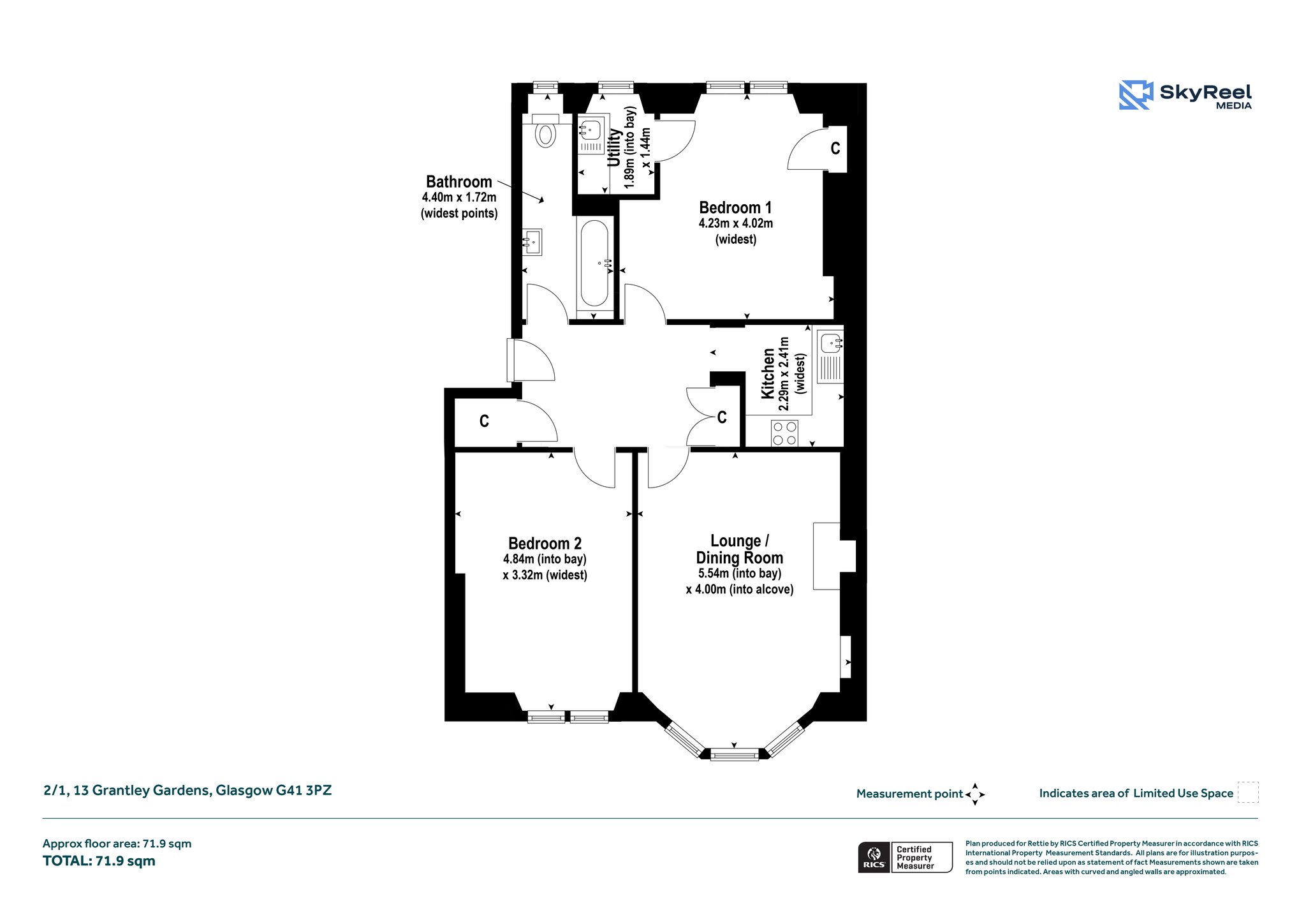
The accommodation of the flat itself comprises welcoming reception hallway with two cupboards off, gorgeous bay windowed lounge with cornicing, feature fireplace and refurbished floorboards, kitchen with a range of base and wall mounted and hardwood worktop, double sized bedroom one to the front of the flat with cornicing, second double sized bedroom to the rear of the flat which can be utilised very flexibly and a useful utility room off and a stunning tiled bathroom with white three piece suite, heated towel rail and vanity unit.
The property also benefits from double glazing, gas central heating, high quality floor coverings and a modern contemporary decor throughout. Externally there is a communal rear garden.
Located in one of Shawlands’ most desirable addresses, Grantley Gardens is ideally placed for access to a wide variety of local amenities, including popular cafes, restaurants, bars, and independent shops. Excellent public transport links are nearby, with both Pollokshaws East and Crossmyloof train stations within easy walking distance.
More Details
Situation: Communal Garden
Council Tax Band: C
Tenure: Freehold
Your home may be repossessed if you do not keep up repayments on your mortgage. There may be a fee for mortgage advice. The actual amount you pay will depend upon your circumstances.
Similar Properties
Looking To Sell Or Let?
Rettie is one of the most trusted and well-respected names in property. Our unrivalled market knowledge helps people from around the world buy, sell, let and develop property in Scotland and the North East of England - from city apartments and rural cottages to large townhouses and prime country homes, farms and estates. We deal with some of the most prestigious properties on the market, but provide the same exceptional standards of service and value for money to all our clients.
