Property Description
A ground floor, main door flat with two bedroomed situated in this convenient pocket of Shawlands.
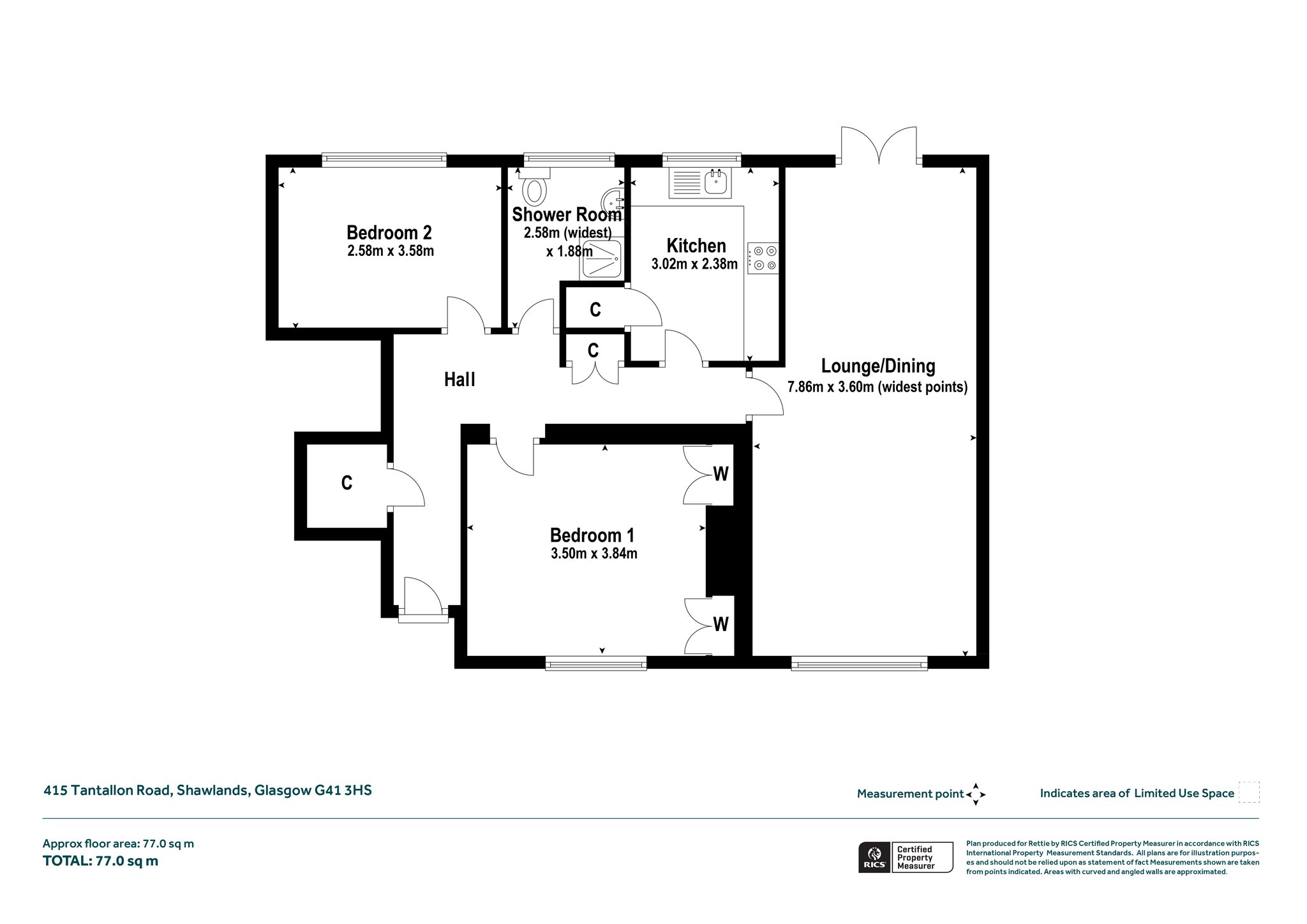
The accommodation of the flat comprises welcoming reception hallway with large cupboard off, spacious lounge/dining room with dual aspect to the front and rear with double door access out to the rear garden, kitchen with a range of base and wall mounted units, double sized bedroom one with integrated wardrobes, second double sized bedroom that could be utilised as a home office or study and a tiled shower room with two piece suite and separate walk-in shower.
The property also benefits from double glazing, gas central heating, high quality floor coverings and a neutral decor throughout. Externally there are also communal gardens to both the front and rear.
Shawlands is considered by many to be the "brunch capital" of Glasgow. While the brunch spots are excellent and numerous, there are also a wide range of other amenities including restaurants, bars, parks and much more. This flat is perfectly situated to enjoy everything that Shawlands has to offer, including Queens Park at the end of the street as well as excellent transport links with Crossmyloof and Shawlands a short walk away.
More Details
Situation: Communal Garden
Council Tax Band: D
Tenure: Freehold
Your home may be repossessed if you do not keep up repayments on your mortgage. There may be a fee for mortgage advice. The actual amount you pay will depend upon your circumstances.
Similar Properties
Looking To Sell Or Let?
Rettie is one of the most trusted and well-respected names in property. Our unrivalled market knowledge helps people from around the world buy, sell, let and develop property in Scotland and the North East of England - from city apartments and rural cottages to large townhouses and prime country homes, farms and estates. We deal with some of the most prestigious properties on the market, but provide the same exceptional standards of service and value for money to all our clients.

