0/1, 7 Millbrae Crescent, Langside, Glasgow, G42 9UW
Property Description
An exceptional three bedroomed ground floor flat situated in this quiet pocket of Langside.
Having undergone extensive refurbishment and enjoying a range of period feature, this gorgeous flat is a must for viewing in order to be appreciated.
This blonde sandstone tenement building is accessed via secure door entry system into a well-kept communal close.
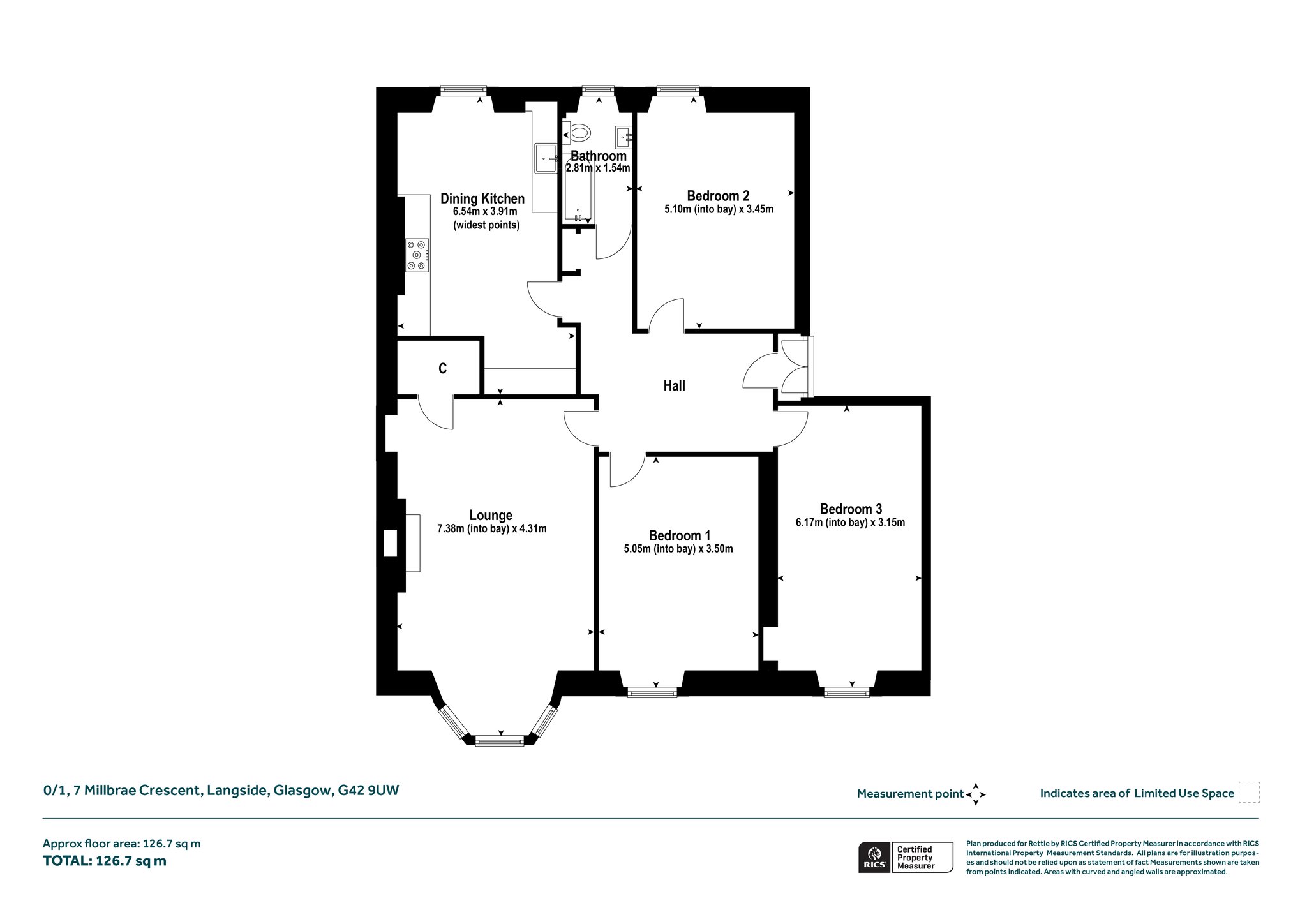
The accommodation of the flat itself comprises welcoming reception hallway with refurbished floorboards and cornicing, stunning bay windowed lounge with feature fireplace, cornicing, refurbished floorboards and large cupboard off to the rear, gorgeous dining sized kitchen with a range of base and wall mounted units, tiled splashback, hardwood worktop and ample space for dining table and chairs. There are three double sized bedrooms, all of which can be utilised very flexibly as a home office or additional reception room and a delightful tiled bathroom with white three piece suite and over bath shower.
The property also benefits from original sash and casement single glazing, gas central heating, a range of period features and a modern, contemporary decor throughout. Externally there are communal gardens to both the front and rear with which are both in pristine condition.
Langside is an immensely popular area in the Southside of Glasgow with a range of nearby transport links, amenities and schooling, with Battlefield Primary School nearby. Shawlands and Strathbungo are both within walking distance and the area offers a wide selection of local shops, salubrious bars, restaurants and cafes.
More Details
Situation: Communal Garden
Council Tax Band: C
Tenure: Freehold
Your home may be repossessed if you do not keep up repayments on your mortgage. There may be a fee for mortgage advice. The actual amount you pay will depend upon your circumstances.
Similar Properties
Looking To Sell Or Let?
Rettie is one of the most trusted and well-respected names in property. Our unrivalled market knowledge helps people from around the world buy, sell, let and develop property in Scotland and the North East of England - from city apartments and rural cottages to large townhouses and prime country homes, farms and estates. We deal with some of the most prestigious properties on the market, but provide the same exceptional standards of service and value for money to all our clients.
