Offers Over £435,000
Terraced House
4 Bedrooms
1 Bathroom
2 Reception Rooms
Private Garden
On Street/Permit
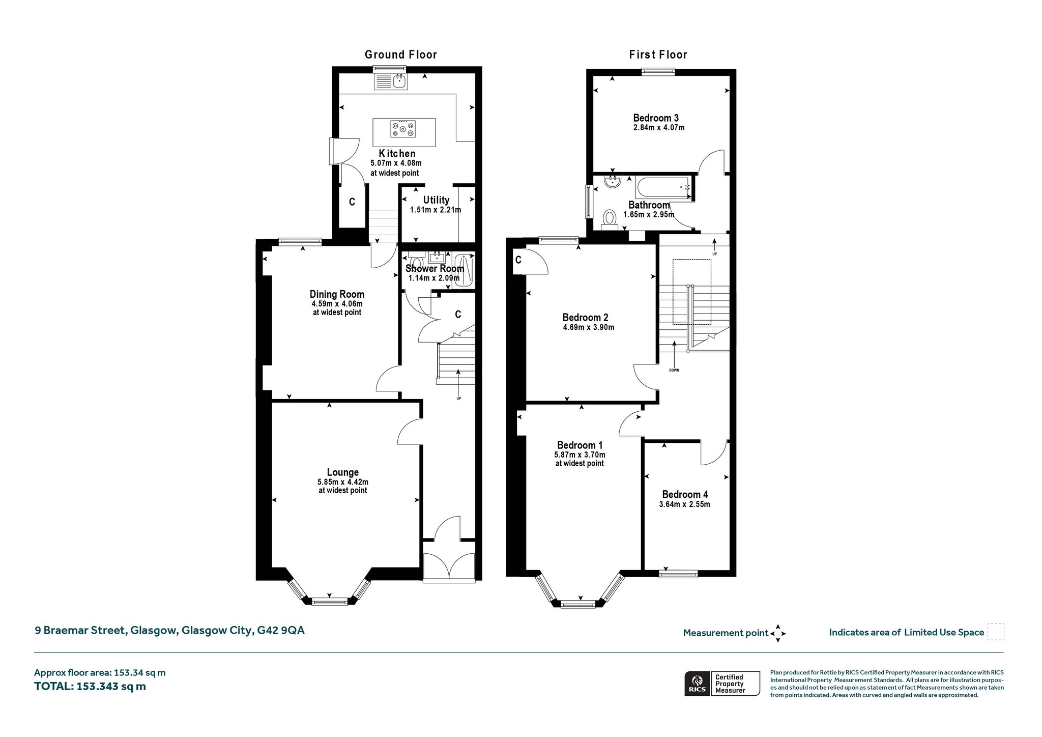
Property Description
An exceptional mid-terraced villa situated in this quiet pocket of Battlefield.
This fabulous home offers beautiful accommodation over two levels that is in pristine order; a must for viewing in order to be appreciated.
This blonde sandstone villa is approached via pathway landscaped front garden leading to the front double doors and entrance vestibule.
The accommodation of the house itself comprises welcoming reception hallway with understairs cupboard off, gorgeous bay windowed lounge with cornicing, flexible dining room with sitting area, gorgeous kitchen with a range of integrated appliances, base and wall mounted units, island, granite worktop and access out to the rear garden, along with useful utility room off. The ground floor accommodation is completed by a tiled shower room with white two piece suite, heated towel rail and separate walk-in shower.
Off the half landing there is a third bedroom that could be utilised as an office space with spotlights and aspect out over the rear garden and a tiled bathroom with white three piece suite and electric shower.
The first floor accommodation comprises bay windowed bedroom one with cornicing, second double sized bedroom with coving and downlighting and fourth bedroom that could be used flexibly.
The property also benefits from double glazing, gas central heating a modern, contemporary decor and high quality floor coverings throughout. Externally there is the aforementioned front garden, along with an enclosed rear garden which has been landscaped to allow for low maintenance.
Battlefield is an immensely popular area in the Southside of Glasgow with a range of nearby transport links and amenities. Shawlands and Strathbungo are both within walking distance and provide a wide range of salubrious bars, restaurants and cafes.
More Details
Situation: Private Garden
Council Tax Band: E
Tenure: Freehold
Your home may be repossessed if you do not keep up repayments on your mortgage. There may be a fee for mortgage advice. The actual amount you pay will depend upon your circumstances.
Similar Properties
Looking To Sell Or Let?
Rettie is one of the most trusted and well-respected names in property. Our unrivalled market knowledge helps people from around the world buy, sell, let and develop property in Scotland and the North East of England - from city apartments and rural cottages to large townhouses and prime country homes, farms and estates. We deal with some of the most prestigious properties on the market, but provide the same exceptional standards of service and value for money to all our clients.
