Flat 1/2, 118 Ledard Road, Battlefield, Glasgow, G42 9SX
Property Description
A fabulous three bedroomed, first floor flat situated in the heart of Battlefield.
This blonde sandstone tenement building is accessed via secure door entry system into a well-kept communal close and stairwell.
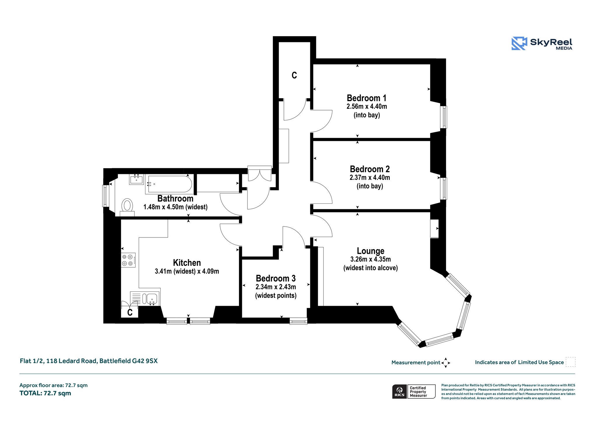
The accommodation of the flat itself comprises welcoming reception hallway with large cupboard off, corner bay windowed lounge with oriol bay and cornice plaster, impressive dining sized kitchen with a range of base and wall mounted units, tiled splashback, ample space for dining table and chairs and bespoke window seat and three bedrooms, all of which can be utilised very flexibly including in-built bunkbed in bedroom three and stunning tiled bathroom with white three piece suite, vanity unit and over bath shower.
The property also benefits from double glazing, gas central heating, high quality floor coverings and a modern, stylish decor throughout. Externally there is a communal rear garden.
Battlefield, located in Glasgow's Southside, is renowned for its vibrant culinary scene, featuring numerous independent restaurants and cafés. Featuring Franks Pizza, M&S Food, Starbucks and many more. The area boasts excellent public parks, including Queen's Park within walking distance. Battlefield offers a variety of amenities and a lively atmosphere, making it a desirable place to live.
More Details
Situation: Communal Garden
Council Tax Band: C
Tenure: Freehold
Your home may be repossessed if you do not keep up repayments on your mortgage. There may be a fee for mortgage advice. The actual amount you pay will depend upon your circumstances.
Similar Properties
Looking To Sell Or Let?
Rettie is one of the most trusted and well-respected names in property. Our unrivalled market knowledge helps people from around the world buy, sell, let and develop property in Scotland and the North East of England - from city apartments and rural cottages to large townhouses and prime country homes, farms and estates. We deal with some of the most prestigious properties on the market, but provide the same exceptional standards of service and value for money to all our clients.
