2/1, 37 McCulloch Street, Pollokshields, Glasgow, G41 1SU

Pollokshields, Glasgow, G41 1SU
Under Offer
Pin View on map

Offers Over £180,000

House

Upper Floor Apartment

Bed

2 Bedrooms

Bathroom

1 Bathroom

Reception

1 Reception Room

Tree

Communal Garden

Telephone

Property Description

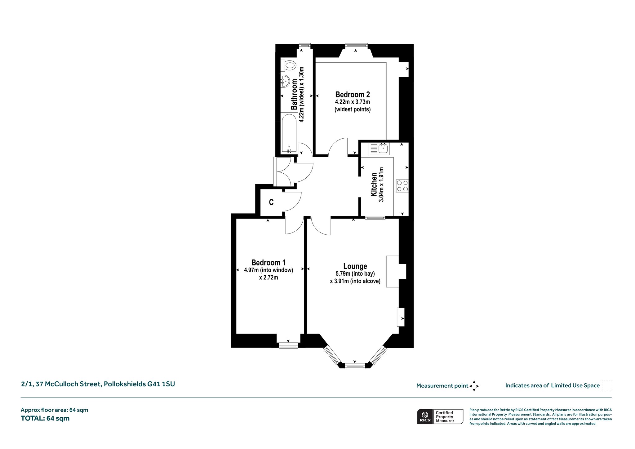
An exceptional two bedroomed flat situated in this quiet yet convenient pocket of Pollokshields.

This red sandstone tenement building is accessed via secure door entry system into a well-kept communal close and stairwell, where the flat is on the second floor.

The accommodation of the flat itself comprises welcoming reception hallway with useful cupboard off, beautiful bay windowed lounge with feature fireplace and fabulous open aspect, modern kitchen with a range of base and wall mounted units, hardwood worktop and tiled splashback, two double sized bedrooms, with bedroom two currently utilised as a home office space and a tiled bathroom with white three piece suite and electric shower.

The property also benefits from double glazing, gas central heating, period features including stripped door and refurbished floorboards, fabulous view and a modern, contemporary decor throughout. Externally there is a communal rear garden.

Pollokshields is one of the most popular areas anywhere in the West of Scotland. The combination of amenities and transport links are second to none. There is a particularly impressive range of restaurants, bars and cafes in Pollokshields itself as well as nearby Strathbungo and Shawlands all within walking distance. The position of the property is also extremely convenient for easy access to Glasgow City Centre by any number of methods including by bike, car, train, bus or subway.

More Details

Situation: Communal Garden
Council Tax Band: B
Tenure: Freehold

Contact Us

Alice Beedham

Alice Beedham

Sales Negotiator
Claire Black CIOBS

Claire Black CIOBS

Mortgage & Protection Advisor
Mortgage Calculator
Monthly payments
Please set an interest rate.

Your home may be repossessed if you do not keep up repayments on your mortgage. There may be a fee for mortgage advice. The actual amount you pay will depend upon your circumstances.

Tax Calculator
LBTT calculator for properties purchased in Scotland. Stamp Duty calculator for properties purchased in England.
Land & buildings transaction tax (LBTT)
= £0
New build house with stone and timber cladding

Looking To Sell Or Let?

Rettie is one of the most trusted and well-respected names in property. Our unrivalled market knowledge helps people from around the world buy, sell, let and develop property in Scotland and the North East of England - from city apartments and rural cottages to large townhouses and prime country homes, farms and estates. We deal with some of the most prestigious properties on the market, but provide the same exceptional standards of service and value for money to all our clients.