1/2, Colquhoun Court, 237 Nithsdale Road, Pollokshields, Glasgow, G41 5PY
Property Description
A fantastic three bedroomed flat positioned in this incredibly quiet pocket of Pollokshields.
The building is accessed via secure door entry system into a well-kept communal close and stairwell where the flat itself is access on the first floor.
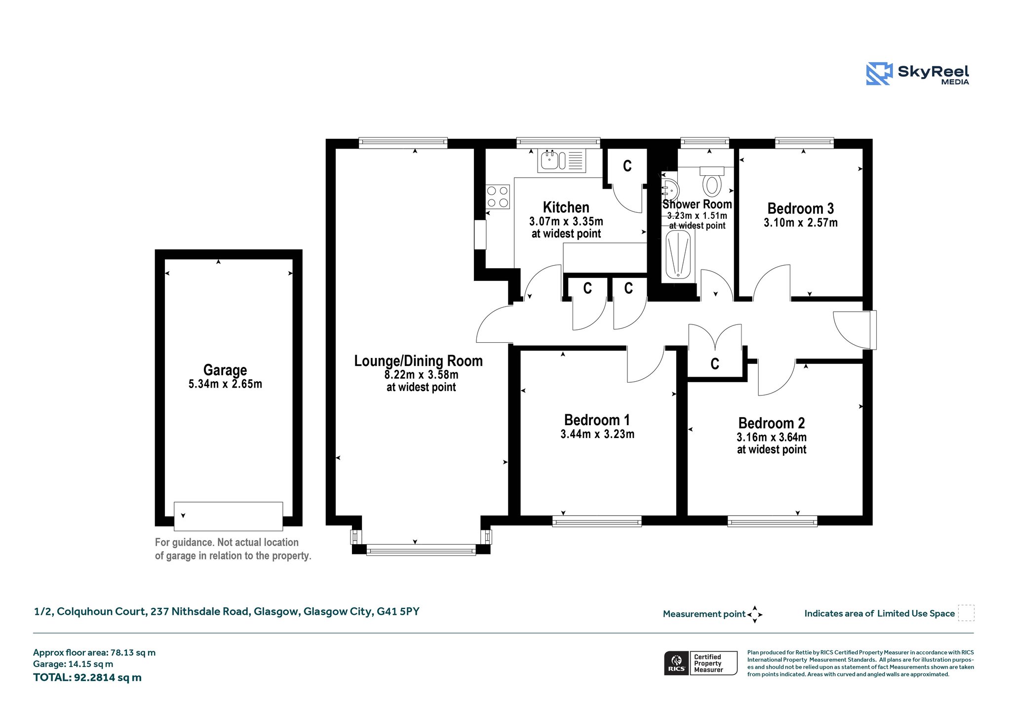
The accommodation of the flat comprises welcoming reception hallway with three useful storage cupboards off, fantastic, open plan lounge/dining room with dual aspects to the front and rear, modern kitchen with a range of base and wall mounted units and tiled splashback, tiled shower room with two piece suite, heated towel rail and separate walk-in shower and three double sized bedrooms, all of which could be used very flexibly as home offices or study space.
The property also benefits from double glazing, gas central heating, high quality floor coverings and a modern, neutral decor throughout. Externally, there are beautifully maintained resident gardens. To the front there is generous off street parking for residents as well as visitors.
Pollokshields is an incredibly affluent and popular suburb in Glasgow's southside. The cafes and boutique stores of Shawlands and Strathbungo are within walking distance, and Maxwell Park train station and park are also very nearby, along with Dumbreck train station. Pollokshields stands beside junction 1 of the M77, offering motorway connections across central Scotland.
More Details
Situation: Communal Garden
Council Tax Band: D
Tenure: Freehold
Your home may be repossessed if you do not keep up repayments on your mortgage. There may be a fee for mortgage advice. The actual amount you pay will depend upon your circumstances.
Similar Properties
Looking To Sell Or Let?
Rettie is one of the most trusted and well-respected names in property. Our unrivalled market knowledge helps people from around the world buy, sell, let and develop property in Scotland and the North East of England - from city apartments and rural cottages to large townhouses and prime country homes, farms and estates. We deal with some of the most prestigious properties on the market, but provide the same exceptional standards of service and value for money to all our clients.
