0/1, 13 Grantley Gardens, Shawlands, G41 3PZ

Shawlands, G41 3PZ
Under Offer
Pin View on map

Offers Over £190,000

House

Ground Floor Apartment

Bed

1 Bedroom

Bathroom

1 Bathroom

Reception

1 Reception Room

Tree

Communal Garden

Telephone

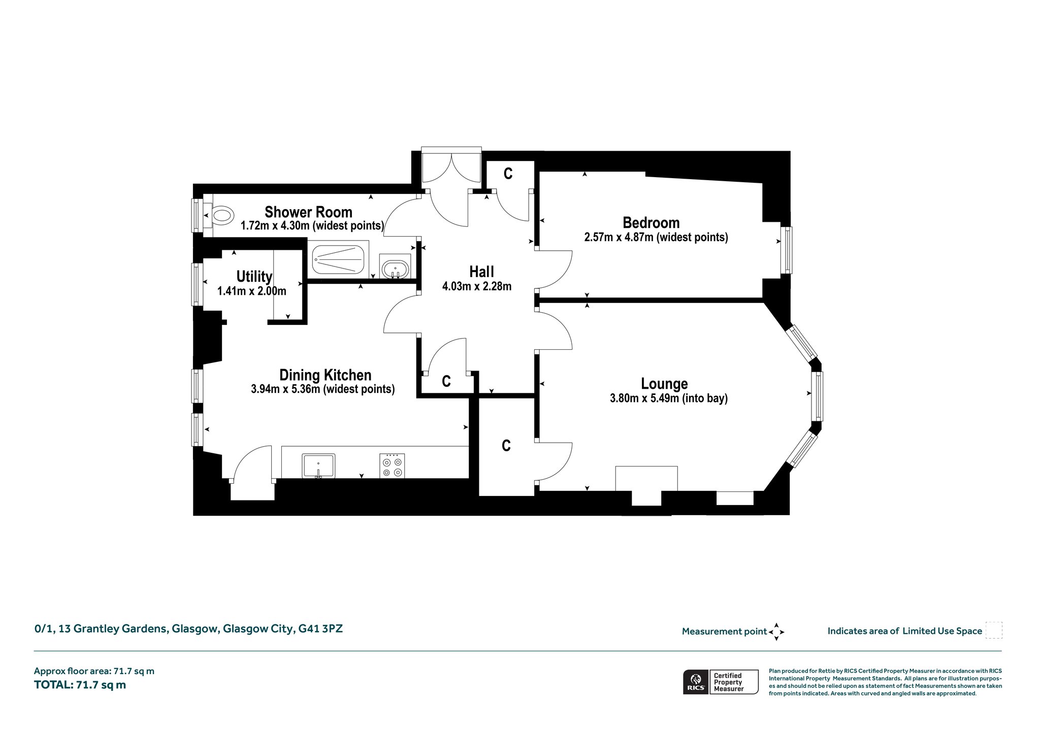
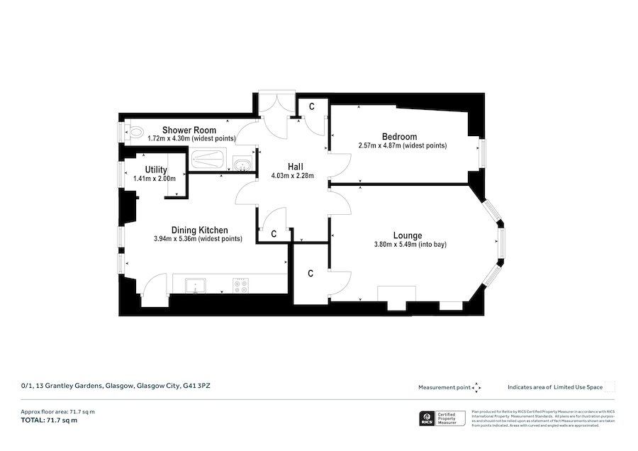
Property Description

Closing date Thursday 4th of September at 12.00pm

A stunning ground floor with beautiful dining sized kitchen situated on one of Shawlands most sought after streets.

This red sandstone tenement building is accessed via secure door entry system into a well-kept communal close.

The accommodation of the flat itself comprises welcoming reception hallway with two cupboards off, gorgeous bay windowed lounge with cornicing and feature fireplace, incredible dining sized kitchen with a range of integrated appliances, base and wall mounted units, ample space for dining table and chairs and useful utility room off. There is a double sized bedroom to the front of the flat and a fabulous tiled shower room with two piece suite, vanity unit and glass shower screen.

The property also benefits from single glazing, gas central heating, high quality floor coverings and a modern, contemporary decor throughout. Externally there is a lovely private front garden and a communal rear garden.

Located in one of Shawlands’ most desirable addresses, Grantley Gardens is ideally placed for access to a wide variety of local amenities, including popular cafes, restaurants, bars, and independent shops. Excellent public transport links are nearby, with both Pollokshaws East and Crossmyloof train stations within easy walking distance.

More Details

Situation: Communal GardenPrivate Garden
Council Tax Band: C
Tenure: Freehold

Contact Us

Alice Beedham

Alice Beedham

Sales Negotiator
Claire Black CIOBS

Claire Black CIOBS

Mortgage & Protection Advisor
Mortgage Calculator
Monthly payments
Please set an interest rate.

Your home may be repossessed if you do not keep up repayments on your mortgage. There may be a fee for mortgage advice. The actual amount you pay will depend upon your circumstances.

Tax Calculator
LBTT calculator for properties purchased in Scotland. Stamp Duty calculator for properties purchased in England.
Land & buildings transaction tax (LBTT)
= £0
New build house with stone and timber cladding

Looking To Sell Or Let?

Rettie is one of the most trusted and well-respected names in property. Our unrivalled market knowledge helps people from around the world buy, sell, let and develop property in Scotland and the North East of England - from city apartments and rural cottages to large townhouses and prime country homes, farms and estates. We deal with some of the most prestigious properties on the market, but provide the same exceptional standards of service and value for money to all our clients.