33 Buttercup Crescent, Cambuslang, Glasgow, South Lanarkshire, G72 6AG
Property Description
**FIXED PRICE UNDER HOME REPORT VALUE**
A stunning detached four bedroomed villa forming part of Newton Farm development.
The house is approached via monoblocked driveway and lawned front garden leading to the front door.
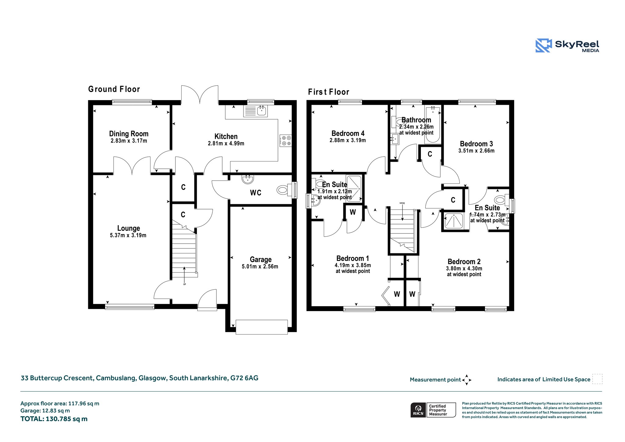
The accommodation of the house itself comprises welcoming reception hallway with understairs cupboard and W.C. off, spacious lounge with double door access through to the dining room, kitchen with a range of integrated appliances, base and wall mounted units, tiled splashback and breakfast bar.
Upstairs the accommodation comprises double sized bedroom one with integrated wardrobes and tiled en-suite shower room off, second and third double sized bedrooms that share a Jack & Jill en-suite, fourth bedroom that could easily be utilised as a home office or study and a tiled bathroom with white three piece suite.
The property also benefits from double glazing, gas central heating, high quality floor coverings and a modern, contemporary decor throughout.
Externally there is the aforementioned front garden, driveway and generous rear garden with separate lawn and patio.
Buttercup Crescent is set within the modern Newton Farm development on the outskirts of Cambuslang, and is well placed for schooling and public transport facilities. Cambuslang is a very popular suburb of Glasgow and provides excellent transport links into the city centre by bus or train from nearby Newton train station or if traveling by car, the M74 and M8 motorways provide great links to Glasgow and the surrounding towns.
More Details
Situation: Private Garden
Council Tax Band: E
Tenure: Freehold
Your home may be repossessed if you do not keep up repayments on your mortgage. There may be a fee for mortgage advice. The actual amount you pay will depend upon your circumstances.
Similar Properties
Looking To Sell Or Let?
Rettie is one of the most trusted and well-respected names in property. Our unrivalled market knowledge helps people from around the world buy, sell, let and develop property in Scotland and the North East of England - from city apartments and rural cottages to large townhouses and prime country homes, farms and estates. We deal with some of the most prestigious properties on the market, but provide the same exceptional standards of service and value for money to all our clients.


