Flat 0/2, 26 Leven Street, Pollokshields, Glasgow, G41 2JE
Property Description
An exceptional three-bedroomed ground floor flat situated in this hugely popular pocket of Pollokshields.
Having undergone extensive and sensitive architect-designed renovations under the current owner, this gorgeous traditional tenement flat is a must for viewing in order to be appreciated. It offers versatile accommodation with contemporary features, quality finishes and cleverly incorporated storage.
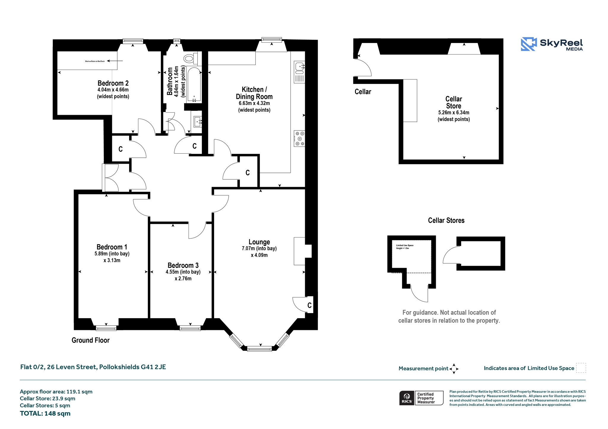
The blonde sandstone tenement building is accessed via secure door entry system into a well-kept communal close. The elevated flat has a spacious reception hallway with three storage cupboards, leading to a stunning bay windowed lounge with intricate cornice detailing, feature fireplace and refurbished floorboards.
The impressive dining kitchen has a range of base and wall mounted units, integrated appliances, tiled splashback, shelving and ample space for a large dining table for entertaining.
There are three double-sized bedrooms, the master bedroom featuring an intricate cast iron fireplace. The rear bedroom has an architect-designed mezzanine with a king-sized bed reached by stairs stretching out from shelving built around a study area.
The bathroom features underfloor heating, slate tiling on the floor and walls, bespoke wash hand basin area, over bath shower, quality German fittings and floor-to-ceiling concealed storage.
The modernisation of the flat also included double glazing, gas central heating, insulating, and full rewiring and plumbing, whilst maintaining original features. Externally there is a private front garden and a communal rear garden complete with barbeque area. There are also fantastic cellars in the basement used for storage and as a workshop.
Pollokshields is one of the most popular areas anywhere in the West of Scotland. The combination of amenities and transport links are second to none. There is a particularly impressive range of restaurants, bars, and cafes in Pollokshields itself as well as nearby Strathbungo and Shawlands all within walking distance. The position of the property is also extremely convenient for easy access to Glasgow City Centre by any number of methods including by bike, car, train, bus, or subway.
More Details
Situation: Private Garden
Council Tax Band: D
Tenure: Freehold
Your home may be repossessed if you do not keep up repayments on your mortgage.
There may be a fee for mortgage advice. The actual amount you pay will depend upon your circumstances. The fee is up to 1% but a typical fee is 0.3% of the amount borrowed.
Similar Properties
Looking To Sell Or Let?
Rettie is one of the most trusted and well-respected names in property. Our unrivalled market knowledge helps people from around the world buy, sell, let and develop property in Scotland and the North East of England - from city apartments and rural cottages to large townhouses and prime country homes, farms and estates. We deal with some of the most prestigious properties on the market, but provide the same exceptional standards of service and value for money to all our clients.
