Property Description
A beautiful three bedroom, mid terraced house situated in this quiet yet convenient pocket of Merrylee.
The house is approached via monoblocked driveway and steps leading to the front door.
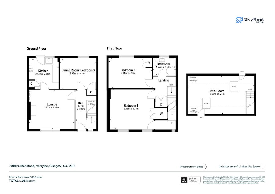
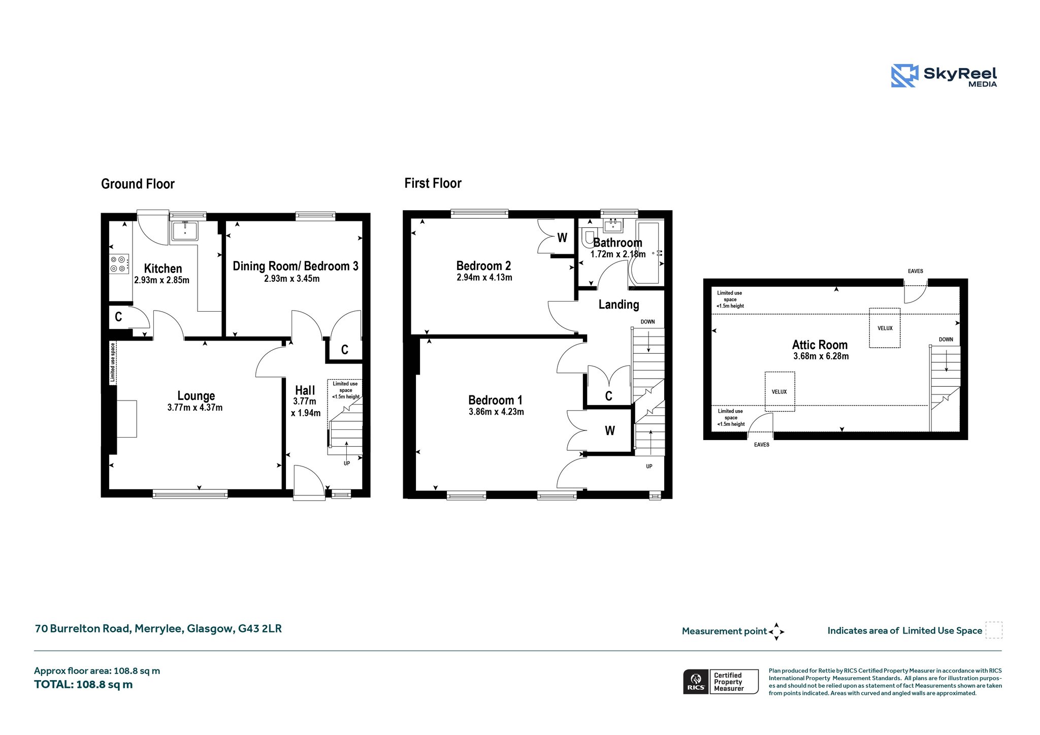
The accommodation of the house itself comprises welcoming reception hallway, spacious lounge with feature fireplace, kitchen with a range of base mounted units, shelving, tiled splashback and access out to the rear garden and dining room that could easily be utilised as a third bedroom.
Upstairs the accommodation comprises second double sized bedroom with aspect out to the rear garden, sizeable bedroom one with walk-in wardrobe and access through to a fixed staircase up to the attic room which offers great flexibility.
The property also benefits from double glazing, gas central heating, high quality floor coverings and a modern, contemporary decor throughout.
Externally there is aforementioned front driveway with space for two cars and a generous rear garden with two separate patio areas and lawn.
Merrylee is a quiet suburb situated in the south of Glasgow. It has a quiet ambience, access to popular parks, and range of nearby amenities making it an attractive area to live. There are also excellent transport links nearby via bus road and rail to the centre of Glasgow and elsewhere, with Cathcart and Langside Train Stations providing regular services to and from Glasgow Central and being only a short walk away.
More Details
Situation: Private Garden
Council Tax Band: D
Tenure: Freehold
Your home may be repossessed if you do not keep up repayments on your mortgage. There may be a fee for mortgage advice. The actual amount you pay will depend upon your circumstances.
Similar Properties
Looking To Sell Or Let?
Rettie is one of the most trusted and well-respected names in property. Our unrivalled market knowledge helps people from around the world buy, sell, let and develop property in Scotland and the North East of England - from city apartments and rural cottages to large townhouses and prime country homes, farms and estates. We deal with some of the most prestigious properties on the market, but provide the same exceptional standards of service and value for money to all our clients.


















































