43 St. Ronans Drive, Waverley Park, Glasgow, G41 3SQ
Property Description
An expansive mid-terraced villa situated in this incredibly popular pocket of Waverley Park.
The house is approached via pathway leading to the door, flanked by front garden.
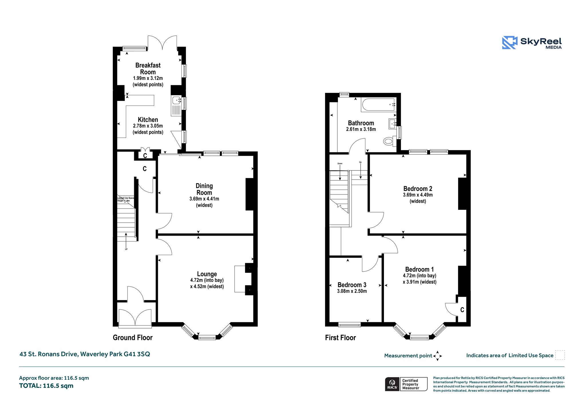
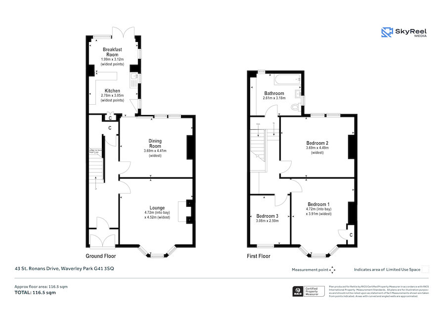
The accommodation of the house itself comprises welcoming reception hallway with understairs cupboard off, bay windowed lounge with feature fireplace, cornice plaster and delightful open aspect, dining room with feature fireplace and kitchen with a range of base and wall mounted units, open plan onto a breakfast room with double door access out to the rear garden.
Upstairs there is bay windowed bedroom one with cornice plaster and excellent view, second double sized bedroom, third bedroom that could be easily utilised as a home office or study and a tiled bathroom with three piece suite.
The property also benefits from double glazing and gas central heating. Externally there is a generous rear garden with shed.
Waverley Park is incredibly well situated with Shawlands on its doorstep. Shawlands is considered by many to be the "brunch capital" of Glasgow. While the brunch spots are excellent and numerous, there are also a wide range of other amenities including restaurants, bars, parks and much more. This house is perfectly situated to enjoy everything that Shawlands has to offer, including excellent transport links with Shawlands Train Station very close by. Beautiful Pollok Park and Queen's Park are both within short walking distances.
More Details
Situation: Private Garden
Council Tax Band: E
Tenure: Freehold
Your home may be repossessed if you do not keep up repayments on your mortgage.
There may be a fee for mortgage advice. The actual amount you pay will depend upon your circumstances. The fee is up to 1% but a typical fee is 0.3% of the amount borrowed.
Similar Properties
Looking To Sell Or Let?
Rettie is one of the most trusted and well-respected names in property. Our unrivalled market knowledge helps people from around the world buy, sell, let and develop property in Scotland and the North East of England - from city apartments and rural cottages to large townhouses and prime country homes, farms and estates. We deal with some of the most prestigious properties on the market, but provide the same exceptional standards of service and value for money to all our clients.
