4 Cameron Crescent, Carmunnock, Clarkston, Glasgow, G76 9DX
Offers Over £275,000
Terraced House
2 Bedrooms
2 Bathrooms
1 Reception Room
Private Garden
Garage
On Street/Permit
Property Description
Set within the charming and historic conservation village of Carmunnock, this delightful mid-terraced cottage offers beautifully balanced accommodation over two levels, together with lovely open outlooks and a wonderfully peaceful setting. Properties of this style and location are seldom available, and this home presents an excellent opportunity for those seeking character, convenience and a tranquil village lifestyle.
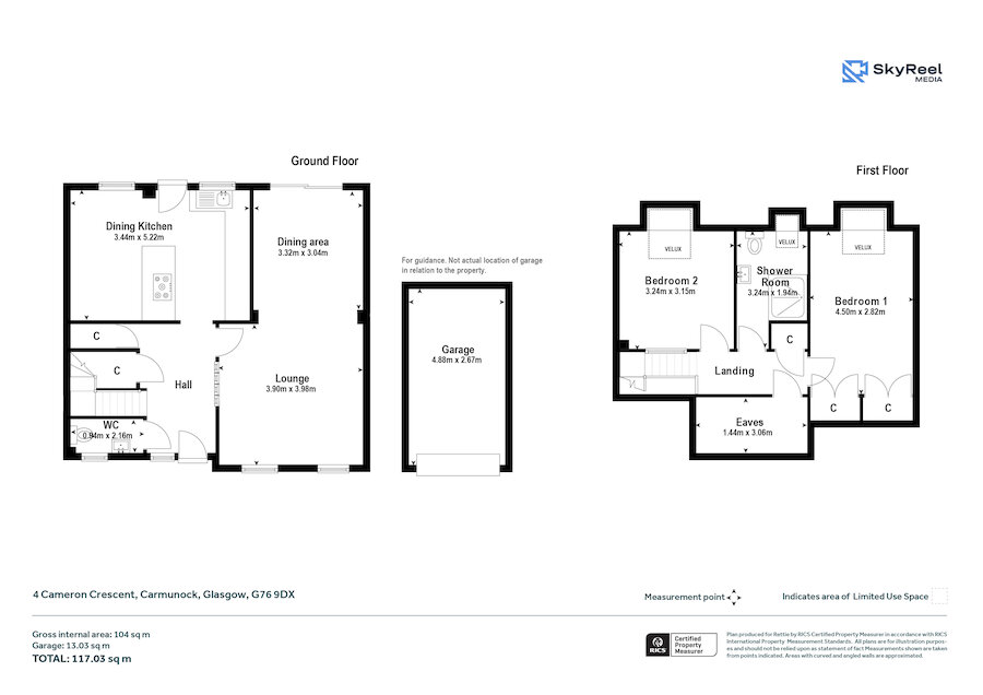
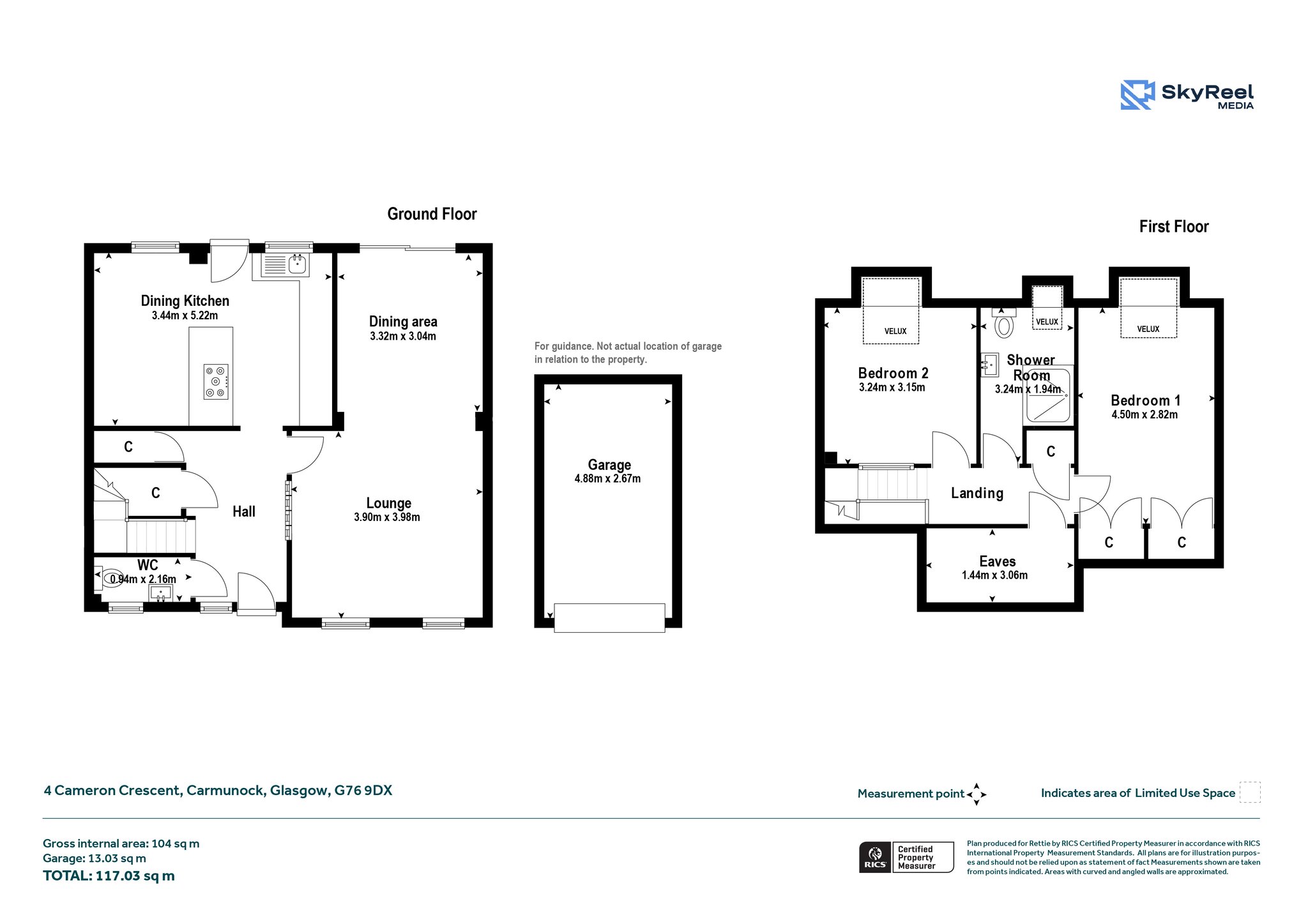
The entrance hallway offers a welcoming introduction to the home, with a useful WC positioned just off, along with valuable built-in storage. To the front of the property sits the bright and inviting lounge, a comfortable living space featuring dual aspects that allow excellent natural light throughout the day. Just off the lounge is a dedicated dining area, providing an ideal setting for everyday dining or entertaining, and enhancing the sense of space on the ground floor.
The dining kitchen is accessed directly from the hallway and enjoys a peaceful position to the rear of the property. This generously proportioned room is fitted with a range of traditional wall-mounted and floor-standing units, providing ample storage and worktop space, and provides direct access to the outside, making it a practical and sociable kitchen layout with great potential for modernisation to suit individual tastes.
The upper level is reached via a bright landing that leads to two generously sized double bedrooms, both positioned at the rear of the property and enjoying lovely outlooks. Each room benefits from large Velux windows which flood the upper floor with natural light and enhance the sense of space. The principal bedroom features a full bank of fitted wardrobes, providing excellent storage, while the second bedroom, offers well-proportioned accommodation and ample room for freestanding furniture.
Externally, the property enjoys the peaceful surroundings that Carmunnock is known for, with lovely outlooks and a strong sense of village charm. The property has a secluded garden and a private garage, further enhancing the practicality of the home.
Carmunnock remains one of Glasgow’s most sought-after villages, celebrated for its conservation status, community spirit and beautifully preserved setting. The village offers traditional inns, cafés, and convenient commuter links to the south side of Glasgow and East Kilbride, while being surrounded by exceptional countryside. The property sits close to the scenic Cathkin Braes Country Park, providing miles of walking routes, cycling trails and panoramic views across the city and beyond. Excellent schooling and leisure facilities are also available within the surrounding areas, further enhancing the appeal of this charming village location.
Freehold
EPC: C
Council Tax: E
More Details
Situation: Private Garden
Council Tax Band: E
Tenure: Contact Branch
Your home may be repossessed if you do not keep up repayments on your mortgage.
There may be a fee for mortgage advice. The actual amount you pay will depend upon your circumstances. The fee is up to 1% but a typical fee is 0.3% of the amount borrowed.
Similar Properties
Looking To Sell Or Let?
Rettie is one of the most trusted and well-respected names in property. Our unrivalled market knowledge helps people from around the world buy, sell, let and develop property in Scotland and the North East of England - from city apartments and rural cottages to large townhouses and prime country homes, farms and estates. We deal with some of the most prestigious properties on the market, but provide the same exceptional standards of service and value for money to all our clients.
