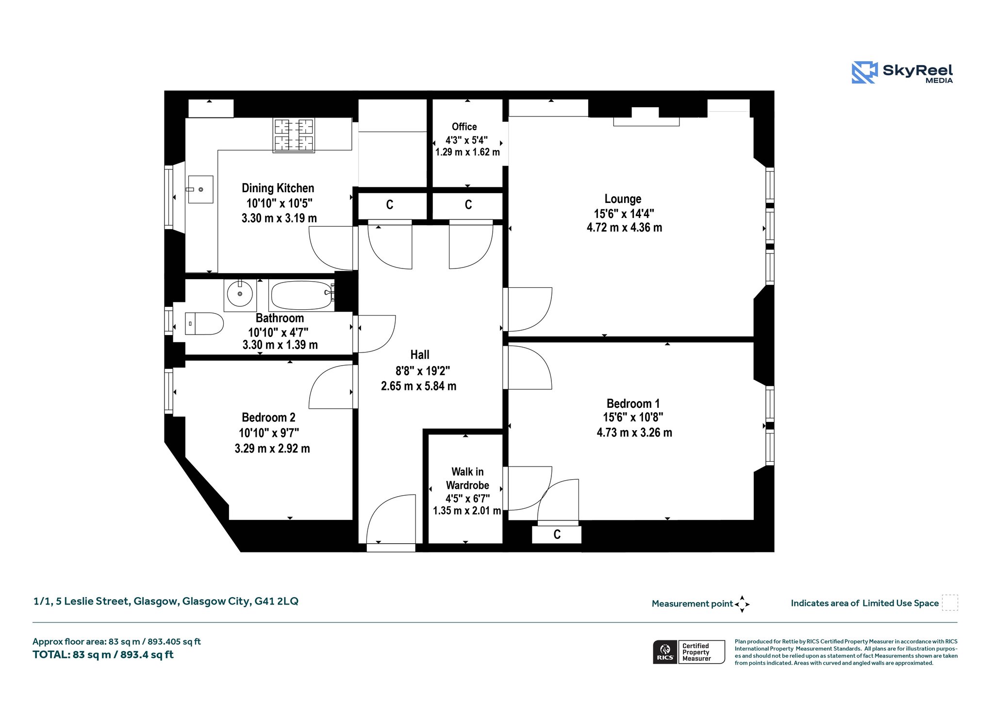
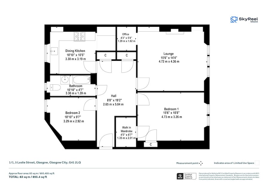
1/1, 5 Leslie Street, Pollokshields, Glasgow City, G41 2LQ
Property Description
Situated within the ever popular area of Pollokshields this traditional, two-bedroom, first floor flat is presented to the market in walk in condition, tastefully decorated with neutral tones throughout.
This traditional blonde sandstone tenement apartment features original cornice work, original natural floorboards with large floor to ceiling windows in sitting room.
The overall accommodation comprises; entrance vestibule with storm doors which leads on to the large reception hallway (providing generous storage off), a spacious lounge with stunning cornice work and large floor to ceiling triple windows with views over Leslie Street. There are two further double bedrooms, a modern, three-piece bathroom with electric over-bath shower. Finally, completing the overall accommodation a stylish, dining size kitchen with a range of floor and wall mounted cabinets. A particular feature of this flat is the generous storage areas, one of which is currently being used as a small office space.
This lovely period home further benefits from gas central heating, framed single glazed windows, secure entry system, and communal gardens to the rear. Pollokshields is a thriving neighbourhood closely situated to a range of excellent restaurants, bars, and cafes and supermarkets.
More Details
Situation: Communal Garden
Council Tax Band: C
Tenure: Freehold
Your home may be repossessed if you do not keep up repayments on your mortgage.
There may be a fee for mortgage advice. The actual amount you pay will depend upon your circumstances. The fee is up to 1% but a typical fee is 0.3% of the amount borrowed.
Similar Properties
Looking To Sell Or Let?
Rettie is one of the most trusted and well-respected names in property. Our unrivalled market knowledge helps people from around the world buy, sell, let and develop property in Scotland and the North East of England - from city apartments and rural cottages to large townhouses and prime country homes, farms and estates. We deal with some of the most prestigious properties on the market, but provide the same exceptional standards of service and value for money to all our clients.
