The Coach House, 53 Argyle Street, St. Andrews, Fife, KY16 9BX

53 Argyle Street, St. Andrews, Fife, KY16 9BX
Pin View on map

Offers Over £985,000

House

Detached House

Bed

5 Bedrooms

Bathroom

3 Bathrooms

Reception

2 Reception Rooms

Tree

Private Garden

Garage

Garage

Telephone

Property Description

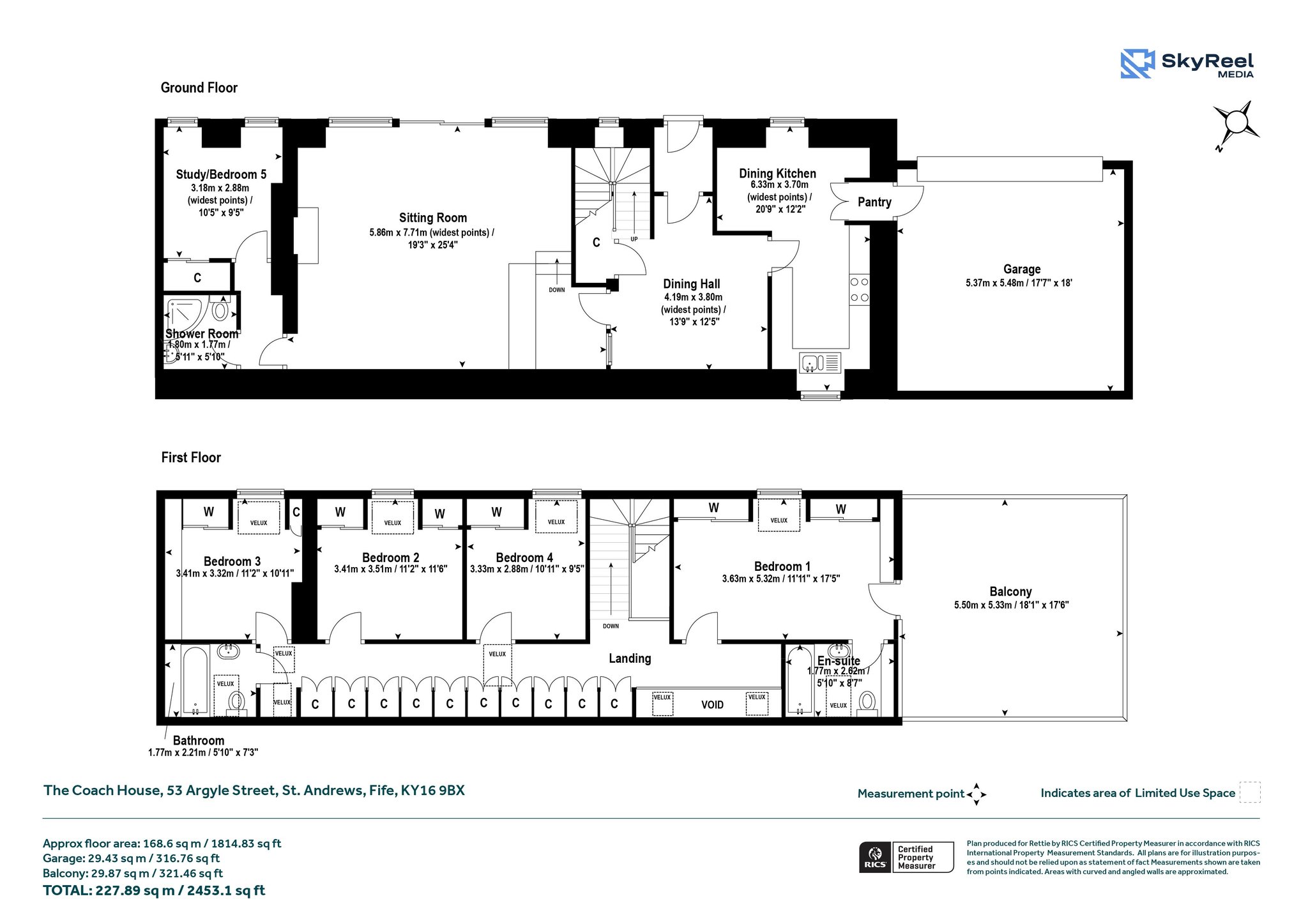
The Coach House, 53 Argyle Street, is a unique four/five-bedroom detached south facing converted coach house, offering generous and versatile accommodation in the very heart of historic St Andrews. Tucked away from street view and approached via a private drive, the property enjoys a rare sense of privacy while being just moments from the town centre.

On the ground floor, a welcoming entrance porch leads into a striking reception hall with a dining area, bathed in natural light and featuring a beautiful wooden staircase. The spacious sitting room, with its exposed stone wall, gas or coal fireplace and sliding doors opens onto a well established south facing front garden, offering a warm and inviting space, ideal for both family living and entertaining. Adjacent to the sitting room is a bright study providing a quiet retreat ideal for home working or a potential fifth bedroom, alongside a convenient shower room.

The generously sized dining kitchen is fitted with a ceramic hob, integrated oven, and ample storage, providing a practical and sociable space for everyday living. A useful walk through from the kitchen gives direct access to the double garage, which adds further convenience. Upstairs, a light-filled landing with generous built-in storage leads to the impressive principal bedroom, which features fitted wardrobes, an en-suite bathroom, and access to a large private balcony. Three further spacious double bedrooms, all with built-in storage, are served by a well-appointed family bathroom with tiled walls and a heated towel rail.

In addition, The Coach House enjoys a gravelled rear garden offering ample space for outdoor dining and relaxation, as well as a garden shed providing useful additional storage.

More Details

EPC Rating - E
Council Band - G
Tenure - Freehold

Summary of Accommodation

  • Entrance porch
  • Spacious reception hall with dining area and wooden staircase
  • Sitting room with exposed stone wall, fireplace and sliding doors to a well established south facing front garden with fruit trees
  • Study / optional fifth bedroom
  • Shower room
  • Dining kitchen with ceramic hob and integrated oven
  • Access to double garage from kitchen
  • Bedroom one with en-suite bathroom, built-in storage and balcony
  • Three further double bedrooms with built-in storage
  • Family bathroom with tiled walls and heated towel rail
  • Ample storage throughout
  • Gravelled rear garden with shed

The Coach House occupies a discreet position on Argyle Street, one of St Andrews most sought-after addresses. Hidden from direct street view yet ideally placed for easy access to all the towns amenities, the property combines privacy with convenience.

St Andrews is celebrated worldwide as the “Home of Golf,” offering seven exceptional courses including the iconic Old Course. The town is also internationally renowned for its prestigious university, Scotland’s oldest, and for its rich history, beautiful medieval architecture, and vibrant cultural scene. A wide range of boutique shops, independent cafés, restaurants, and galleries are found within a short walk, together with excellent leisure and recreational facilities.

For families, St Andrews provides access to highly regarded primary and secondary schooling, both state and private. The surrounding area offers wonderful opportunities for outdoor pursuits including coastal walks along the Fife Coastal Path, sailing, and beach activities on the award-winning West Sands.

Transport connections are excellent: the nearby railway station at Leuchars offers direct links to Edinburgh, Dundee, Aberdeen, and London, while Edinburgh International Airport is within easy reach, making St Andrews accessible for both national and international travel.

General Remarks & Information

Fixtures and Fittings:
Only appliances specifically mentioned in the sales particulars are included in the sale price. In all other aspects the treatment of fixtures and fittings within the relevant Conveyancing Standard Clauses apply.
All white goods to be included.

Services:
Mains gas, electric, water, broadband, telephone (subject to telephone providers’ regulations).

Viewing:
By appointment through St Andrews. 28 Bell Street, St Andrews, KY16 9UX. Email: standrews@rettie.co.uk Tel: 01334 237 700

Offers:
Offers should be submitted in Scottish Legal Form to the selling agents Rettie & Co. A closing date by which offers must be submitted may be fixed later. Please note that interested parties are advised to register their interest with the selling agents in order that they may be advised should a closing date be set. The seller reserves the right to accept any offer at any time.

Council Tax Band:
G

EPC Rating:
E

Postcode:
KY16 9BX

Tenure:
Freehold

Particulars Prepared:
27th August

Request More Details

Jill McCulley

Jill McCulley

Associate Director
Bob Duncan Cert CII (MP)

Bob Duncan Cert CII (MP)

Managing Director
Mortgage Calculator
Monthly payments
Please set an interest rate.

Your home may be repossessed if you do not keep up repayments on your mortgage.

There may be a fee for mortgage advice. The actual amount you pay will depend upon your circumstances. The fee is up to 1% but a typical fee is 0.3% of the amount borrowed.

Tax Calculator
LBTT calculator for properties purchased in Scotland. Stamp Duty calculator for properties purchased in England.
Land & buildings transaction tax (LBTT)
= £0
New build house with stone and timber cladding

Looking To Sell Or Let?

Rettie is one of the most trusted and well-respected names in property. Our unrivalled market knowledge helps people from around the world buy, sell, let and develop property in Scotland and the North East of England - from city apartments and rural cottages to large townhouses and prime country homes, farms and estates. We deal with some of the most prestigious properties on the market, but provide the same exceptional standards of service and value for money to all our clients.