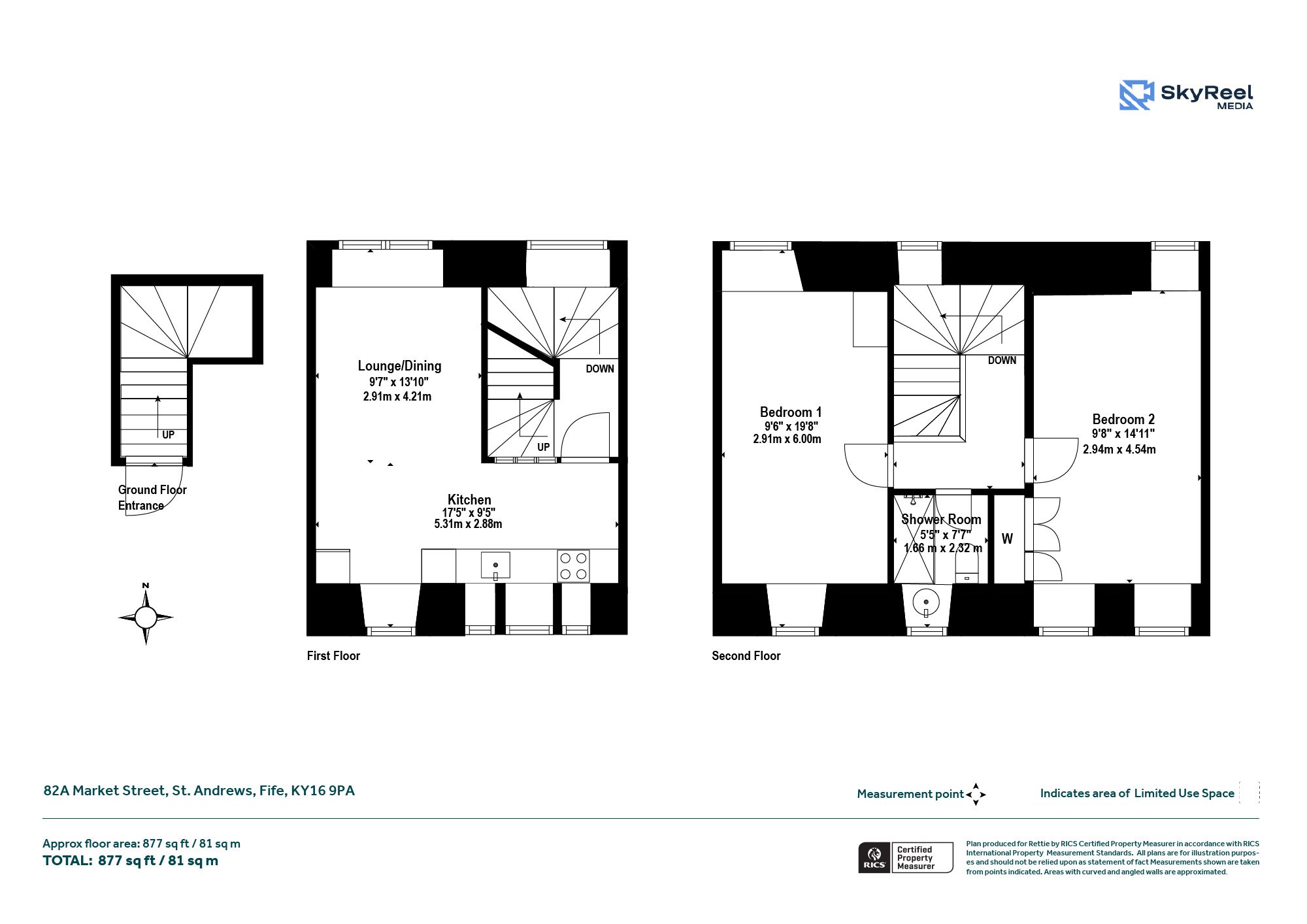
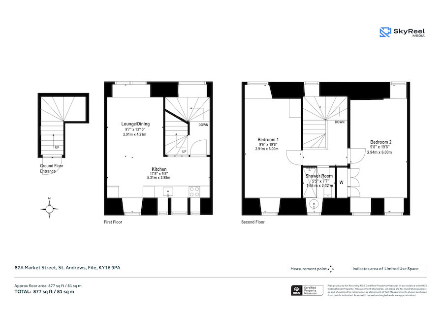
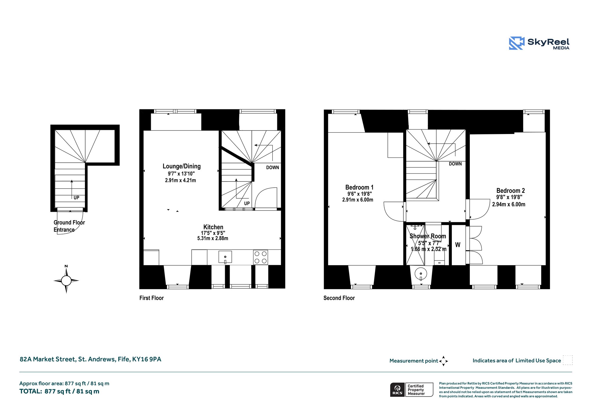
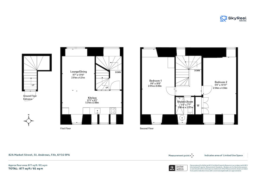
82A Market Street, St. Andrews, Fife, KY16 9PA

St. Andrews, Fife, KY16 9PA
Pin View on map

Offers Over £395,000

House

Duplex Apartment

Bed

2 Bedrooms

Bathroom

1 Bathroom

Reception

1 Reception Room

Parking

On Street/Permit

Telephone

Property Description

82A Market Street is an attractive duplex apartment occupying the first and second floors of a traditional stone building, accessed via a private entrance at ground level. The property offers well-proportioned accommodation arranged over two levels, including two double bedrooms and a bright open-plan living space, all set within a superbly central St Andrews location. Presented in modern condition throughout, the apartment benefits from gas central heating and would appeal equally as a main residence, second home or investment opportunity, with a current rental income of £1,950 per calendar month.

EPC Rating - C
Council Band - E
Tenure - Freehold

Summary of Accommodation

  • Private ground floor entrance with staircase leading to the first floor landing
  • Open-plan lounge, dining and kitchen with modern fitted units and outlooks to both the front and rear
  • Staircase leading to second floor
  • Two double bedrooms, one with built-in storage
  • Contemporary shower room

Location
St Andrews is internationally renowned as the Home of Golf and one of Scotland’s most historic and desirable coastal towns. The property is situated on Market Street, an iconic and highly sought-after central address, ideally positioned within walking distance of the town’s wide range of amenities. These include an excellent selection of independent shops, cafés, restaurants and bars, as well as the prestigious University of St Andrews, one of the oldest and most respected universities in the world.

The town is home to some of the most celebrated golf courses globally, including the Old Course, New Course, Jubilee Course and Castle Course, all of which are easily accessible from the property. The beautiful West Sands beach, historic cathedral ruins and picturesque harbour further enhance the area’s appeal, offering a unique combination of history, culture and coastal living.

St Andrews enjoys good transport links to the surrounding areas, with road connections to Dundee, Edinburgh and beyond, making this an exceptionally convenient and prestigious location for both residential living and investment.

General Remarks & Information

Fixtures and Fittings:
Only appliances specifically mentioned in the sales particulars are included in the sale price. In all other aspects the treatment of fixtures and fittings within the relevant Conveyancing Standard Clauses apply.

Services:
Gas heating, mains water, electricity, broadband, telephone (subject to telephone providers’ regulations).

Viewing:
By appointment through St Andrews. 28 Bell Street, St Andrews, KY16 9UX. Email: standrews@rettie.co.uk Tel: 01334 237 700

Offers:
Offers should be submitted in Scottish Legal Form to the selling agents Rettie & Co. A closing date by which offers must be submitted may be fixed later. Please note that interested parties are advised to register their interest with the selling agents in order that they may be advised should a closing date be set. The seller reserves the right to accept any offer at any time.

Council Tax Band:
E

EPC Rating:
C

Postcode:
KY16 9PA

Tenure:
Freehold

Particulars Prepared:
21st January 2026

Internet Website
This property and other properties offered by Rettie & Co. & Rettie LLP's. can be viewed on our website at www.rettie.co.uk as well as Rightmove, OnTheMarket and The London Office.

Servitude Rights, Burdens & Wayleaves
The property is sold subject to and with the benefit of all servitude rights, burdens, reservations and wayleaves including rights of access and rights of way, whether public or private, light, support, drainage, water and wayleaves for masts, pylons, stays, cable, drains and water, gas and other pipes whether contained in the title deeds or informally constituted and whether or not referred to above.

Important Notice

Rettie, Their Clients And Any Joint Agents Give Notice That

They are not authorised to make or give any representations or warranties in relation to the property either in writing or by word of mouth. Any information given is entirely without responsibility on the part of the agents or the sellers. These particulars do not form part of any offer or contract and must not be relied upon as statements or representations of fact.

All Rettie floorplans are drawn to RICS standard. The text, photographs and plans are for guidance only and are not necessarily comprehensive and it should not be assumed that the property remains as photographed. Any error, omission or mis-statement shall not annul the sale or entitle any party to compensation or recourse to action at law. It should not be assumed that the property has all necessary planning, building regulation or other consents, including for its current use. Rettie & Co. & Rettie LLP’s have not tested any services, equipment or facilities. Purchasers must satisfy themselves by inspection or otherwise and ought to seek their own professional advice.

All descriptions or references to condition are given in good faith only. Whilst every endeavour is made to ensure accuracy, please check with us on any points of especial importance to you, especially if intending to travel some distance. No responsibility can be accepted for expenses incurred in inspecting properties which have been sold or withdrawn.

Proof and source of Funds/Anti Money Laundering
Under the HMRC Anti Money Laundering legislation all offers to purchase a property on a cash basis or subject to mortgage require evidence of source of funds. This may include evidence of bank statements/funding source, mortgage or confirmation from a solicitor the purchaser has the funds to conclude the transaction.

All individuals involved in the transaction are required to produce proof of identity and proof of address. Rettie use electronic verification, if this is not possible original documents are acceptable.
Misrepresentations

The property is sold with all faults and defects, whether of condition or otherwise and neither the seller nor Rettie & Co. or Rettie LLP’s, the selling agent, are responsible for such faults and defects, nor for any statement contained in the particulars of the property prepared by the said agent.
The Purchaser(s) shall be deemed to acknowledge that they have not entered into contract in reliance on the said statements, that they are satisfied themselves as to the content of each of the said statements by inspection or otherwise and that no warranty or representation has been made by the seller or the said agents in relation to or in connection with the property.

Any error, omission or misstatement in any of the said statements shall not entitle the purchaser(s) to rescind or to be discharged from this contract, nor entitle either party to compensation or damages nor in any circumstances to give either party any cause for action.

More Details

Situation: Contact branch
Council Tax Band: E
Tenure: Freehold

Request More Details

Cora Johnson

Cora Johnson

Sales Consultant
Bob Duncan Cert CII (MP)

Bob Duncan Cert CII (MP)

Managing Director
Mortgage Calculator
Monthly payments
Please set an interest rate.

Your home may be repossessed if you do not keep up repayments on your mortgage.

There may be a fee for mortgage advice. The actual amount you pay will depend upon your circumstances. The fee is up to 1% but a typical fee is 0.3% of the amount borrowed.

Tax Calculator
LBTT calculator for properties purchased in Scotland. Stamp Duty calculator for properties purchased in England.
Land & buildings transaction tax (LBTT)
= £0
New build house with stone and timber cladding

Looking To Sell Or Let?

Rettie is one of the most trusted and well-respected names in property. Our unrivalled market knowledge helps people from around the world buy, sell, let and develop property in Scotland and the North East of England - from city apartments and rural cottages to large townhouses and prime country homes, farms and estates. We deal with some of the most prestigious properties on the market, but provide the same exceptional standards of service and value for money to all our clients.