14 West Port Court, Bridge Street, St. Andrews, Fife, KY16 9FB
Offers Over £545,000
Apartment
3 Bedrooms
3 Bathrooms
1 Reception Room
Communal Garden
Off Street Parking
Property Description
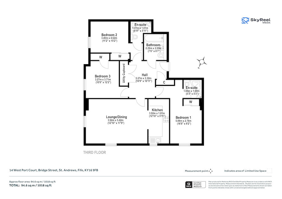
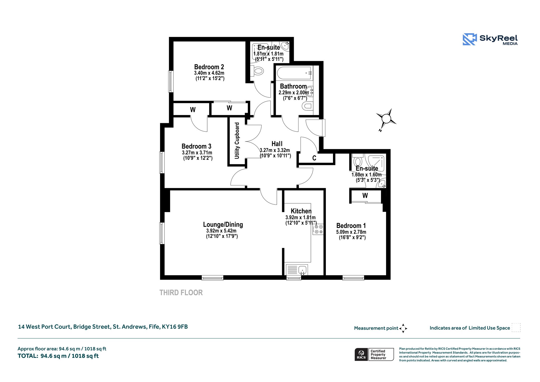
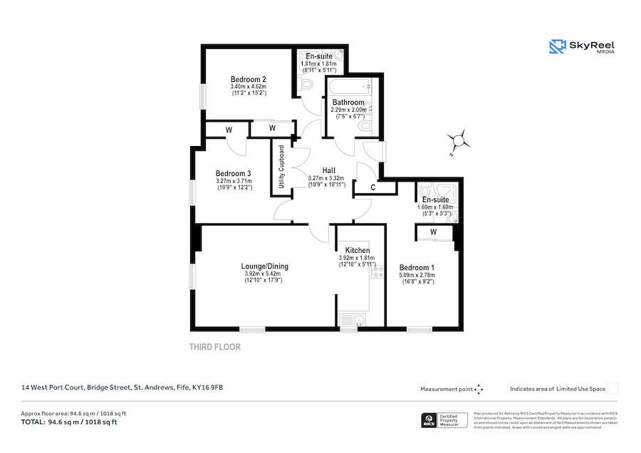
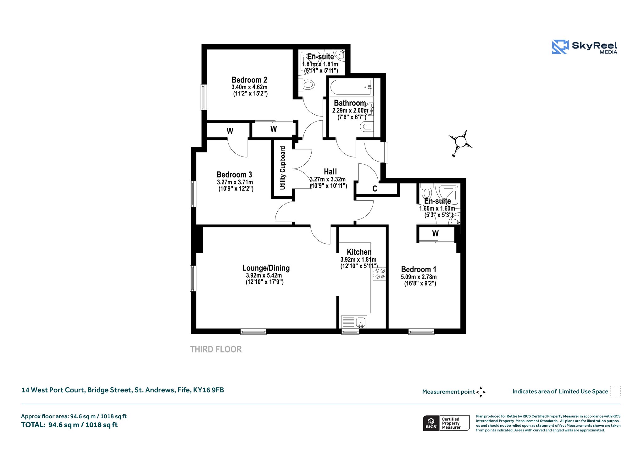
14 West Port Court is a bright and well-presented three-bedroom top floor corner apartment, forming part of a modern residential development in the heart of St Andrews. The property offers spacious, contemporary accommodation finished to a high standard, benefitting from excellent natural light, lift access, entry system and a designated parking space.
The open plan kitchen and generous dining sitting room, with dual outlook over the historic West Port and City Road, is the stunning centrepiece. The fitted kitchen is well equipped with integrated appliances including a five-burner gas hob, electric oven, fridge-freezer and dishwasher.
There are three well-proportioned double bedrooms, two with en-suite shower rooms. A separate family bathroom serves the remaining bedroom and guests. From the reception hallway, two utility cupboards provide additional storage and house the hot water tank, washing machine and tumble dryer.
Other features include timber double glazed windows, gas central heating via a recently installed Worcester Bosch boiler (2023) complete with Hive controls, a secure door entry system and CCTV. In the grounds there is a designated car parking space with bollard, communal patio garden and bike rack facilities. Comprehensive factor management is provided by Taylor & Martin.
The apartment currently holds a 3-person HMO licence (expiry May 2027) and has recently obtained a Short Term Let licence for 3 years, offering excellent flexibility for owner-occupation or investment purposes. Further information regarding potential rental income streams is available on request.
More Details
EPC Rating - B
Council Band - F
Tenure - Freehold
Summary of Accommodation
- Reception hallway
- Spacious dining / sitting room
- Open plan fitted kitchen (with optional sliding doors)
- Two double bedrooms with en-suite shower rooms
- Further double bedroom
- Family bathroom
- Utility cupboard with storage space
- Utility cupboard with large hot water tank, washing machine and tumble dryer
- Lift access
- Designated parking
- Entry system
- Communal patio area
- Furniture available by separate negotiation
Location
West Port Court enjoys an enviable central position just off Bridge Street, placing it within immediate reach of the many amenities St Andrews has to offer. The property is ideally located for St Andrews University, with a wide range of academic buildings, student facilities and libraries all within comfortable walking distance.
The town centre provides an excellent selection of independent shops, cafés, restaurants and services, while the world-famous Old Course, other championship golf courses and the West Sands and East Sands beaches are all close by. The harbour, coastal walks and open green spaces further enhance the appeal of the area.
St Andrews is well connected, with regular bus services linking to Leuchars railway station and onward routes to Dundee, Edinburgh and beyond, making this an ideal base for permanent residence, academic use or investment.
General Remarks & Information
Fixtures and Fittings:
Only appliances specifically mentioned in the sales particulars are included in the sale price. In all other aspects the treatment of fixtures and fittings within the relevant Conveyancing Standard Clauses apply.
The furniture is available by separate negotiation.
Services:
Gas heating, mains water, electricity, broadband, telephone (subject to telephone providers’ regulations).
Viewing:
By appointment through Rettie St Andrews. 28 Bell Street, St Andrews, KY16 9UX. Email: standrews@rettie.co.uk Tel: 01334 237 700
Offers:
Offers should be submitted in Scottish Legal Form to the selling agents Rettie & Co. A closing date by which offers must be submitted may be fixed later. Please note that interested parties are advised to register their interest with the selling agents in order that they may be advised should a closing date be set. The seller reserves the right to accept any offer at any time.
Council Tax Band:
F
EPC Rating:
B
Postcode:
KY16 9FB
Tenure:
Freehold
Internet Website
This property and other properties offered by Rettie & Co. & Rettie LLP's. can be viewed on our website at www.rettie.co.uk as well as Rightmove, OnTheMarket and The London Office.
Servitude Rights, Burdens & Wayleaves
The property is sold subject to and with the benefit of all servitude rights, burdens, reservations and wayleaves including rights of access and rights of way, whether public or private, light, support, drainage, water and wayleaves for masts, pylons, stays, cable, drains and water, gas and other pipes whether contained in the title deeds or informally constituted and whether or not referred to above.
Important Notice
Rettie, Their Clients And Any Joint Agents Give Notice That
They are not authorised to make or give any representations or warranties in relation to the property either in writing or by word of mouth. Any information given is entirely without responsibility on the part of the agents or the sellers. These particulars do not form part of any offer or contract and must not be relied upon as statements or representations of fact.
All Rettie floorplans are drawn to RICS standard. The text, photographs and plans are for guidance only and are not necessarily comprehensive and it should not be assumed that the property remains as photographed. Any error, omission or mis-statement shall not annul the sale or entitle any party to compensation or recourse to action at law. It should not be assumed that the property has all necessary planning, building regulation or other consents, including for its current use. Rettie & Co. & Rettie LLP’s have not tested any services, equipment or facilities. Purchasers must satisfy themselves by inspection or otherwise and ought to seek their own professional advice.
All descriptions or references to condition are given in good faith only. Whilst every endeavour is made to ensure accuracy, please check with us on any points of especial importance to you, especially if intending to travel some distance. No responsibility can be accepted for expenses incurred in inspecting properties which have been sold or withdrawn.
Proof and source of Funds/Anti Money Laundering
Under the HMRC Anti Money Laundering legislation all offers to purchase a property on a cash basis or subject to mortgage require evidence of source of funds. This may include evidence of bank statements/funding source, mortgage or confirmation from a solicitor the purchaser has the funds to conclude the transaction.
All individuals involved in the transaction are required to produce proof of identity and proof of address. Rettie use electronic verification, if this is not possible original documents are acceptable.
Misrepresentations
The property is sold with all faults and defects, whether of condition or otherwise and neither the seller nor Rettie & Co. or Rettie LLP’s, the selling agent, are responsible for such faults and defects, nor for any statement contained in the particulars of the property prepared by the said agent.
The Purchaser(s) shall be deemed to acknowledge that they have not entered into contract in reliance on the said statements, that they are satisfied themselves as to the content of each of the said statements by inspection or otherwise and that no warranty or representation has been made by the seller or the said agents in relation to or in connection with the property.
Any error, omission or misstatement in any of the said statements shall not entitle the purchaser(s) to rescind or to be discharged from this contract, nor entitle either party to compensation or damages nor in any circumstances to give either party any cause for action.
Your home may be repossessed if you do not keep up repayments on your mortgage. There may be a fee for mortgage advice. The actual amount you pay will depend upon your circumstances.
Similar Properties
Looking To Sell Or Let?
Rettie is one of the most trusted and well-respected names in property. Our unrivalled market knowledge helps people from around the world buy, sell, let and develop property in Scotland and the North East of England - from city apartments and rural cottages to large townhouses and prime country homes, farms and estates. We deal with some of the most prestigious properties on the market, but provide the same exceptional standards of service and value for money to all our clients.
