232 Bell Brae, St. Andrews, Fife, KY16 9FF

St. Andrews, Fife, KY16 9FF
New
Pin View on map

Offers Over £320,000

House

Ground Floor Apartment

Bed

1 Bedroom

Bathroom

1 Bathroom

Reception

1 Reception Room

Tree

Private Garden

Parking

On Street/Permit

Telephone

Property Description

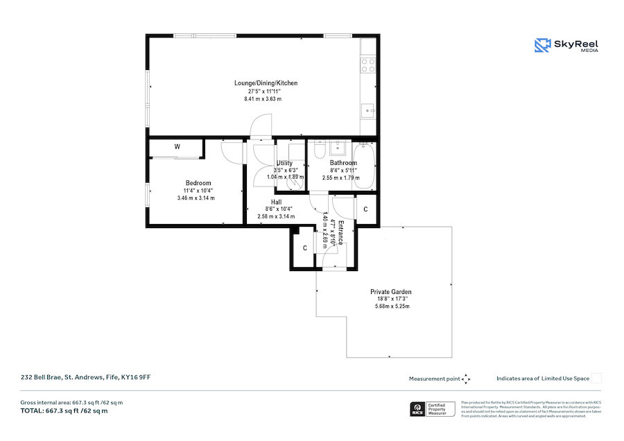
232 Bell Brae is a well-presented, modern one-bedroom ground-floor apartment with walled terrace garden, designed by the award-winning Studio LBA and forming part of an exclusive and sustainable community in St Andrews, led by Headon and S1 Developments. Thoughtfully designed to provide bright, comfortable and contemporary living, the apartment offers a calm and welcoming atmosphere throughout. The interior is finished in a neutral colour palette, creating a cohesive and tranquil feel, while wood flooring in the hallway and principal living space adds warmth and a sense of quality, perfectly complementing the modern design.

The generous open-plan lounge, dining and kitchen area forms the heart of the property and is particularly light and inviting, benefitting from three large windows that allow excellent natural daylight. The modern fitted kitchen is well equipped with sleek cabinetry, integrated appliances and an induction hob, offering a practical and stylish space for everyday living and entertaining.

The well-proportioned double bedroom benefits from a built-in wardrobe, while the modern bathroom is fully tiled and fitted with a contemporary suite, including a shower over the bath. Additional storage is provided by three spacious hall cupboards, one of which discreetly houses the air source heat pump equipment along with plumbing for a washing machine. The property further benefits from double glazing, air source heating and underfloor heating throughout, creating an energy-efficient, comfortable and low-maintenance home.

A particular highlight of the property is the private walled terrace garden, providing a sheltered outdoor space ideal for relaxing or entertaining and further enhancing the apartment’s lifestyle appeal. In addition, there is a secure bike store located to the side of the property, offering convenient storage for bicycles, golf clubs and other outdoor equipment.

More Details

EPC Rating - C
Council Tax Band - E
Tenure - Freehold

Summary of Accommodation

  • Modern ground floor apartment
  • Open plan lounge/dining/kitchen
  • Fitted kitchen with integrated appliances
  • Double bedroom with built in wardrobe
  • Contemporary bathroom with shower over bath
  • Three large hall storage cupboards, one with plumbing for a washing machine
  • Double glazing
  • Underfloor heating throughout
  • Walled terrace garden
  • Secure bike store

Location
Bell Brae is situated within a popular modern development to the west of St Andrews, offering a peaceful residential setting while remaining within easy reach of the town centre, west beach and golf courses. St Andrews is internationally recognised for its historic university, world class golf courses and stunning coastal scenery, as well as its vibrant cultural and social life.

The town provides an excellent selection of independent and specialist shops, cafés, restaurants and leisure facilities, along with beautiful beaches and scenic coastal and countryside walks. The property is well located for access to the university, local bus routes and road networks, with connections via the A91 and A92 to Dundee, Edinburgh and the wider Fife area. The nearby railway station at Leuchars offers direct links to major cities, making this an ideal location for commuters as well as those seeking a second home or investment opportunity.

General Remarks & Information

Fixtures and Fittings:
Only appliances specifically mentioned in the sales particulars are included in the sale price. In all other aspects the treatment of fixtures and fittings within the relevant Conveyancing Standard Clauses apply.
Some items are available under separate negotiation.

Services:
Heating and hot water are provided via an Air Source heat pump. Mains water, electricity, broadband, telephone (subject to telephone providers’ regulations).

Viewing:
By appointment through Rettie St Andrews. 28 Bell Street, St Andrews, KY16 9UX. Email: standrews@rettie.co.uk Tel: 01334 237 700

Offers:
Offers should be submitted in Scottish Legal Form to the selling agents Rettie & Co. A closing date by which offers must be submitted may be fixed later. Please note that interested parties are advised to register their interest with the selling agents in order that they may be advised should a closing date be set. The seller reserves the right to accept any offer at any time.

Council Tax Band:
E

EPC Rating:
C

Postcode:
KY16 9FF

Tenure:
Freehold

Particulars Prepared:
11th April 2026

Internet Website
This property and other properties offered by Rettie & Co. & Rettie LLP's. can be viewed on our website at www.rettie.co.uk as well as Rightmove, OnTheMarket and The London Office.

Servitude Rights, Burdens & Wayleaves
The property is sold subject to and with the benefit of all servitude rights, burdens, reservations and wayleaves including rights of access and rights of way, whether public or private, light, support, drainage, water and wayleaves for masts, pylons, stays, cable, drains and water, gas and other pipes whether contained in the title deeds or informally constituted and whether or not referred to above.

Important Notice

Rettie, their clients and any joint agents give notice that:
They are not authorised to make or give any representations or warranties in relation to the property either in writing or by word of mouth. Any information given is entirely without responsibility on the part of the agents or the sellers. These particulars do not form part of any offer or contract and must not be relied up on as statements or representations of fact.

All Rettie floorplans are drawn to RICS standard. The text, photographs and plans are for guidance only and are not necessarily comprehensive and it should not be assumed that the property remains as photographed. Any error, omission or mis-statement shall not annul the sale or entitle any party to compensation or recourse to action at law. It should not be assumed that the property has all necessary planning, building regulation or other consents, including for its current use. Rettie & Co. & Rettie LLP’s have not tested any services, equipment or facilities. Purchasers must satisfy themselves by inspection or otherwise and ought to seek their own professional advice.

All descriptions or references to condition are given in good faith only. Whilst every endeavour is made to ensure accuracy, please check with us on any points of especial importance to you, especially if intending to travel some distance. No responsibility can be accepted for expenses incurred in inspecting properties which have been sold or withdrawn.

Proof and source of Funds/Anti Money Laundering
Under the HMRC Anti Money Laundering legislation all offers to purchase a property on a cash basis or subject to mortgage require evidence of source of funds. This may include evidence of bank statements/funding source, mortgage or confirmation from a solicitor the purchaser has the funds to conclude the transaction.

All individuals involved in the transaction are required to produce proof of identity and proof of address. Rettie use electronic verification, if this is not possible original documents are acceptable.

Misrepresentations
The property is sold with all faults and defects, whether of condition or otherwise and neither the seller nor Rettie & Co. or Rettie LLP’s, the selling agent, are responsible for such faults and defects, nor for any statement contained in the particulars of the property prepared by the said agent.

The Purchaser(s) shall be deemed to acknowledge that they have not entered into contract in reliance on the said statements, that they are satisfied themselves as to the content of each of the said statements by inspection or otherwise and that no warranty or representation has been made by the seller or the said agents in relation to or in connection with the property.

Any error, omission or misstatement in any of the said statements shall not entitle the purchaser(s) to rescind or to be discharged from this contract, nor entitle either party to compensation or damages nor in any circumstances to give either party any cause for action.

Request More Details

Cora Johnson

Cora Johnson

Sales Consultant
Bob Duncan Cert CII (MP)

Bob Duncan Cert CII (MP)

Managing Director
Mortgage Calculator
Monthly payments
Please set an interest rate.

Your home may be repossessed if you do not keep up repayments on your mortgage.

There may be a fee for mortgage advice. The actual amount you pay will depend upon your circumstances. The fee is up to 1% but a typical fee is 0.3% of the amount borrowed.

Tax Calculator
LBTT calculator for properties purchased in Scotland. Stamp Duty calculator for properties purchased in England.
Land & buildings transaction tax (LBTT)
= £0
New build house with stone and timber cladding

Looking To Sell Or Let?

Rettie is one of the most trusted and well-respected names in property. Our unrivalled market knowledge helps people from around the world buy, sell, let and develop property in Scotland and the North East of England - from city apartments and rural cottages to large townhouses and prime country homes, farms and estates. We deal with some of the most prestigious properties on the market, but provide the same exceptional standards of service and value for money to all our clients.