31 Shillingworth Place, Bridge Of Weir, Renfrewshire, PA11 3DY
Offers Over £425,000
Detached House
5 Bedrooms
3 Bathrooms
2 Reception Rooms
Private Garden
Garage
Off Street Parking
Property Description
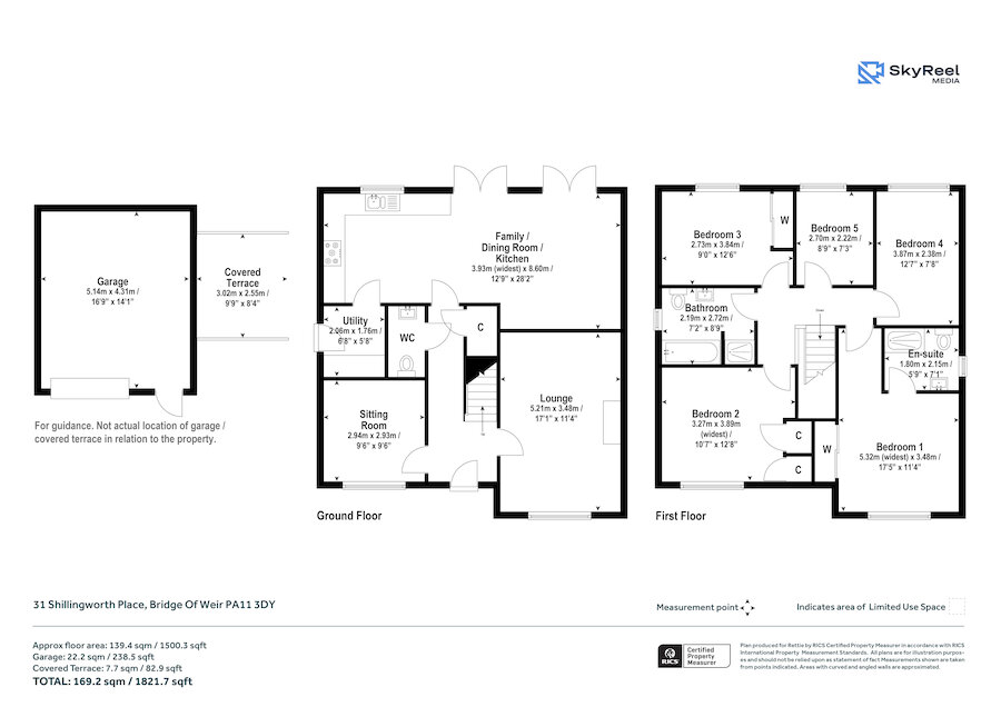
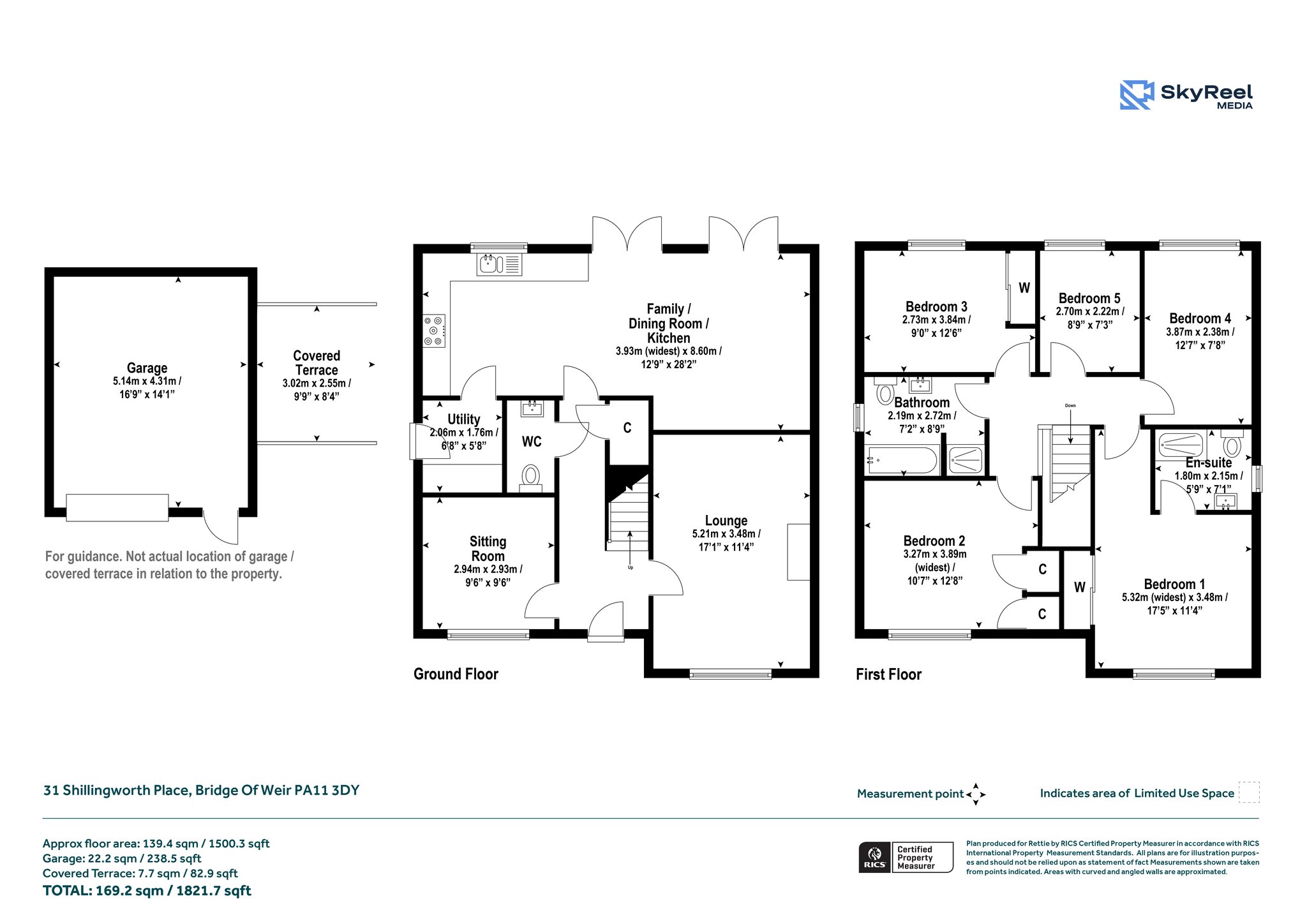
31 Shillingworth Place is an impressive detached home located in the heart of the popular Renfrewshire village of Bridge of Weir. Enjoying an elevated position, the property boasts far reaching views over the local countryside and beyond. This stunning home occupies a highly sought after location in a much admired modern development within Gryffe catchment.
Built circa 2017, the property is presented to the market in excellent decorative order throughout providing bright and airy accommodation over two levels. Finished to an impressive specification, it combines contemporary design with a spacious and versatile layout.
The accommodation is entered via the reception hallway which leads to the sitting room and a well-proportioned lounge. There is a WC/cloak and understair storage area located off the inner hallway.
This leads into an extensive open plan kitchen with family and dining area which comes with a comprehensive range of wall and base storage units and integrated appliances. Filled with natural light and with French doors opening up into the landscaped gardens to the rear, this is the perfect place to entertain, particularly in the summer months. The utility room is located off the kitchen and provides additional space for storage and white goods.
On the upper level there are five bedrooms. The principle bedroom is front facing and enjoys great open views and comes with an ensuite bathroom. There are another 4 bedrooms and a beautifully appointed family bathroom.
There is a monobloc driveway to the side of the property providing ample off street parking for several vehicles and electric car charger This leads to the garage which has power and lighting.
The rear gardens have been professionally landscaped and include a large flagstone terrace, astroturf and a cleverly designed glass pergola attached to the garage, ideal for BBQ and outdoor entertainment.
High internal specification
Oak veneer doors
Hardwood flooring
Beautifully decorated and presented
Electric car charger
Landscaped gardens
Gryffe catchment
The area boasts excellent educational options, including Bridge of Weir Primary and Gryffe High School. Nearby Glasgow provides a number of excellent private schools, some with transport by school bus.
Surrounded by scenic countryside, Bridge of Weir offers easy access to walking, cycling, and outdoor activities, with the Clyde Muirshiel Regional Park and Gryffe Valley nearby for weekend adventures. Golf enthusiasts will appreciate the proximity of Ranfurly Castle and Old Course Ranfurly golf clubs — both offering first-class facilities and stunning views.
The village also features a thoughtful selection of independent cafés, shops, restaurants, and essential services, creating a strong sense of local life and community. With a reputation for safety, good schooling, and green open space, Bridge of Weir is ideal for families, retirees, and those seeking a refined, relaxed lifestyle. The area retains its historic charm with a range of period homes and buildings, giving the village a distinctive character that continues to attract discerning buyers.
EPC : BAND B
COUNCIL TAX : BAND G
TENURE : FREEHOLD
More Details
Situation: Private Garden
Council Tax Band: G
Tenure: Contact Branch
Your home may be repossessed if you do not keep up repayments on your mortgage.
There may be a fee for mortgage advice. The actual amount you pay will depend upon your circumstances. The fee is up to 1% but a typical fee is 0.3% of the amount borrowed.
Similar Properties
Looking To Sell Or Let?
Rettie is one of the most trusted and well-respected names in property. Our unrivalled market knowledge helps people from around the world buy, sell, let and develop property in Scotland and the North East of England - from city apartments and rural cottages to large townhouses and prime country homes, farms and estates. We deal with some of the most prestigious properties on the market, but provide the same exceptional standards of service and value for money to all our clients.
