Building Plot West Of The Arches, Reedy Loch, Duns, Berwickshire, TD11 3PS

Duns, Berwickshire, TD11 3PS
Under Offer
Pin View on map

Offers Over £165,000

Size

262 sq.m

Plot

About 0.40 Acres

Telephone

Property Description

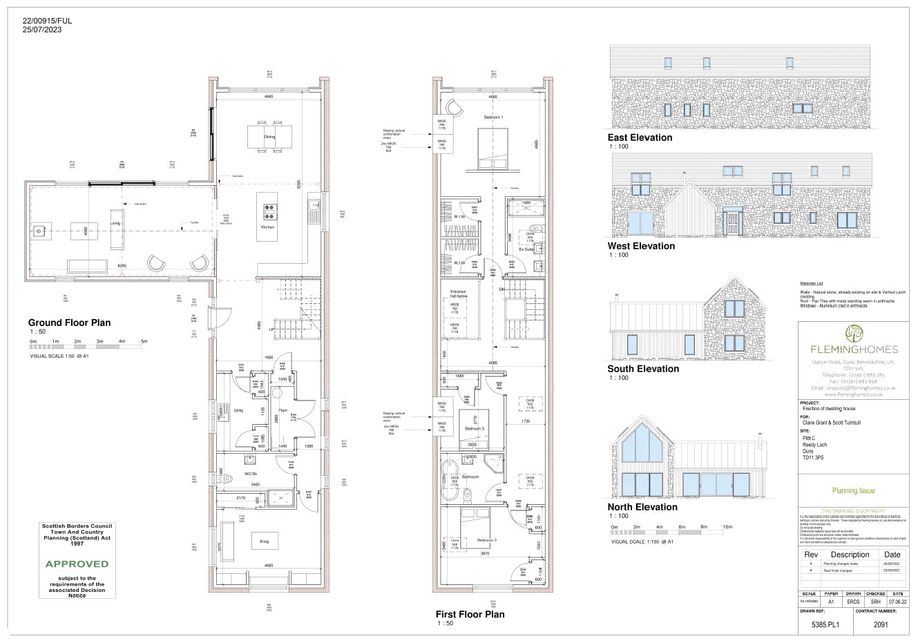
A rare opportunity to acquire a generous building plot of circa 0.4 acres which benefits from full planning under ref: 22/00915/FUL for the construction of an impressive 4 bedroom, 262 sq. metre house with a detached double carport.

The design of the house is sympathetic to the sites former barn and will comprise of stone, larch cladding, a pan tile roof and aluminium clad anthracite windows and doors. The site has been serviced with a three phase electricity supply, mains water and the derelict stone barn has been dismantled and the stone is on site ready for construction.

The plot occupies a rural yet accessible location, within the picturesque hamlet of Reedyloch and is conveniently only 2 miles from the town of Duns and benefits from far reaching, wonderful rural views.

Distances: Berwick-upon-Tweed 14 miles, Duns 2 miles, Edinburgh 45 miles.

More Details

Situation: Contact branch
Council Tax Band: Contact branch
Tenure: Freehold

Contact Us

Amy Brown

Amy Brown

Associate Director
Mortgage Calculator
Monthly payments
Please set an interest rate.

Your home may be repossessed if you do not keep up repayments on your mortgage.

There may be a fee for mortgage advice. The actual amount you pay will depend upon your circumstances. The fee is up to 1% but a typical fee is 0.3% of the amount borrowed.

Tax Calculator
LBTT calculator for properties purchased in Scotland. Stamp Duty calculator for properties purchased in England.
Land & buildings transaction tax (LBTT)
= £0
New build house with stone and timber cladding

Looking To Sell Or Let?

Rettie is one of the most trusted and well-respected names in property. Our unrivalled market knowledge helps people from around the world buy, sell, let and develop property in Scotland and the North East of England - from city apartments and rural cottages to large townhouses and prime country homes, farms and estates. We deal with some of the most prestigious properties on the market, but provide the same exceptional standards of service and value for money to all our clients.