Offers Over £320,000
Terraced House
3 Bedrooms
2 Bathrooms
2 Reception Rooms
Private Garden
Garage
Property Description
- Fantastic three bedroomed end of terraced villa
- Part of Bearsden’s popular, quietly placed Ledcameroch Park development
- A home that will appeal to families and couples in equal measure
- Well maintained yet with scope to redecorate according to taste/budget
- Residents parking and private garage with remote controlled access
- Nicely arranged, notably private garden space to rear
- Bearsden Primary/Bearsden Academy catchment area
Enjoying a fabulous location amidst a beautifully landscaped modern development, this end of terrace villa is one of the larger style three bedroom models that form part of Bearsden highly regarded Ledcameroch Park development. A superb home for small/burgeoning families and downsizing couples in equal measure, with fantastic garden space and a private garage only adding to the appeal here.
The property here has been under the same ownership for a number of years and has been very well maintained across said duration, with the successful bidder afforded exciting scope to apply their own thoughts and ideas for aesthetic and any further building work. A small extension has, in the past, been implemented to the ground floor – adding to the reception hallway and providing a downstairs shower room facility. A clever configuration and good room proportions across the accommodation.
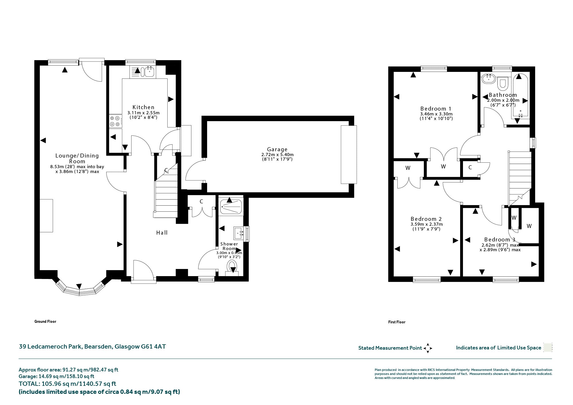
Our Suite Of Hdr Images, 360° Immersive Tour, Hd Video, And Floor Plan Will Allow For Thorough Desktop Appraisal Of The Property, With A Summary Of The Accommodation As Follows
Summary of Accommodation
- Reception hallway with staircase to first floor and storage off
- Shower room
- Bay windowed lounge
- Dining area (courtesy door to rear)
- Kitchen
- Family bathroom
- Three bedrooms (two doubles and additional single room)
Situation
Ledcameroch Park is a peaceful location with no through road and the property is well placed for public transport (Bearsden train station is within walking distance), a number of local and national retailers and Bearsden Cross is also reachable by foot. There is also a strong mixture of private and public schooling within the area and the centre of Glasgow is reachable in approximately 20 minutes by car
Sat Nav Ref: G61 1nz
EPC : BAND C
COUNCIL TAX : BAND F
TENURE : FREEHOLD
More Details
Situation: Private Garden
Council Tax Band: F
Tenure: Freehold
Your home may be repossessed if you do not keep up repayments on your mortgage. There may be a fee for mortgage advice. The actual amount you pay will depend upon your circumstances.
Similar Properties
Looking To Sell Or Let?
Rettie is one of the most trusted and well-respected names in property. Our unrivalled market knowledge helps people from around the world buy, sell, let and develop property in Scotland and the North East of England - from city apartments and rural cottages to large townhouses and prime country homes, farms and estates. We deal with some of the most prestigious properties on the market, but provide the same exceptional standards of service and value for money to all our clients.






























































