Offers Over £415,000
Detached House
4 Bedrooms
2 Bathrooms
2 Reception Rooms
Private Garden
Property Description
Built in 1992 by Ambion Homes this six-apartment Detached House, used as three public and three bedrooms but can be two and four, is situated at the cul-de-sac end of Abercrombie Drive in the North Baljaffray area of Bearsden and has a great position being the first property beyond the lovely expanse of Park/Meadowland that runs along Abercrombie Drive. Its south facing rear garden backs and sides onto same.
Six full apartments (can be used as four or three bedrooms as required).
• Lounge, Dining Room, TV Room and three Bedrooms.
• Very smart Kitchen and Utility, by Wren Kitchens.
• Refitted Bathroom, Ensuite Shower Room and WC.
• Great position, backing on to expanse of meadowland/park.
• Very private rear garden, south facing.
• Gas central heating and double glazing
• Alarm
• Single garage.
Description
Our clients have owned the property since new and have made significant improvements since. The impressively maintained garden an impressively maintained boundary hedge, hard and soft landscaping (including a large sun patio in the rear garden), lawns and a wide monobloc driveway. Both the kitchen and utility were refitted by Wren Kitchens, and all sanitary ware (bathroom, ensuite shower room, and WC) have all been renewed.
The design of the house is split level which makes for an appealing layout. The kitchen and shower room were replaced in 2019 and the bathroom in 2020. Prior to that the en-suite shower room was redone, the shower enclosure further upgraded in 2020, as was the guest WC. As one can see from our photographs and video the subjects are all in good order and will provide a great home for family buyers with school catchment being for Baljaffray Primary and the high-performing Bearsden Academy at Courthill. Next to this is St Nicholas’s Primary. 
In terms of specification the property has a range of integrated kitchen appliances, a mains gas central system (with a Worcester Greenstar Ri system boiler), security alarm system, timber framed double glazed windows (exterior frames painted in 2022) and a single garage.
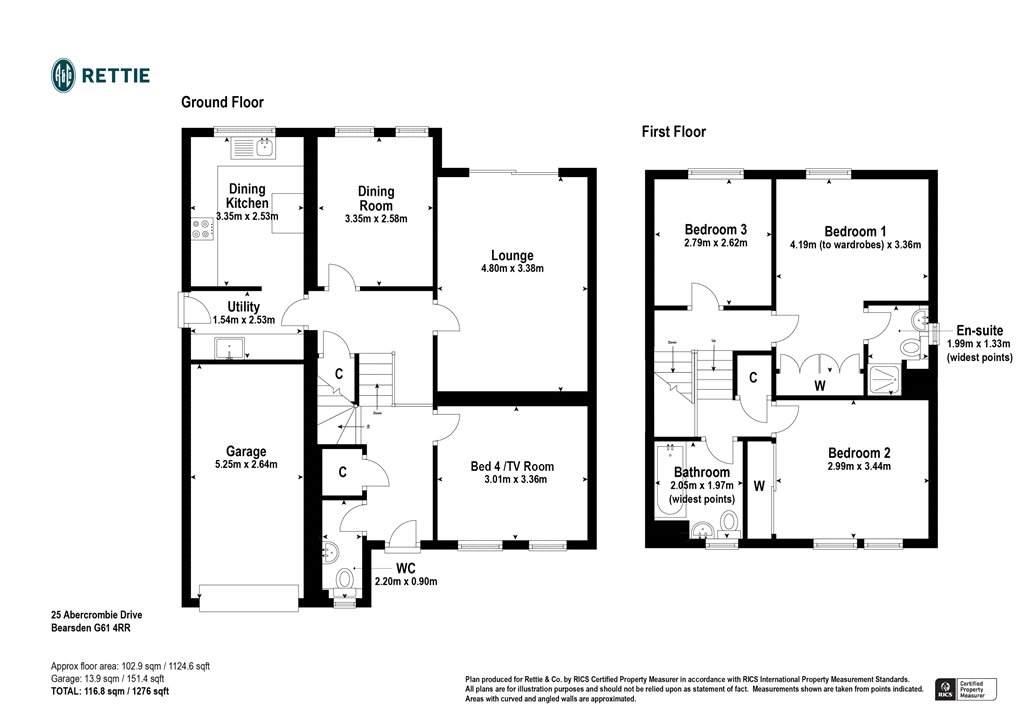
Summary of Accommodation
Entrance portico, split-level reception hall, lounge with uPVC patio doors to rear garden, dining room, TV Room (could be 4th bedroom if needed), kitchen with white Shaker units and smart oak laminate worktops and upstands and including a breakfast bar. Appliances include - four burner gas hob, a designer style cooker hood, double oven with grill, dishwasher, integrated fridge freezer and a glass fronted wine fridge. The utility room is similarly fitted to the kitchen and set on a semi-open plan basis to it. WC
The staircase to the upper level again ascends to a split-level landing where there is a fitted linen cupboard housing the hot water cylinder. There are three bedrooms on the upper level with bedroom 1 having an ensuite shower room. To service the other bedrooms is the family bathroom, with shower over the bath.
The garden is superbly tended and in addition to lawned areas has the single garage, with the monobloc double width driveway to the front, a garden shed and a brick-built BBQ area, there are two patio/terrace areas with one in a sheltered and largely enclosed side area of garden.
Location
North Baljaffray is on the northwest edge of Bearsden, beside Windyhill Golf Course. Baljaffray Precinct has a soon to open Sainsbury’s, Boots, Helmi’s café/bakery, hairdressers, dry cleaners, and a couple of take-aways. Bearsden Cross, the heart of Bearsden, is some 2 miles away. Here there is a great range of quality independent retailers along with a Marks & Spencer Foodhall. Bearsden Railway Station is just south of The Cross. The Village Centre of Milngavie is roughly the same distance away where there are many more shops and services including a large Waitrose, Tesco, and Aldi.
Sat NAV Ref: G61 4RR
Note: the photographs are images from a shoot in 2022
Tenure : Freehold
Council Tax : Band G
EPC : Band
More Details
Situation: BalconyPrivate Garden
Council Tax Band: G
Tenure: Freehold
Your home may be repossessed if you do not keep up repayments on your mortgage. There may be a fee for mortgage advice. The actual amount you pay will depend upon your circumstances.
Similar Properties
Looking To Sell Or Let?
Rettie is one of the most trusted and well-respected names in property. Our unrivalled market knowledge helps people from around the world buy, sell, let and develop property in Scotland and the North East of England - from city apartments and rural cottages to large townhouses and prime country homes, farms and estates. We deal with some of the most prestigious properties on the market, but provide the same exceptional standards of service and value for money to all our clients.

