Kilmardinny Meadows, 39 Lovat Avenue, Bearsden, G61 3LQ

Bearsden, G61 3LQ
Under Offer
Pin View on map

Offers Over £495,000

House

First Floor Apartment

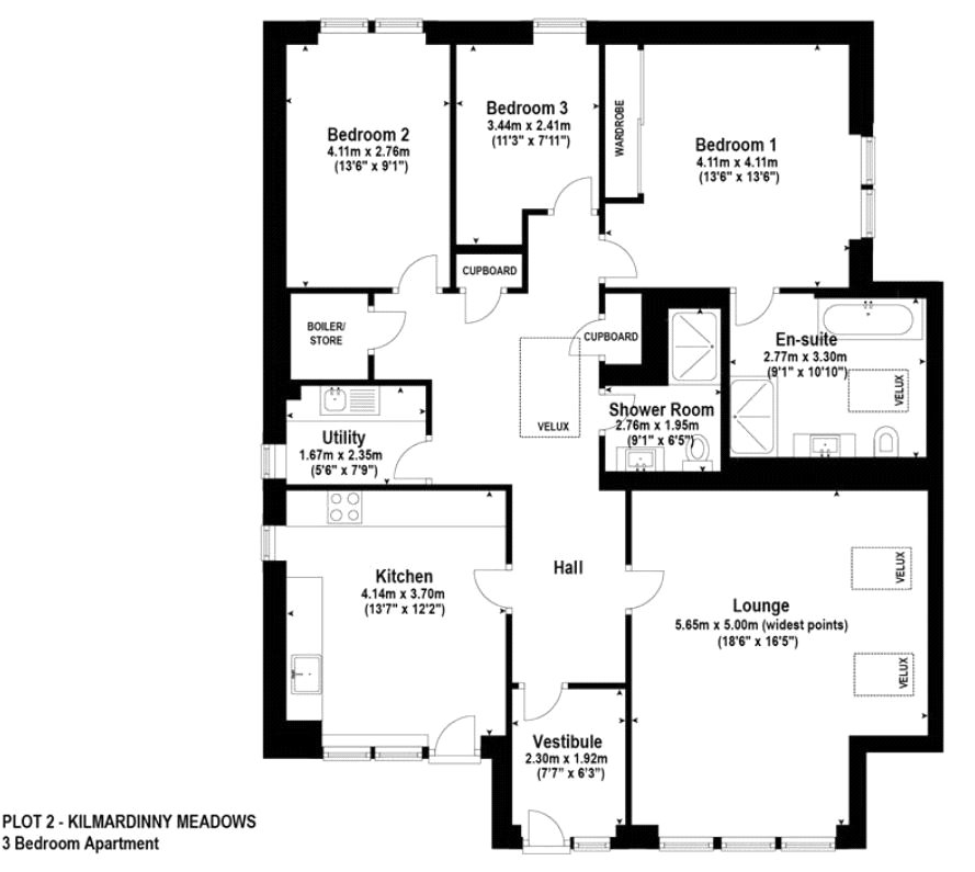
Bed

3 Bedrooms

Bathroom

2 Bathrooms

Reception

1 Reception Room

Tree

Private Garden

Parking

Off Street Parking

Telephone

Property Description

HERALD PROPERTY AWARDS FOR SCOTLAND 2024 FINALIST**
BEST APARTMENT : KILMARDINNY MEADOWS - CROSBIE HOMES

Kilmardinny Meadows is an intimate collection of just four bespoke main door villa style apartments, in a quaint haven of serenity within bustling Bearsden and surrounded by an abundance of green space and views you’ll never tire of.

Beneath the unspoilt, largely gentle and rolling Campsie Hills, these truly exclusive three bedroom homes are the epitome of modern living. Innovative in both concept and design they offer sleek classic styling using the latest technology to ensure energy efficiency and sustainability. Highly energy efficient, these make for the perfect solution if you are considering downsizing. Superbly insulated, and with clever storage options, each apartment is a streamlined single level design with main door access. Transitioning with you through time, we are providing you with a home for life in an intimate, sustainable and elegant new home.

Private main door access is the key feature of our Kilmardinny Meadows apartments, with upper floors easily accessible via elevated ramp architecture to the rear of each property. It is this removal of the need for communal areas, which provides each home with its own unique identity.

Our design collaboration with renowned Kitchens International and Scope Bathrooms provide a premium finish, with each selected designer opting for the highest specification combined effortlessly with current colour statements and styles. All four apartments are spacious and come equipped with contemporary kitchens alongside soft to the touch porcelain tiles for shower areas. Minimalist in their aesthetic, these understated natural materials bring a sense of the outdoors inside, complementing each home’s earthy and neutral colour palette - the perfect way in which to create a warming feel for you and your family, whilst also adding a hint of sophistication. It is features like these combined with the unique design, Crosbie Homes exceptional build quality and pinpoint attention to detail, that elevate these apartments to an altogether different level.

Immerse yourself in nature and adopt a new stylish way of living within this leafy and desirable suburb. Just 6 miles North West of Glasgow City Centre, the location couldn’t be further away from busy city life, with its sense of relaxation and calm. Steeped in history and culture, Bearsden is welcoming of those at any stage in life and has an abundance of amenities nearby. A thriving local community, there is a diverse mix of independent shops, bars and restaurants to explore, regularly enjoyed by locals. Meanwhile those who favour the great outdoors can take advantage of the vast array of nature walks and reserves close by – including Mugdock Country Park and Kilmardinny Loch. It is this slower paced lifestyle and iconic setting which has attracted artists and authors, such as Julia Donaldson, to Bearsden. And the benefits of living in such an environment are clear to see, with some of Scotland’s highest-ranking schools within the local catchment.

Your new home will allow you to settle into an entirely different mindset and better quality of life as you put your mental wellbeing first.

**PLEASE NOTE EXTERNAL IMAGES ARE FOR ILLUSTRATIVE PURPOSES ONLY

TENURE FREEHOLD
COUNCIL TAX : BAND G

More Details

Situation: BalconyPrivate Garden
Council Tax Band: G
Tenure: Freehold

Contact Us

Siobhan Cox

Siobhan Cox

Director
Karen Lochead CeMAP

Karen Lochead CeMAP

Mortgage & Protection Advisor
Mortgage Calculator
Monthly payments
Please set an interest rate.

Your home may be repossessed if you do not keep up repayments on your mortgage. There may be a fee for mortgage advice. The actual amount you pay will depend upon your circumstances.

Tax Calculator
LBTT calculator for properties purchased in Scotland. Stamp Duty calculator for properties purchased in England.
Land & buildings transaction tax (LBTT)
= £0
New build house with stone and timber cladding

Looking To Sell Or Let?

Rettie is one of the most trusted and well-respected names in property. Our unrivalled market knowledge helps people from around the world buy, sell, let and develop property in Scotland and the North East of England - from city apartments and rural cottages to large townhouses and prime country homes, farms and estates. We deal with some of the most prestigious properties on the market, but provide the same exceptional standards of service and value for money to all our clients.