Property Description
Located within Bearsden’s highly sought-after Mosshead district. A charming bungalow-style house, it occupies an outstanding position on the northern fringe of the estate, backing directly onto open farmland with uninterrupted views beyond Milngavie towards the Campsie Fells. Generously proportioned, the property offers versatile and spacious accommodation, making it ideal for both families and couples.
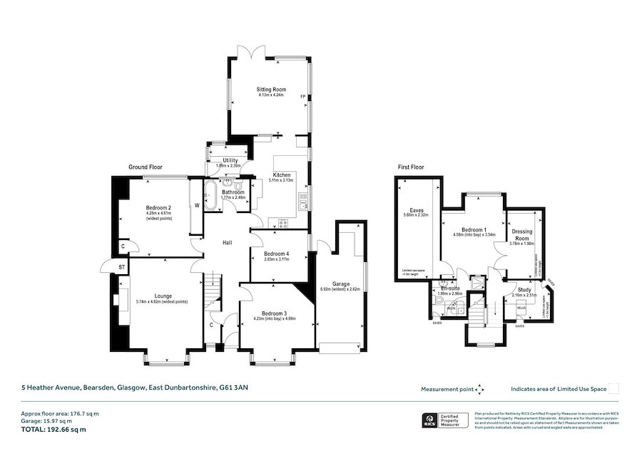
Comprising a glazed entrance porch with outer vestibule giving access to the reception hall, which really is a super initial feature. There is a useful under stairs cloakroom store with window for general storage.
The main lounge is set to the front, has a bay window and the feature of an original inglenook fireplace at the focal point with living flame coal effect gas fire. The third bedroom, which could also be used as a dining room, is also to the front, and again has a bay window.
Thereafter there is a great day-to-day living space, which combines a good-sized kitchen with open doorway down to a large bright sitting room. The sitting room has windows on three sides and French doors onto the property’s rear garden and one of the sundecks.
The kitchen is very smartly equipped with a range of oak cupboard units with contrasting black worktops and breakfast bar, integrated appliances include Neff four burner gas hob, oven with grill, cooker hood, splash back, separate double oven/grill, microwave, a concealed dishwasher by Whirlpool and a concealed larder fridge by Whirlpool. Off the kitchen is a laundry room extension, which has plumbing for washing machine, space for tumble drier, as well as space for an additional fridge freezer.
To complete the ground floor accommodation, there are two bedrooms, including a particularly large guest bedroom with broad window overlooking the rear garden, with a run of fitted mirrored wardrobes. To service these two bedrooms, and to act as guest toilet, there is a high quality contemporary designed bathroom suite with electric shower over the bath, beech furniture, tiled walls and floor and heated chrome towel rail.
Upstairs, a feature staircase has a return flight past a half landing window to an upper landing, off which is the study with velux window, and a door into the master bedroom suite, which has a dormer window to the rear overlooking the back garden and beyond the fields to take in the views of the Campsie Fells, with the bedroom having a large walk-in dressing closet with velux window, which is fitted out with shelves and hanging rails. Finally, there is an en-suite modern bathroom, again contemporary designed, with velux window, fitted furniture and comprising wc, whb set into vanity unit, corner bath and a separate shower cubicle, with the feature of a brick glass central screen.
In terms of specification, the property has modern UPvC double glazed windows throughout. There is a gas central heating system. The property also has an attached single garage.
- Spacious Reception Hall
- Lounge with Bay Window and Original Fireplace
- Contemporary Family Bathroom (Ground Floor)
- Well
- Appointed Kitchen with Breakfast Bar
- Utility Room
- Sitting Room with Garden Access
- Three Ground Floor Bedrooms (including generous Guest Bedroom)
- Study
- Principal Bedroom Suite with En
- Suite Bathroom and Dressing Room
- Attached Single Garage
The property enjoys level gardens to both the front and rear. At the front, a pebble driveway provides side-by-side parking for two cars, while a mature privet hedgerow offers privacy and frames a beautifully maintained level lawn.
The larger rear garden is attractively landscaped, featuring a continuation of the slabbed and pebbled pathway that curves gracefully around the house. Immediately outside the sitting room, a generous sundeck provides the perfect spot for relaxation. Beyond lies a neatly kept lawn, bordered by well-stocked shrub beds that enhance privacy and create a pleasant backdrop. The rear boundary is defined by timber fencing.
Location
Mosshead has long been regarded as one of Bearsden’s most sought-after districts, thanks not only to its appealing mix of property styles but, above all, to the outstanding Mosshead Primary School, located within the estate itself. The area also falls within the catchment for the highly regarded Bearsden Academy.
Close at hand is Bearsden Ski Club, offering two slopes and an excellent clubhouse. There are regular bus services on Stockiemuir Road, while around a mile away, Bearsden Cross provides an excellent range of shops, cafés, and restaurants, along with a railway station offering four trains an hour into Glasgow’s West End and City Centre.
SAT NAV: G61 3AN
COUNCIL TAX : BAND G
EPC : BAND D
TENURE : FREEHOLD
More Details
Situation: Private Garden
Council Tax Band: G
Tenure: Freehold
Your home may be repossessed if you do not keep up repayments on your mortgage. There may be a fee for mortgage advice. The actual amount you pay will depend upon your circumstances.
Similar Properties
Looking To Sell Or Let?
Rettie is one of the most trusted and well-respected names in property. Our unrivalled market knowledge helps people from around the world buy, sell, let and develop property in Scotland and the North East of England - from city apartments and rural cottages to large townhouses and prime country homes, farms and estates. We deal with some of the most prestigious properties on the market, but provide the same exceptional standards of service and value for money to all our clients.
