Property Description
- Three bedroomed semi-detached villa
- Superb location in popular Mosshead district
- Well appointed throughout
- Mosshead Primary and Bearsden Academy catchment
- Great rear garden, off street driveway parking
- Double glazed window units, gas central heating
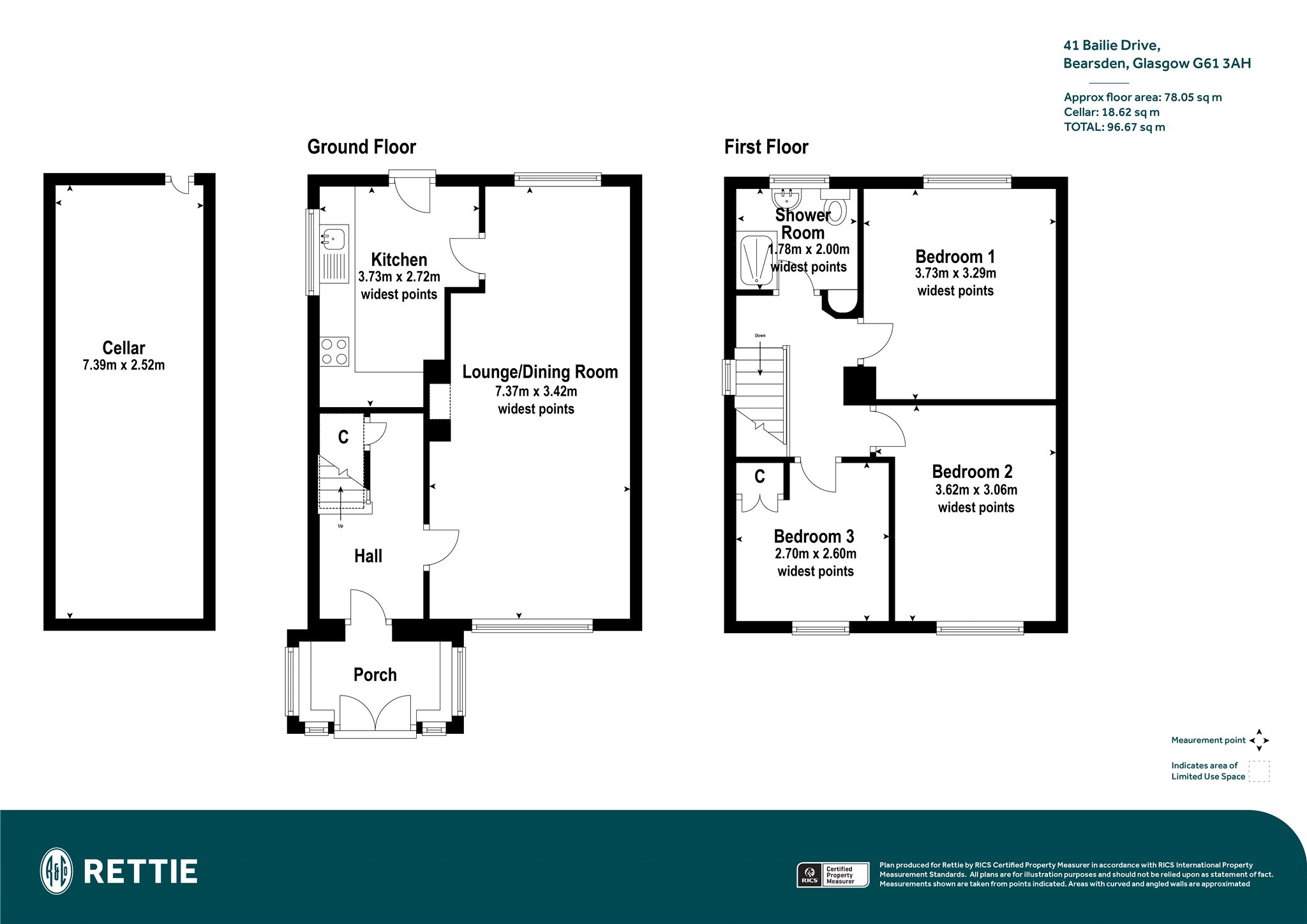
Constructed by W.S Gordon in the early post war period, this three bedroomed semi-detached villa offers the ideal solution for couples and young families looking to establish themselves a coveted district of Bearsden renowned for its excellent schooling at Primary and Secondary level. The property is well appointed throughout, with opportunity for the successful bidding party to implement their own themes and ideas over time. Good garden space, off street parking and the facilities of Mosshead Primary and Bearsden Academy both located nearby.
Summary of Accommodation
- Double doors through to entry porch
- Reception hallway with staircase to first floor
- Open plan lounge/dining room
- Modern fitted kitchen with courtesy door out to rear garden
- Tiled shower room
- Three bedrooms – two doubles and additional single room
Situation
Mosshead is particularly known for its excellent local primary school, Mosshead Primary. Nearby, at Courthill, is Bearsden Academy ranked, currently, No.2 state secondary in Scotland for academic results. At the top of Mosshead is Bearsden Ski Club with its clubhouse and two artificial slopes. On Stockiemuir Avenue is a very well stocked Co-op store. At the foot of Atholl Gardens is a pathway that leads to a lovely little park off Argyll Road with Mosshead also home to the park at Heather Avenue and a kids play-park at the foot of Stockiemuir Avenue, beside which is the beauty spot of Kilmardinny Loch and its surrounding woodland. Bearsden Cross in a direct line is little more than one mile away. Just south of The Cross is Bearsden railway station with its regular links to Glasgow's West End and City Centre.
Sat Nav Ref: G61 1ee
COUNCIL TAX : BAND E
EPC : BAND C
TENURE : FREEHOLD
More Details
Situation: Private Garden
Council Tax Band: E
Tenure: Freehold
Your home may be repossessed if you do not keep up repayments on your mortgage. There may be a fee for mortgage advice. The actual amount you pay will depend upon your circumstances.
Similar Properties
Looking To Sell Or Let?
Rettie is one of the most trusted and well-respected names in property. Our unrivalled market knowledge helps people from around the world buy, sell, let and develop property in Scotland and the North East of England - from city apartments and rural cottages to large townhouses and prime country homes, farms and estates. We deal with some of the most prestigious properties on the market, but provide the same exceptional standards of service and value for money to all our clients.
