113 Mugdock Road, Milngavie, G62 8NW

Milngavie, G62 8NW
Sold
Pin View on map

Offers Over £410,000

House

Terraced House

Bed

3 Bedrooms

Bathroom

1 Bathroom

Reception

1 Reception Room

Tree

Private Garden

Garage

Garage

Telephone

Property Description

  • Victorian three bedroomed terraced house
  • Extended to rear elevation
  • Wonderful setting overlooking the Green Belt of Barloch Moor
  • Highly convenient position close by the amenity rich Milngavie Village
  • Fantastic garden space to rear – west facing for afternoon/evening sun
  • Milngavie Primary/Douglas Academy catchment
  • Garage

Dating from the Victorian era, this delightful blonde sandstone villa forms part of an intimate terrace of just four similarly styled homes and occupies a fabulous position just to the North of the Village Centre. An immediately charming home located in a particularly leafy, salubrious pocket of Milngavie that is renowned for its proximity to fabulous green/recreational spaces. A must see for smaller families, couples and individuals looking to acquire a property with abundant period charm.

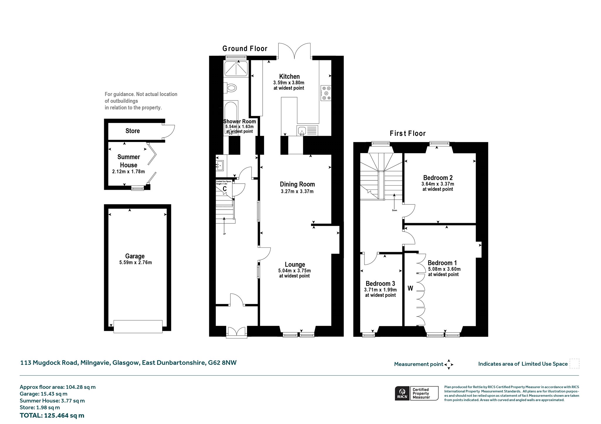
A number of years ago, the property was extended to its rear elevation with the accommodation now formed of five principal apartments (plus kitchen and family bathroom). The internal subjects are well presented, with the incoming purchaser afforded scope to implement their own themes and ideas pertaining to taste and budget

Summary of Accommodation

  • Storm door entry through to vestibule
  • Reception hallway with staircase to first floor (beautifully retained original bannister/balustrade), under stair storage
  • Lounge – feature fireplace, ornate ceiling rose
  • Dining Area
  • Kitchen – range of integrated appliances including recently fitted microwave and oven by Hotpoint. 5 burner gas stove and extraction unit by Smeg, plenty wall/base mounted storage, breakfast bar area, door access to rear garden
  • Large family bathroom – vanity area with under sink cabinetry, large bath, walk in shower (deluge fitting – off mains system)
  • Generous upper landing and window seat to half landing
  • Three bedrooms – two large doubles and additional single room, principal bedroom with beautiful ornate cornicework and ceiling rose

To both front and rear the property features lovely garden space, with the rear garden particularly notable for its generous size, level topography, summer house and westerly orientation for afternoon/evening sun. The property also comes complete with a garage which is part of a well-appointed modern structure. Parking is on street.

Situation

The property is situated just a five minute walk from the Village Centre. Milngavie Centre is pedestrianised and here there is a good array of quality independent retailers as well as the High Street names of Boots, Marks & Spencer and at the easterly end, a Tesco. The Village also has a Bank of Scotland branch, with a brilliantly stocked Waitrose located at the West Retail Park. By Tesco is Milngavie Railway Station which provides regular links into Glasgow’s West End and City Centre including a service through to Edinburgh Waverley. At the centre of Milngavie is the start/finish of the West Highland Way which leads through Allander Park and then subsequently to Mugdock Country Park (fabulous across all seasons) and beyond. Nearby the house is the local beauty spot of Tannoch Loch and above are the Mugdock and Craigmaddie Reservoirs which is a great area to exercise.

Sat Nav Ref: G62 8nw

COUNCIL TAX : BAND F
EPC : BAND D
TENURE : FREEHOLD

More Details

Situation: Private Garden
Council Tax Band: F
Tenure: Freehold

Contact Us

Siobhan Cox

Siobhan Cox

Director
Karen Lochead CeMAP

Karen Lochead CeMAP

Mortgage & Protection Advisor
Mortgage Calculator
Monthly payments
Please set an interest rate.

Your home may be repossessed if you do not keep up repayments on your mortgage. There may be a fee for mortgage advice. The actual amount you pay will depend upon your circumstances.

Tax Calculator
LBTT calculator for properties purchased in Scotland. Stamp Duty calculator for properties purchased in England.
Land & buildings transaction tax (LBTT)
= £0
New build house with stone and timber cladding

Looking To Sell Or Let?

Rettie is one of the most trusted and well-respected names in property. Our unrivalled market knowledge helps people from around the world buy, sell, let and develop property in Scotland and the North East of England - from city apartments and rural cottages to large townhouses and prime country homes, farms and estates. We deal with some of the most prestigious properties on the market, but provide the same exceptional standards of service and value for money to all our clients.