Property Description
Detached House
Bay windowed lounge with inglenook
Dining room
Shaker kitchen
3 bedrooms
Ensuite bathroom to primary bedroom
Shower room
uPVC double glazing, gas central heating
Garage
Very private rear garden
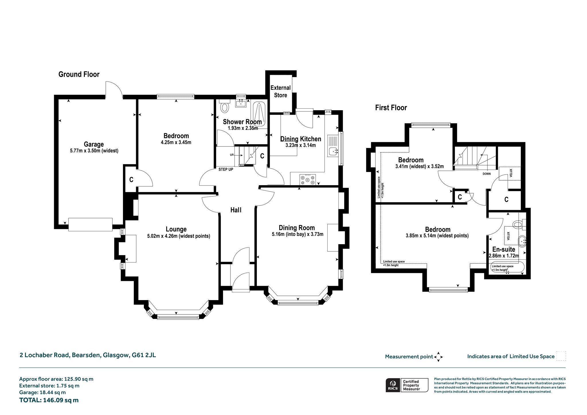
A five apartment (3 bedrooms) Detached “Dormer” Bungalow in the Killermont district built in the 1930s by John Lawrence.
The property is on an essentially level garden orientated west to the front and east to the rear where the back garden is particularly well screened and private. The design of the house includes an attractive front veranda providing a nice architectural touch. Brick built, the exterior walls have just been freshly painted, all set under a pitched and tiled roof with dormer projections. Windows, bar the three stained-leaded lancet windows, that have been kept in the inglenook and dining room, and the single lancet window in the kitchen and dining room, are uPVC double glazed. Central heating is mains gas with an efficient Ideal Logic c30 combination boiler installed only in May 2022. Recently installed Living flame gas fires are featured in both the lounge and the dining room.
The kitchen had a very recent upgrade with some new Shaker doors and some rooms redecorated with new flooring. Sanitary ware in both the ensuite bathroom and the house shower room is modern white.
Summary of Accommodation
Veranda. Entrance vestibule. Hall. Lounge. Dining room. Kitchen. Three bedrooms (one downstairs, two upstairs), the primary bedroom having fitted wardrobes. Ensuite bathroom to primary bedroom with electric under floor heating in addition to a chrome heated towel radiator. Spa bath featured here. Shower room - located on the ground floor it features an oversized shower enclosure with an electric Triton T80z shower. The radiator here is a traditionally styled chrome and column one.
Outside, the gardens offer a mix of grass, hard landscaping, and screening. The rear garden has a sun patio and, in the corner, an old timber sundeck. At two-car long driveway leads to the property’s single garage attached to the side of the house and with a pass door to the rear garden. There is space to park a third car to the right of the driveway.
Location
Killermont is on the very southeast edge of Bearsden and falls within the catchment for Killermont Primary and Boclair Academy. At the foot of Lochaber Road, the house is near to Rannoch Drive and provides ready access, via Maryhill Road, to the West End and the City Centre. Literally around the corner is the entrance and grounds to Glasgow Golf Club, one of the oldest golf clubs in the world. In Killermont is King George V Park, a great spot for the kids. Not far away are the Templehill Woods, a great spot for the dog.
Bearsden Cross, the heart of Bearsden, is approximately 1.2 mile to the northwest. Here you will find an excellent selection of services including cafes, restaurants, and shops including a quality fishmongers and a butcher. Nearer still, at Kensington, is a Sainsbury's convenience store and a large Asda.
Postcode: G61 2JL
COUNCIL TAX : BAND F
EPC : BAND E
TENURE : FREEHOLD
More Details
Situation: Private Garden
Council Tax Band: F
Tenure: Freehold
Your home may be repossessed if you do not keep up repayments on your mortgage. There may be a fee for mortgage advice. The actual amount you pay will depend upon your circumstances.
Similar Properties
Looking To Sell Or Let?
Rettie is one of the most trusted and well-respected names in property. Our unrivalled market knowledge helps people from around the world buy, sell, let and develop property in Scotland and the North East of England - from city apartments and rural cottages to large townhouses and prime country homes, farms and estates. We deal with some of the most prestigious properties on the market, but provide the same exceptional standards of service and value for money to all our clients.

