Property Description
- Two bedroomed pre-war semi-detached villa (1930s)
- Superb position with brilliant views over surrounding district
- Well-kept but dated – room to redecorate according to taste/budget
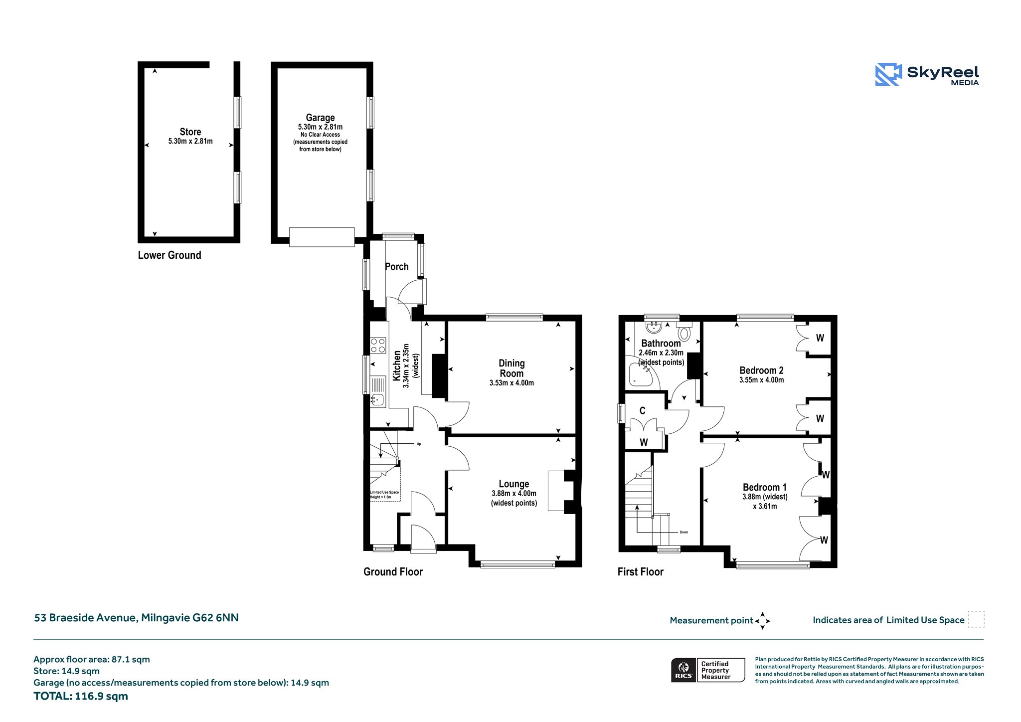
- Off street driveway parking and garage
- PVCu double glazing and gas central heating
- Great rear garden
- Craigdhu Primary and Douglas Academy catchment
This characterful and well-proportioned two bedroomed semi-detached villa has an extremely convenient setting just south of the village centre. It is a full four apartment house (two public rooms and two bedrooms) and provides exciting opportunity for the successful bidding party to implement their themes and ideas to a property brimming with inherent value. Key features here include the sizeable, well-tended garden to the rear of the property along with the fantastic, leafy views across the surrounding district. Early inspection is advised.
Summary of Accommodation
- Vestibule through to reception hallway with stair
- Bay windowed lounge
- Dining room
- Kitchen with porch off
- Shower room
- Two double bedrooms
Externally, the property features a good mix of outdoor space with section of lawns, stone paviours and bedding combining to great effect. A lovely space for all the family to enjoy.
Situation
The property is particularly well placed for the village centre, which is just a few minutes walk to the north and here you will find an excellent cross-section of quality independent retailers, along with the High Street names of Boots, Marks & Spencer and at the far end, a Tesco. Also, within Milngavie, at the Burnbrae Retail Park, is a large Waitrose and an Aldi. Milngavie has a railway station with regular services into the city centre and West End, including a service to Edinburgh Waverley. For those with children, school catchment is Craigdhu Primary and Douglas Academy, with Milngavie also home to the Milngavie Early Years Centre.
Sat Nav Ref: G62 6nn
EPC : BAND D
COUNCIL TAX : BAND E
TENURE : FREEHOLD
More Details
Situation: Private Garden
Council Tax Band: E
Tenure: Freehold
Your home may be repossessed if you do not keep up repayments on your mortgage. There may be a fee for mortgage advice. The actual amount you pay will depend upon your circumstances.
Similar Properties
Looking To Sell Or Let?
Rettie is one of the most trusted and well-respected names in property. Our unrivalled market knowledge helps people from around the world buy, sell, let and develop property in Scotland and the North East of England - from city apartments and rural cottages to large townhouses and prime country homes, farms and estates. We deal with some of the most prestigious properties on the market, but provide the same exceptional standards of service and value for money to all our clients.

