Property Description
- Large, eight apartment detached villa dating from c.1935
- Located in Bearsden’s prestigious Thorn district
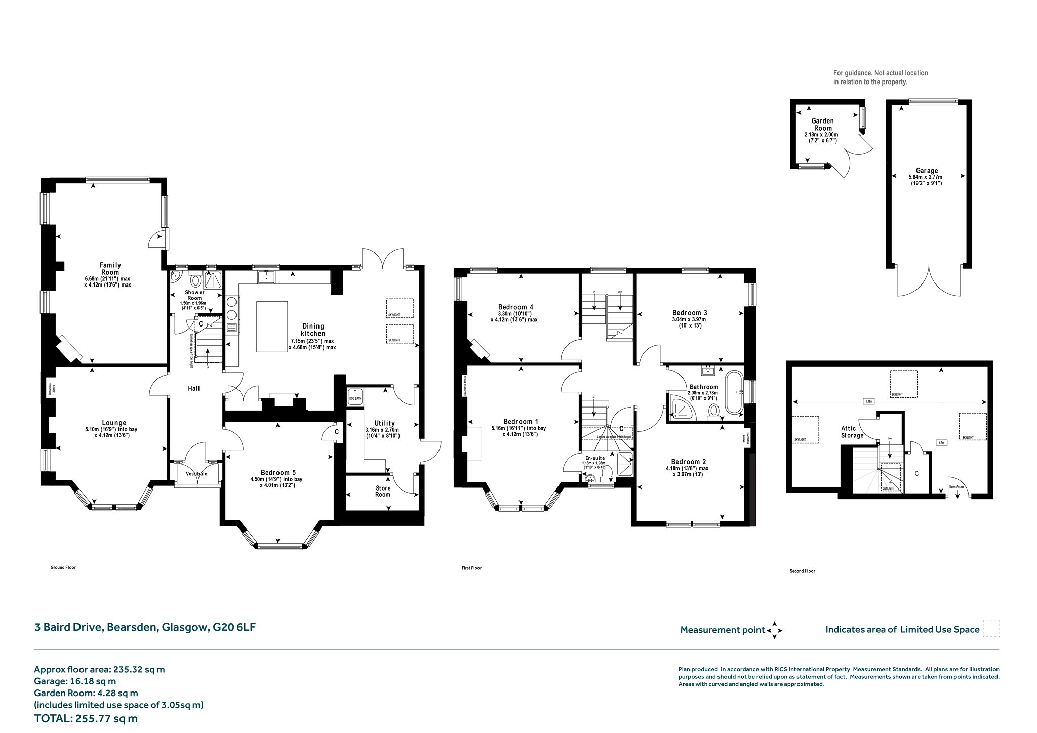
- Eight principal apartments (plus attic room), floor space of approx. 2,528 sq.ft
- Successfully extended to side and rear
- Very well presented/finished across accommodation
- Set upon large, well established garden plot – west facing to rear (afternoon/evening sun)
- Close to Bearsden Cross
- Off street driveway parking/detached garage
An entirely unique property that was originally constructed c.1935, No.3 Baird Drive is commanding bay fronted detached villa that has, over time, been creatively extended to its side and rear elevations to create a large, well balanced family home with corners and retreats for all. Immediately charming and impressive with its sharp white render/contrast red brick dressings, the abundance of character and period appeal flows throughout the accommodation which strikes a seamless balance of traditional detailings/proportions and modern convenience. Early inspection advised. 
Located in Bearsden’s Baird Drive – a quiet yet particularly well-placed address for access to local schooling and the amenities of Bearsden Cross- the property is beautifully hidden behind an established treeline to the front, with a beautifully stocked/arranged private garden to its rear. Simply lovely. The internal subjects are well presented and very much ‘ready to go’ for the prospective bidding party.
Summary of Accommodation
- Large reception hallway – feature stair, stained glass window to half landing
- Bay windowed lounge – feature fireplace
- Large family room – courtesy door to rear garden
- Dining Kitchen – a fabulous space with pitched roof extension, ‘shaker style’ units in country style, central island with breakfast bar area, selection of appliances including Rangemaster cooker
- Large utility room – room for laundry appliances, dog shower, store room off
- Four
- piece family bathroom, shower room and ensuite off principal bedroom
- Four double bedrooms
- Attic room (perfect for ancillary use – home office etc.)
Externally, the gardens are plentiful and mature – entirely level to the rear and with sections of lawn, bedding and stone patio marrying to great effect. For the area, the rear garden is notable for its incredible privacy and westerly orientation.
Situation
For those with children, school catchment is Bearsden Academy) and for Bearsden Primary which is but a half mile walk away. Also within Bearsden is the Junior School for the High School of Glasgow and St Nicholas’s Primary. At The Cross is the Bearsden Early Years Learning Centre. 
Bearsden Cross has an excellent selection of quality independent retailers along with a Marks & Spencer Foodhall. There is a Bank, a well-stocked Post Office and two Pharmacies. Just south of The Cross is Bearsden Railway Station and on Drymen Road regular bus services into the West End and City Centre.
Sat Nav Ref: G61 4bl
EPC : BAND C
COUNCIL TAX : BAND G
TENURE : FREEHOLD
More Details
Situation: Private Garden
Council Tax Band: G
Tenure: Freehold
Your home may be repossessed if you do not keep up repayments on your mortgage. There may be a fee for mortgage advice. The actual amount you pay will depend upon your circumstances.
Similar Properties
Looking To Sell Or Let?
Rettie is one of the most trusted and well-respected names in property. Our unrivalled market knowledge helps people from around the world buy, sell, let and develop property in Scotland and the North East of England - from city apartments and rural cottages to large townhouses and prime country homes, farms and estates. We deal with some of the most prestigious properties on the market, but provide the same exceptional standards of service and value for money to all our clients.

