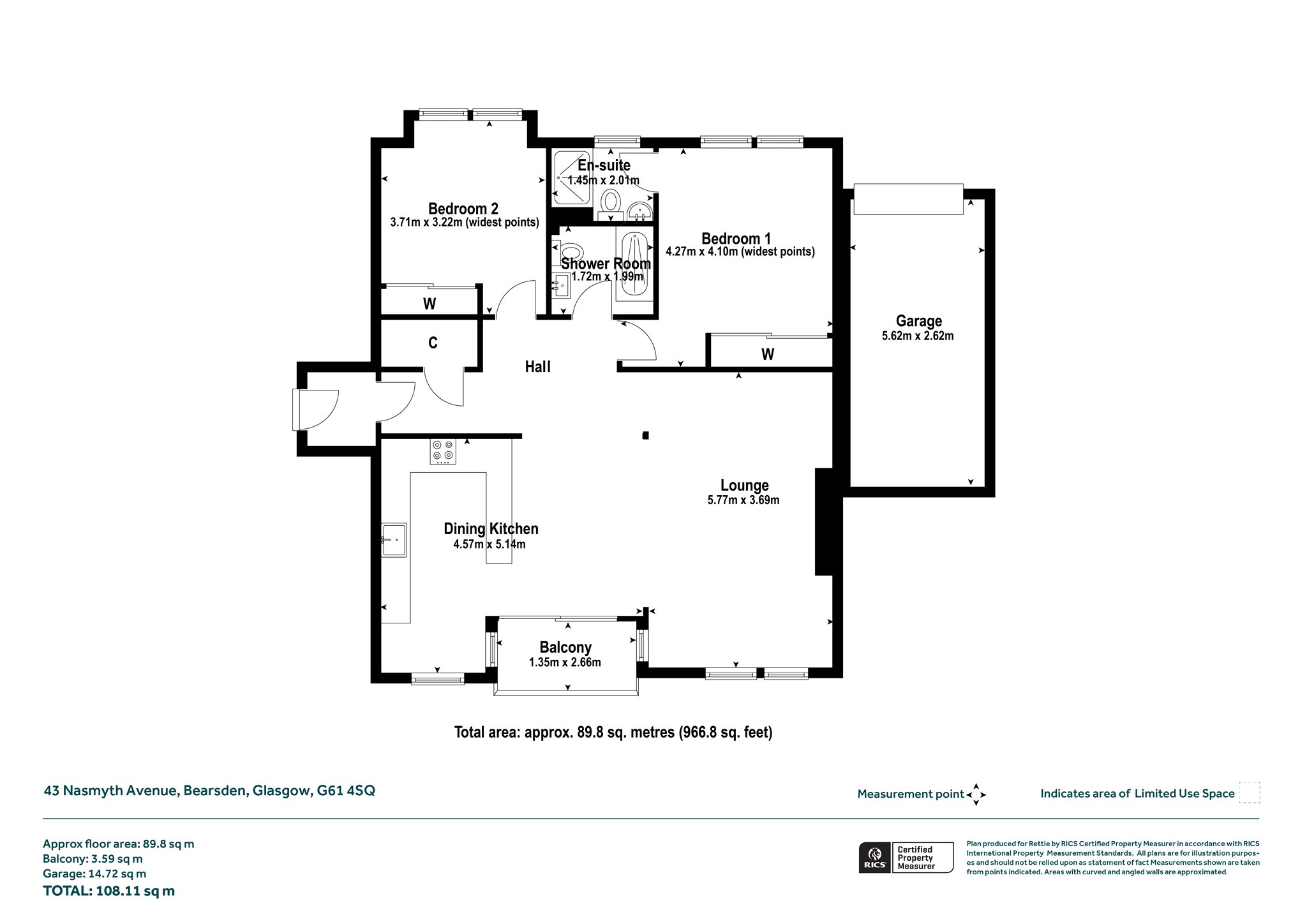
Property Description
- Main door, ground floor apartment
- Stunningly presented and significantly developed by our clients
- In intimate development with pool/gym facility
- Overlooking lovely garden grounds with duck pond
- South facing balcony
- Garage and driveway
- A simply fabulous property
The apartments in the ‘Silverknowes’ development were constructed by Ambion Homes in the 1990’s. Situated in North Baljaffray, by Windyhill Golf Course, there are lovely residents’ gardens overlooking which this flat has, arguably, the best position. This ground floor, main door, two-bedroom flat is only one of four that has its own door and furthermore one, of only two, that has its garage adjacent and driveway – all hugely beneficial assets. A fantastic property for both professional and downsizing couples.
As review of our imagery and indeed first-hand inspection will showcase, No.43 Nasmyth Avenue could easily be argued as the best example of its kind, with our clients having undertaken a significant programme of internal upgrading/modernisation along with the creation of an outstanding open plan living/dining/kitchen space – a fabulous area for relaxing and entertaining in equal measure. Contemporary decorative lines and high quality fixtures, fittings and appliances to be found across the accommodation.
Summary of Accommodation
Entrance porch/vestibule, reception hallway with storage off, lounge with feature fireplace/integrated media wall, dining area, breakfast bar area, kitchen with handless units/contrast worktops and range of quality integrated appliances, shower room, two double bedrooms (principal bedroom with ensuite shower room)
Situation
Silverknowes is kept in great condition. The factor is Speirs Gumley of Glasgow and on-site there is a resident’s “caretaker” couple who do a wonderful job of keeping the place in pristine order. The rather special feature of the development is the resident’s private leisure facility – swimming pool, jacuzzi, equipped gym, sauna, changing rooms. A great facility to have, literally, on your doorstep.
The property is in the North Baljaffray district of Bearsden close by Windyhill Golf Course and handy for the local shopping centre at Baljaffray Precinct (Farmfoods, Boots and a soon to be opening Sainsbury’s store). School catchment is for Baljaffray Primary, with secondary provision at Bearsden Academy and also within Bearsden are the premises of St. Nicholas’ Primary on Duntocher Road. Douglas Academy is close by. Major shopping facilities can be found either at Bearsden Cross or, roughly equidistant, at Milngavie Village Centre, both providing railway stations with four trains an hour into Glasgow’s West End and City Centre, including a service terminating at Edinburgh, Waverley. The buzzing West End of Glasgow is 5 miles away while open countryside is on the doorstep. Leisure facilities abound in the area which offers several golf courses, sports complexes and an artificial ski slope within a short distance of the property.
Sat Nav Ref: G61 4sq
EPC : BAND E
COUNCIL TAX : BAND F
TENURE : FREEHOLD
More Details
Situation: Communal Garden
Council Tax Band: F
Tenure: Freehold
Your home may be repossessed if you do not keep up repayments on your mortgage. There may be a fee for mortgage advice. The actual amount you pay will depend upon your circumstances.
Similar Properties
Looking To Sell Or Let?
Rettie is one of the most trusted and well-respected names in property. Our unrivalled market knowledge helps people from around the world buy, sell, let and develop property in Scotland and the North East of England - from city apartments and rural cottages to large townhouses and prime country homes, farms and estates. We deal with some of the most prestigious properties on the market, but provide the same exceptional standards of service and value for money to all our clients.
