Property Description
****UNEXPECTEDLY BACK ON MARKET****
• Beautifully appointed semi-detached bungalow
• Constructed pre-war but fully modernised throughout
• Successfully extended and altered over time
• Very versatile accommodation across five principal apartments
• Fully enclosed, raised rear garden – views across Douglas Park Golf Course
• Perfect for home working
• Gas central heating and double-glazed window units
• Bearsden Primary/Bearsden Primary catchment
• Off street driveway parking
An instantly charming and unassumingly spacious property, this delightful semi-bungalow offers a near seamless marriage of modern aesthetic, practicality and convenience – with a super location in close proximity to the varied amenities, transport links and excellent primary and secondary schooling of Bearsden. Given the versatility and quality of the accommodation on offer, interest from a wide and varied audience should be anticipated.
Internally, contemporary decorations combine with quality fixtures and fittings to create a quite luxurious presentation. Highlights of the specification include a recently renewed kitchen, quality wooden flooring, and smartly tiled bathrooms on the ground and first floor.
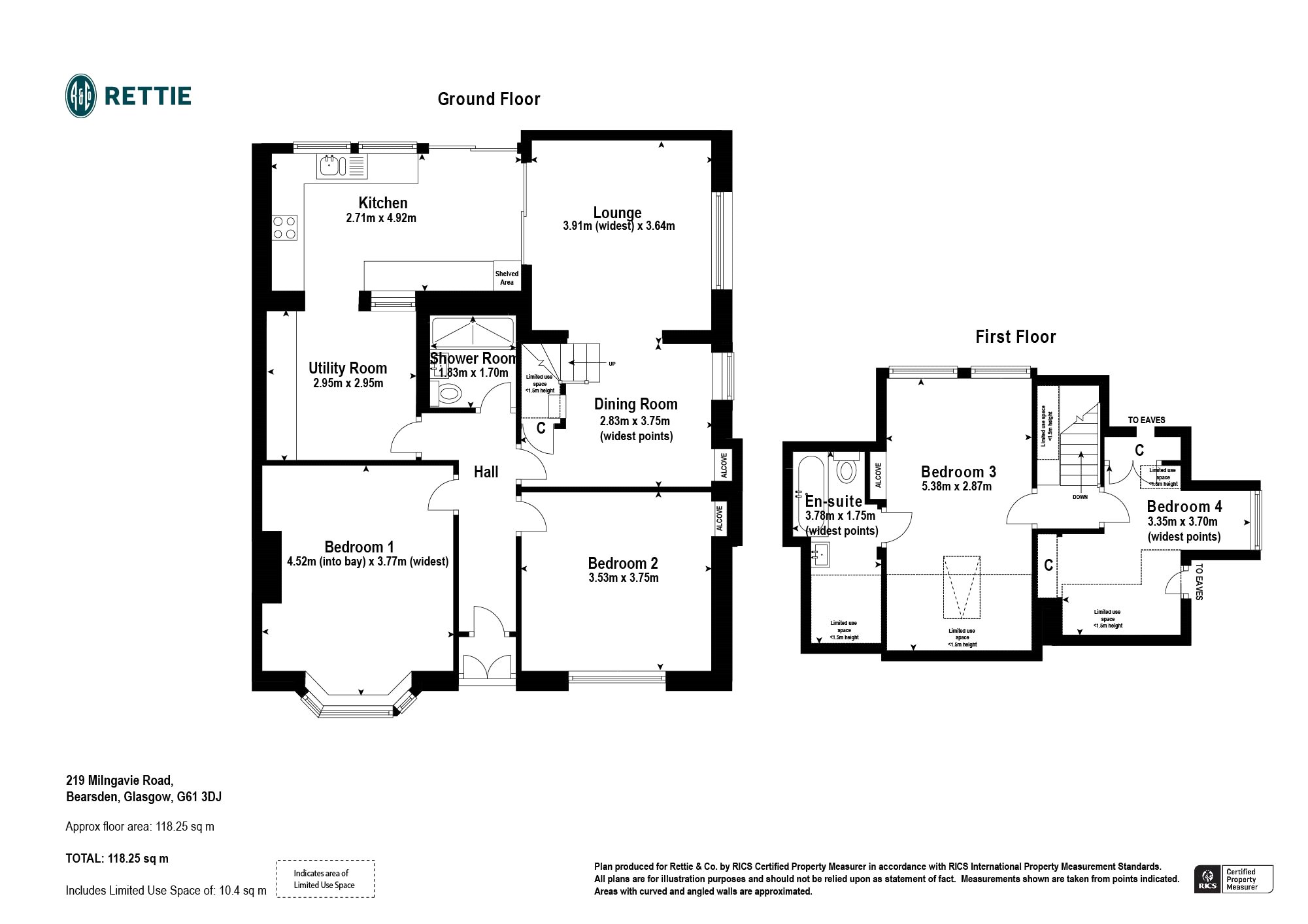
Summary of Accommodation
- Entrance vestibule through to reception hallway
- Dining Room through to lounge
- Contemporary fitted kitchen
- Dedicated utility off
- Tiled shower room (with walk in enclosure)
- Two ground floor bedrooms (including bay windowed Master)
- Third first floor double bedroom (with tiled en
- suite bathroom)
- Additional single room/home office
The fully enclosed and notably private rear garden offers an appealing combination of lawn, decorative stonework, and timber decking, with the topography and positioning of the garden allowing for sun to be enjoyed throughout the day. This area is very smartly bordered by quality timber fencing and manicured privet hedging. A driveway provides off-street parking for two cars .
The property has planning permission for a Single storey side extension, replacement pitched roof to an existing rear extension and new side dormer TP/ED/23/0593
https://planning.eastdunbarton.gov.uk/online-applications/simpleSearchResults.do?action=firstPage
Situation
The property is very well placed for access to Bearsden Cross. Here you will find an excellent selection of shops and services, including a Marks & Spencer’s (food hall) along with selection of quality independent retailers. Hillfoot train station, which provides four trains an hour into Glasgow’s West End and City Centre, with a direct service to Edinburgh Waverley, is just around the corner, off Milngavie Road. Bus services operate on Drymen Road. The property falls within catchment for the excellent facilities of Bearsden Primary and Bearsden Academy, with further schooling to be found at St. Nicholas Primary on Duntocher Road.
Sat Nav Ref: G61 3dj
EPC : BAND D
COUNCIL TAX : BAND E
TENURE : FREEHOLD
More Details
Situation: Private Garden
Council Tax Band: E
Tenure: Freehold
Your home may be repossessed if you do not keep up repayments on your mortgage. There may be a fee for mortgage advice. The actual amount you pay will depend upon your circumstances.
Similar Properties
Looking To Sell Or Let?
Rettie is one of the most trusted and well-respected names in property. Our unrivalled market knowledge helps people from around the world buy, sell, let and develop property in Scotland and the North East of England - from city apartments and rural cottages to large townhouses and prime country homes, farms and estates. We deal with some of the most prestigious properties on the market, but provide the same exceptional standards of service and value for money to all our clients.
