Property Description
Ground floor modern flat
3 bedrooms
2 shower rooms (one ensuite)
New England style fitted kitchen
Lovely lounge/dining room
uPVC double glazing (2018)
Modern electric heating (2018)
Garage (electric door)
Residents grounds down to St Germains Loch
Built by Ambion Homes in the 1980s St Germains fast became, and remains, one of the most admired developments for luxury apartments in Bearsden. Built upon the former policy grounds of a grand Victorian mansion it is a high quality development of two and three bedroom apartments rejoicing in the extensive residents grounds that lead to the very waters edge of St Germains Loch whilst also benefiting from the immediate proximity to Bearsden railway station and the only 1/3 mile walk to Bearsden Cross.
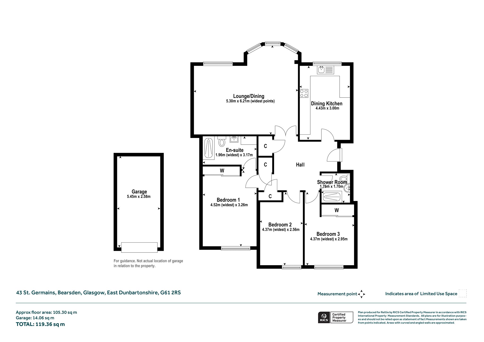
No. 43 is one of the three-bedroom flats and is on the ground floor - perfect for those not wishing to climb stairs(there is no lift) and is tucked away in the northwest corner of the development with windows looking westwards (lounge/dining room, kitchen) and eastwards (the bedrooms). It is a very spacious apartment of some 1100 sq ft, immediately noticeable by the large reception hall as one enters.
Our client has owned the property since 2018 and immediately then modernised it by installing the uPVC double glazed windows, renewing the two showrooms (one had been a bathroom) and the kitchen, totally redecorating including floor coverings, and changing the central heating system from gas to a more future-proofed electric system with panel radiators (by Sunflow). In a residents garage block it has its own single garage (numbered 43) with a remote-controlled garage door by Garador.
The outlook from the lounge/dining room and the kitchen, westwards, is a very pleasant one over an expanse of lawned residents gardens to trees. The shared grounds, which extend to approx 6 acres, lie mainly to grass but given its origins there are many fine native trees through which sighting of varied wildlife, including deer, is recurring. Parking provision, not allocated, is available for residents.
Summary of Accommodation
Security controlled door entry system to residents entrance vestibule and carpeted entrance hall. The apartment’s private reception hall with three storage cupboards - a surprisingly generous space. A lovely lounge/dining room with two sets of windows, including a bay window, to the west overlooking the garden grounds. The kitchen is white and in a New England style with oak laminate worktops into which is set a Belfast style sink. Above the worksurfaces is is white “metro” wall tiles. Appliances include - halogen hob, cooker hood, oven, microwave, fridge-freezer, slimline dishwasher. Spaces for washing machine and tumble dryer . There is space for a breakfast table and chairs. 3 bedrooms (two doubles, one good size single - two with fitted wardrobe provision with modern sliding and mirror door). A fine sized ensuite shower room to the primary bedroom - featuring an Edwardian style white suite and a large modern shower enclosure, tiled in white “metro” tiles, with a powerful thermostatic shower. Chrome towel radiator here. There is a second house shower room again with white suite, designed essentially as a “wet room” with shower base featuring a floor drain. Wet wall panelling on all walls. Heated towel rail (white).
The double glazing is to a high standard and finished white to the inside and with a brown woodgrain finish to the exterior to match all others in the development. The modern electric heating is very controllable and hot water is via a 120 litre unvented direct hot water cylinder, with digital controller.
The development is managed by the property management company James Gibb of Glasgow.
Location
St Germans is just west off Drymen Road with St Germans Loch lying to the southwest. Very closeby is Bearsden railway station with its regular services to the West End and City Centre with Bearsden Cross, the heart of the town, just 1/3 mile up Dryman Road - a good selection of quality independent retailers here including a butchers and fishmongers. There is a Marks and Spencer food hall. At Kessington, about ½ mile east, is a large Asda and a Sainsbury's convenience store. Bus stops are literally just outside the entrance to St Germains.
Sat NAV ref: G61 2RS
EPC : BAND E
COUNCIL TAX : BAND G
TENURE : FREEHOLD
More Details
Situation: Communal Garden
Council Tax Band: G
Tenure: Freehold
Your home may be repossessed if you do not keep up repayments on your mortgage. There may be a fee for mortgage advice. The actual amount you pay will depend upon your circumstances.
Similar Properties
Looking To Sell Or Let?
Rettie is one of the most trusted and well-respected names in property. Our unrivalled market knowledge helps people from around the world buy, sell, let and develop property in Scotland and the North East of England - from city apartments and rural cottages to large townhouses and prime country homes, farms and estates. We deal with some of the most prestigious properties on the market, but provide the same exceptional standards of service and value for money to all our clients.
