Property Description
Built some 65 years ago by the admired local builder John Russell this, Argyll model, is one of his most identifiable and sought after - it’s pretty cottage-like architectural lines convey the feeling of a far earlier period and is one of immediate kerbside appeal.
Our clients have transformed the house into an exquisite home, in truly exceptional condition (see photographs and home report), and with a garden worthy of mention in any gardening journal or open gardens scheme. It is amazing.
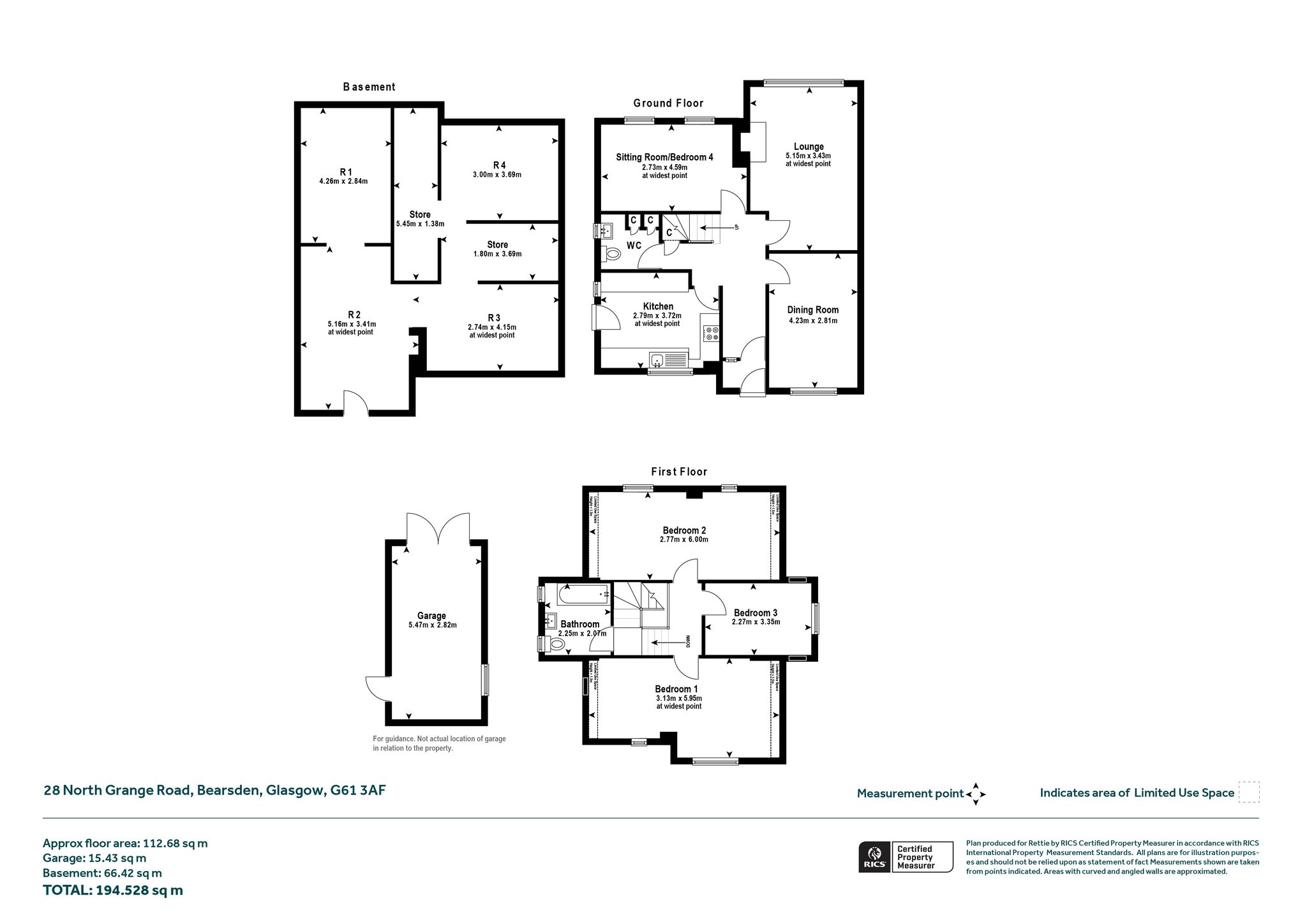
The topography of the plots on the “evens” side of this eastern section of North Grange Road allow for generous basement space to the houses and in No.28 this is no exception. It has an extremely usable space, with generous ceiling height, that incorporates essentially four rooms and two storage areas. Many of the neighbouring properties have developed their basement into full habitable accommodation and this house provides clear opportunity to do the same, subject to obtaining the necessary planning approvals and warrants. As viewers will see, this generous basement space (full size of the house) has full underfloor insulation fitted to the underside of the ground floor.
The house was reroofed in 2009 it has been recently painted. Property was replastered throughout in 2008/2009 and rewired in 2008. Windows are all double glazed with quality units the majority of which are by Anglian, completed by a couple by Everest, and Weatherseal. Central heating is mains gas where an Ideal Logic Combi 35 boiler was installed in 2018. All central heating pipework renewed in 2008 as were all radiators throughout, many behind custom made radiator covers and with those on show (lounge, dining room, TV room) being of a traditional column variety. The kitchen has been very well designed and styled. Sanitary ware in both the bathroom and the ground floor WC is very smart and contemporary.
From our imagery one can see that the subjects are beautifully presented with huge thought given to tonal matches and floor coverings. Even the doors have been lavished with attention - the original doors all fully refurbished, silk varnished and fitted with new, modern, brushed nickel handles.
It is simply a gorgeous home and located in one of Bearsden’s best areas.
Ground Floor
Entrance vestibule. Reception hall. WC that includes modern, fitted, brooms cupboard. Lounge - a bright room with wide south facing (rear) window and with a standing fireplace, on marble hearth, featuring an electric fire. The dining room is cosy and is set to the front (north) and could be a fourth bedroom if needed. The third public room, the TV room, is a lovely space with two south facing windows. As with the lounge a great outlook over the amazing rear garden. Kitchen - this has a double aspect (windows north and east) and with a double-glazed side door. The cream-coloured units, with brush nickel handles, are offset by solid oak worktops including a small breakfast bar section. Above this is a cleverly designed metal styled display shelf - very much a feature of the room. Appliances include - cooker with gas hobs, washing machine, fridge, freezer, and a built-in dishwasher.
First Floor
From the hall a sweeping staircase ascends to the first floor but firstly, off a 3/4 landing, the bathroom. This has floor and wall tiling, by Porcelanosa, a contemporary 3-piece white suite with shower set over the bath, a designer radiator by Acova, a tall toilet cabinet, and a mirrored vanity cabinet. Two windows to the side (east). There are three bedrooms- two doubles and one single. The single bedroom utilised as a home office. Bedroom 2, facing rearwards, provides a great view. The attic, accessed via a loft ladder, provides some storage.
Basement Level
Access from the back garden via a quality external door there is lots of space here and great development potential. It has power, light and radiators installed, provides abundant and easy to access storage, and the boiler is here. The head height is impressive - so easy to see how this space could be made into accommodation, subject to the necessary approvals.
Garden
Hard to begin with this garden and certainly hard to do it justice in words. With the quality of design, the quality and variety of planting, and the four to five different zones and patios upon which one can sit to enjoy the sun at various points of the day or simply to quietly retreat it is just a beautiful space.
The front garden provides a drive for two cars and has well established and beautifully planted beds. There are two pathways, the westerly one winding and leafy, to each side of the house.
The quality of the planted stock and the husbandry of this glorious garden is exceptional.
To the rear of the garden and accessed from Gartconnell Road is a private (owned by the residents of North Grange Road, even numbers) lane to allow access to the property's garage – a detached single with double door, side access door, window, and rechargeable internal lighting. The vendors use it for storage and to provide a little sheltered sitting area between it and the rear boundary fence.
EPC : BAND D
COUNCIL TAX : BAND G
TENURE : FREEHOLD
More Details
Situation: Private Garden
Council Tax Band: G
Tenure: Freehold
Your home may be repossessed if you do not keep up repayments on your mortgage. There may be a fee for mortgage advice. The actual amount you pay will depend upon your circumstances.
Similar Properties
Looking To Sell Or Let?
Rettie is one of the most trusted and well-respected names in property. Our unrivalled market knowledge helps people from around the world buy, sell, let and develop property in Scotland and the North East of England - from city apartments and rural cottages to large townhouses and prime country homes, farms and estates. We deal with some of the most prestigious properties on the market, but provide the same exceptional standards of service and value for money to all our clients.
