Property Description
A significant residence, with swimming pool, and arguably Bearsden's largest home.
Description
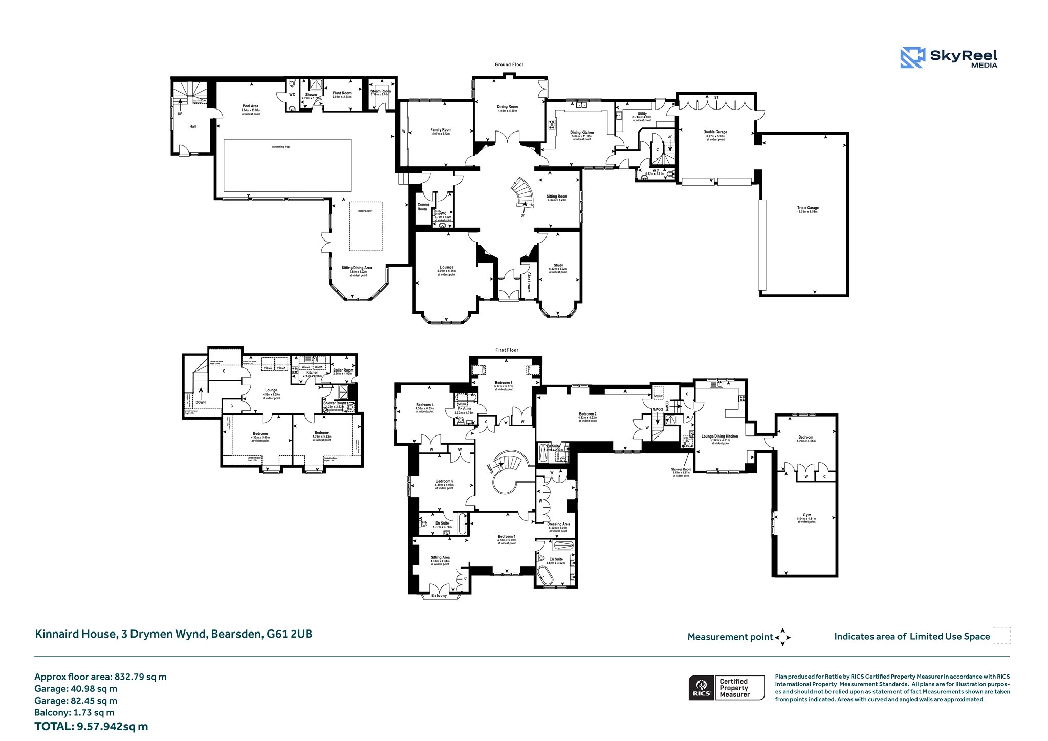
Built in 2002 and designed by Ratcliffe Groves Architects, Kinnaird House is a sizeable home, with east and west wings, with nearly 9,000 sq ft (834 sq m) accommodation and with double and triple garages of 1,323 sq ft (123 sq m) in a little known, private, conservation setting of some 0.82 acre.
The main, central, house has five bedrooms and five public rooms with the east wing providing a guest/staff flat and gym with the west wing home to the large swimming pool facility, with Orangerie style sitting/dining area, and a further self-contained two-bedroom flat for family/guests/staff.
Designed in a traditional style with natural sandstone, slate roofs, wet-dash render, and timber double glazed windows the house, whilst less than 25 years old, will be in the exclusive group of the area's finest homes.
Summary Of Accommodation
Main House, Ground Floor
Vestibule, grand hall and staircase with sitting room, lounge, family room, dining room, study, dining kitchen, utility room, two WCs.
Main House, First Floor
Hall with fine roof cupola, primary suite with bedroom, sitting room with balcony, dressing room, and large bathroom, four further bedrooms all with ensuite facilities.
East Wing, First Floor
Lounge with open plan kitchen, bedroom, shower room, gymnasium.
West Wing, Ground Floor
Swimming pool complex with large pool, sitting/dining area in an Orangerie style with large roof light, changing room with shower, WC, steam room, plant room, private “west” entrance hall.
West Wing, First Floor
Hall, lounge, two bedrooms, kitchenette, shower room.
Garages
Integral to the house there is both a double garage and, connected, a triple garage both of which have remote controlled doors.
Outside Space
The garden extends to some 0.82 acre and is in a private conservation area surrounded by native and rare specimen trees. A sizeable lawn is great for kids and a stone sun terrace outside the west wing makes for a wonderful socialising spot in spring and summer months. In front of the garage is a large courtyard parking area. Pathways lead around either side of the property and to the very rear of the house is a further sundeck sitting area accessed both from the dining room and the utility.
Location
Drymen Wynd is a discreet and little-known private lane off Drymen Road, half mile south of Bearsden Cross. Its use is shared by only six others with only one property being an immediate neighbour. Whilst tucked away and out of sight it is only minutes’ walk to Bearsden railway station (1/3 mile). School catchment is Bearsden Primary (at The Cross) and the consistently high-performing Bearsden Academy. On Ledcameroch Road, and only ¾ mile away, is the junior school for The High School of Glasgow.
Sat NAV ref: G61 2UB
What3Words: mice.museum.pinks
COUNCIL TAX : BAND H
EPC : BAND C
TENURE : FREEHOLD
More Details
Situation: Private Garden
Council Tax Band: H
Tenure: Freehold
Your home may be repossessed if you do not keep up repayments on your mortgage.
There may be a fee for mortgage advice. The actual amount you pay will depend upon your circumstances. The fee is up to 1% but a typical fee is 0.3% of the amount borrowed.
Similar Properties
Looking To Sell Or Let?
Rettie is one of the most trusted and well-respected names in property. Our unrivalled market knowledge helps people from around the world buy, sell, let and develop property in Scotland and the North East of England - from city apartments and rural cottages to large townhouses and prime country homes, farms and estates. We deal with some of the most prestigious properties on the market, but provide the same exceptional standards of service and value for money to all our clients.
