Property Description
- Brilliant three bedroomed semi-detached villa
- Extended to side and rear – six principal apartments plus addition to kitchen
- Smartly appointed/tastefully decorated throughout
- Nicely arranged garden to rear – facing near due south
- Integral access to rear garden, off street driveway parking
- Bearsden Academy/Castlehill Primary catchment area
A fabulous example of the semi-detached villas constructed by John Lawrence, this lovely family home has been extended to both its side and rear to create a spacious and flexible living arrangement of six principal apartments over two levels – all very well appointed indeed and with various improvements carried out by our clients across the duration of their ownership. A great house in lovely pocket of Bearsden and situated in close proximity to excellent schooling at both primary and secondary level.
Throughout the property, good quality appliances, fixtures and fittings are to be found, with our clients having employed tasteful/contemporary decorations across the accommodation and features such as solid oak flooring throughout much of the ground floor adding a feel of genuine quality. With the layout that has been formed across the additions/alterations, this really is a house that delivers options – plenty of room for entertaining, relaxing and home working. The creation of the sun lounge to rear is a particular highlight.
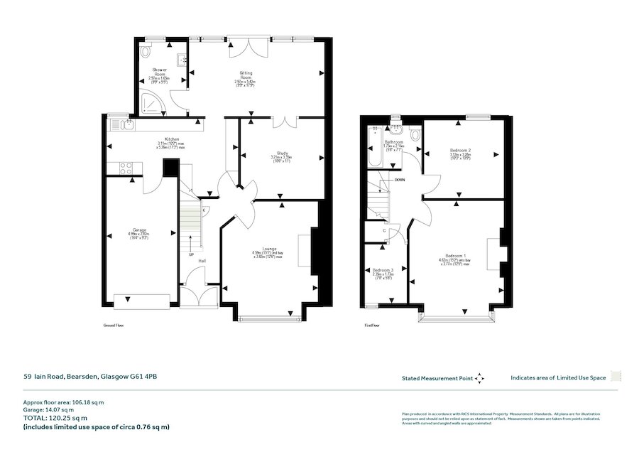
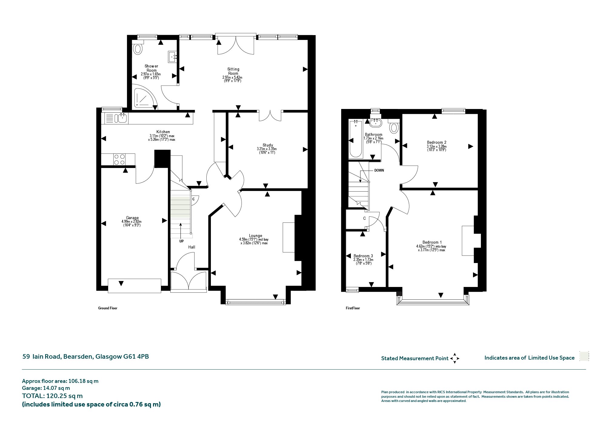
Our suite of HDR images, 360° immersive tour, HD video and floorplan will allow for thorough desktop appraisal of the property, with a summary of the accommodation to be found as follows:-
Summary of Accommodation
- Entrance vestibule through to reception hallway with staircase to first floor
- Bay windowed lounge with feature fireplace
- Study/home (could be utilised as TV Room/Snug
- Sun Lounge with French door access to rear garden – plenty space for dining table, great area for entertaining
- Kitchen with range of integrated appliances, plenty storage space, breakfast bar area
- Shower room (ground floor) with walk in shower enclosure
- Three
- piece family bathroom (first floor)
- Three bedrooms – two large doubles and additional nursery/single bedroom
The property features fantastic garden space to rear, with our clients have cleverly formed three distinct sections of monobloc, lawn and raised decking. Fully enclosed and facing near due south for the best of the sun in the summer months.
Situation
Close by Bearsden Academy and St Nicholas’ Primary with primary catchment at Castlehill. In Bearsden also the Junior School for the High School of Glasgow. Bearsden Cross about 1 mile away, just south of which is Bearsden railway station. Handy, late opening, store along the road at Ledi Drive with the well-stocked ‘Racetrack’ store/petrol station found further along on Duntocher Road.
Sat Nav Ref: G61 4pb
EPC : BAND D
COUNCIL TAX : BAND F
TENURE : FREEHOLD
More Details
Situation: Private Garden
Council Tax Band: F
Tenure: Freehold
Your home may be repossessed if you do not keep up repayments on your mortgage. There may be a fee for mortgage advice. The actual amount you pay will depend upon your circumstances.
Similar Properties
Looking To Sell Or Let?
Rettie is one of the most trusted and well-respected names in property. Our unrivalled market knowledge helps people from around the world buy, sell, let and develop property in Scotland and the North East of England - from city apartments and rural cottages to large townhouses and prime country homes, farms and estates. We deal with some of the most prestigious properties on the market, but provide the same exceptional standards of service and value for money to all our clients.
