Property Description
- Detached pre-war bungalow on substantial corner plot
- Great location in Bearsden’s Killermont district
- Partially modernised, requirement for further upgrading
- Fabulous potential for extension (subject to necessary permissions/warrants from the local authority)
- Recently rewired
- Killermont Primary/Boclair Academy catchment area
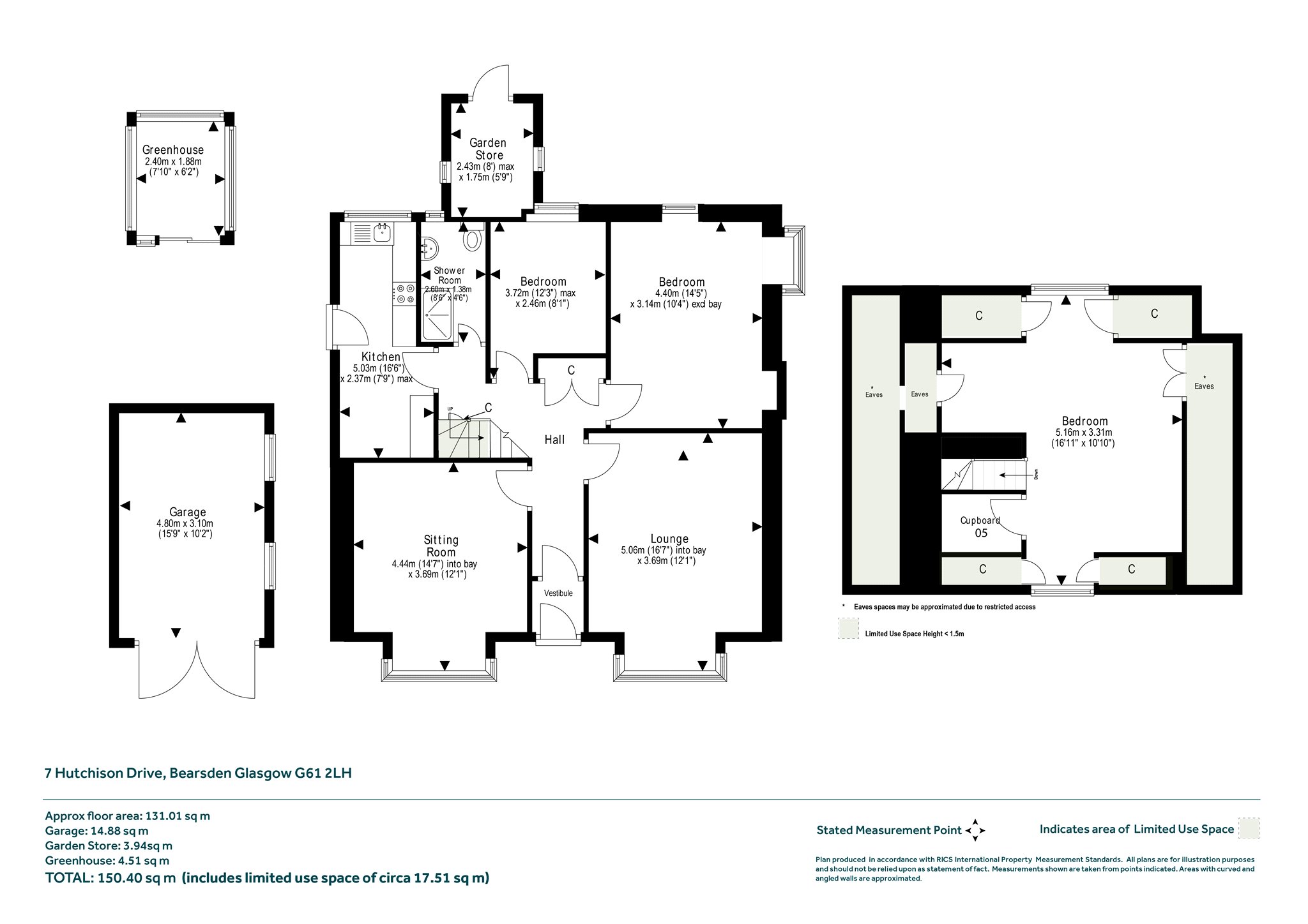
Proudly positioned on the corner of Hutchison and Rannoch Drive, this pre-war double bay fronted bungalow enjoys a situation of high appeal – set upon a substantial plot with fabulous garden space to rear and a shallow elevation to its front. In its current form, the property provides a three bedroom (one bedroom to attic level) and two public footprint yet, given the size of the plot and topography of the site, provides really exciting potential for significant/extension/development (subject to consents from East Dunbartonshire Council).
From the point of acquisition, our clients have carried out significant decorative upgrades to large parts of the property (two front rooms completely redecorated, new carpets through much of ground floor) along with carrying out a complete rewire (2025). Elements of the property do require modernisation/upgrading (kitchen and bathroom).
At the end of a long monobloc driveway is a detached single garage and the property has a greenhouse. Attached to the rear elevation and forming part of the house is a brick-built garden store in which the boiler is located. Below the house, with low level door at the driveway, is a cellar space for subfloor access.
The garden is a huge asset and whilst the house, and front garden, is set above the drive the rear garden, and east side garden, is level and provides a great space and as detailed above, a real opportunity for those seeking a larger home and the ambition to create something “of your own”.
Summary of Accommodation
- Reception hallway
- Three bedrooms (one to attic level)
- Two public room
- Kitchen
- Bathroom
Situation
The Killermont district of Bearsden is to the south easterly edge of the town and is nearby the expanses of Garscube Estate and the river Kelvin. It has long been a very popular district with an excellent local primary school at Killermont Primary and with the new (£40m+) premises of Boclair Academy. The property is not far from some local shops to be found on Rannoch Drive and is about half a mile from Kensington where there are further shops and a large Asda. A little further on from that is Hillfoot railway station with its regular links into Glasgow's West End and City Centre. Bearsden Cross, the heart of the town, is about one mile to the northwest.
Sat Nav Ref: G61 2lh
EPC : BAND C
COUNCIL TAX : BAND F
TENURE : FREEHOLD
More Details
Situation: Private Garden
Council Tax Band: F
Tenure: Freehold
Your home may be repossessed if you do not keep up repayments on your mortgage. There may be a fee for mortgage advice. The actual amount you pay will depend upon your circumstances.
Similar Properties
Looking To Sell Or Let?
Rettie is one of the most trusted and well-respected names in property. Our unrivalled market knowledge helps people from around the world buy, sell, let and develop property in Scotland and the North East of England - from city apartments and rural cottages to large townhouses and prime country homes, farms and estates. We deal with some of the most prestigious properties on the market, but provide the same exceptional standards of service and value for money to all our clients.
