Fixed Price £550,000
Semi Detached House
3 Bedrooms
2 Bathrooms
3 Reception Rooms
Private Garden
Garage
Off Street Parking
Property Description
- A simply charming traditional (1930’s) semi-detached bungalow
- Located on prime corner plot in a quiet, tree lined address
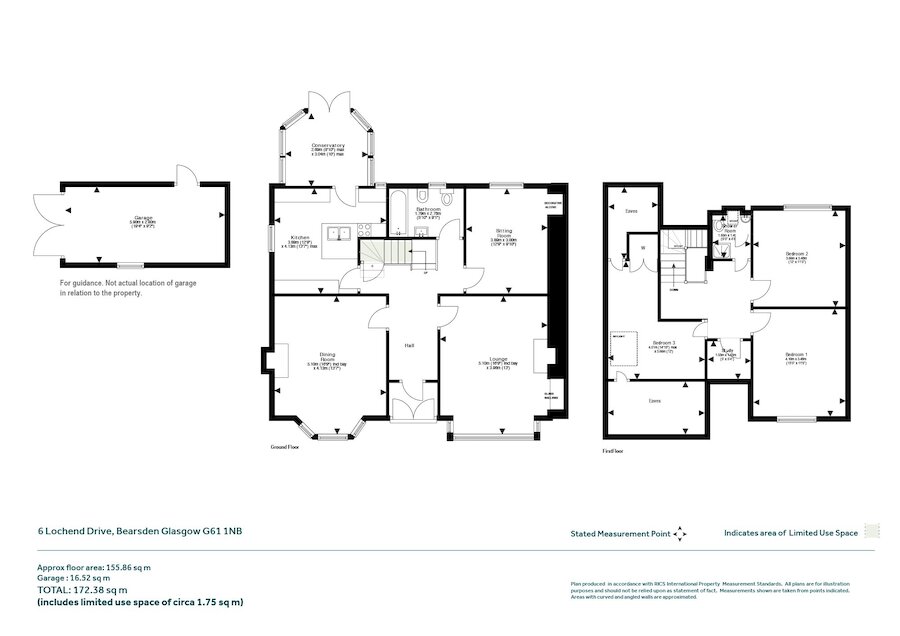
- Six principal apartments (currently set up as three bedrooms), generous floor space of 1,677 sq.ft
- Great room sizes throughout, beautifully retained period features
- Nicely stocked/arranged garden grounds
- Off street driveway parking and detached garage
- A wonderful home for couples and families alike
Located in a coveted, tree lined address that is formed of a charming and eclectic mix of pre-war homes, this characterful semi-detached bungalow occupies a level, well established corner plot and will provide a fantastic home for a wide variety of potential purchasers looking to acquire a property that delivers a seamless marriage of practical/flexible accommodation and abundant period charm. Early first-hand inspection is a must.
Initial inspection will showcase the delightful external aesthetic of a sharp white render, bay window projections, storm door entry with archway motif, mock Tudor cladding to dormer, and a pitched roof laid to rosemary tiles. Internally, the period details (including the most wonderful, original wooden panelling/doors/staircase) have all been very carefully retained over the years. Room, of course, for the successful bidding party to implement their own ideas pertaining to kitchens/bathrooms etc. but a home very much presented to market in ‘ready to go’ condition, where any significant works could be carried out over time.
Given the size/level topography of the site upon which the property is set, there is significant room for development/extension – of course subject to permission/warrant from the local authority. Great garden space to side and rear, with a variety of mature specimens providing splashes of colour/points of interest.
Our suite of HDR images, 360° immersive tour, HD video and floorplan will allow for thorough desktop appraisal of the property, with a summary of the accommodation to be found as follows:-
Summary of Accommodation
- Storm entry through to vestibule
- Reception hallway with staircase to first floor
- Bay windowed lounge
- Bay windowed dining room
- Sitting room (could be utilised as fourth bedroom)
- Breakfasting kitchen
- Conservatory/garden room
- Three double bedrooms to first floor
- Study
- Family bathroom (ground floor)
- Shower room (first floor)
Situation
The house is circa a mile from Bearsden Cross and just over 1/4 mile from Bearsden railway station. Not far away is the expanse of Colquhoun Park (great area for kids). School catchment is Colquhoun Primary (placement requests for Bearsden Primary have been granted in the past) with secondary at Boclair Academy. Within Bearsden is St Nicolas’ Primary, Bearsden Early Years Centre, and the junior school for The High School of Glasgow.
Sat Nav Ref: G61 1eb
EPC : BAND C
COUNCIL TAX : BAND F
TENURE : FREEHOLD
More Details
Situation: Private Garden
Council Tax Band: F
Tenure: Freehold
Your home may be repossessed if you do not keep up repayments on your mortgage. There may be a fee for mortgage advice. The actual amount you pay will depend upon your circumstances.
Similar Properties
Looking To Sell Or Let?
Rettie is one of the most trusted and well-respected names in property. Our unrivalled market knowledge helps people from around the world buy, sell, let and develop property in Scotland and the North East of England - from city apartments and rural cottages to large townhouses and prime country homes, farms and estates. We deal with some of the most prestigious properties on the market, but provide the same exceptional standards of service and value for money to all our clients.
