Property Description
- An executive three bedroomed apartment
- Part of exclusive/luxury development by Lorimer Homes
- Beautifully finished with various improvements made over the years
- Fabulous location just over half a mile from Bearsden Cross
- Lift to all floors
- New triple glazing 2025 (partial)
- 2nd floor position
- Balcony
- 3 Bedrooms (Bed 3 currently set up as home office/study – finished with Neville Johnston furniture)
- Ensuite Bathroom and two separate shower rooms
- Gas central heating (replacement gas central heating boiler by Worcester Bosch)
- Residents (allocated space) and visitor car parking
- Lovely, landscaped resident’s gardens
Lorimer Homes built Thorn Heights years circa 2005/2006 upon the leafy southerly grounds of the former seminary, Scotus College, the centrepiece of which is the Victorian mansion house, Chesters House. Lorimer were known for the quality of their designs and the high specification of their developments, and this is clearly on show at Thorn Heights. The two blocks (East and West) are beautifully finished in reconstituted stone and sit amidst lovely residents’ gardens off Chesters Road.
Here, No.8 is a fantastic example, having been fastidiously maintained across the duration of our clients stay and with replacement shower rooms, the refurbishment/upgrading of the kitchen and general modernisation/colourful decorative touches contributing to what stands as a warmly presented and very smart example of these outstanding apartments.
As a property, it should appeal to both couples and individuals, with many of the residents at Thorn Heights having moved from larger family homes seeking easy and comfortable living for their retirement/semi-retirement. Common areas are well maintained and managed by the appointed property management company, Redpath Bruce of Glasgow in conjunction with the residents.
Our suite of HDR images, 360° immersive tour, HD video and floorplan will allow for thorough desktop appraisal of the property, with a summary of the accommodation to be found as follows:-
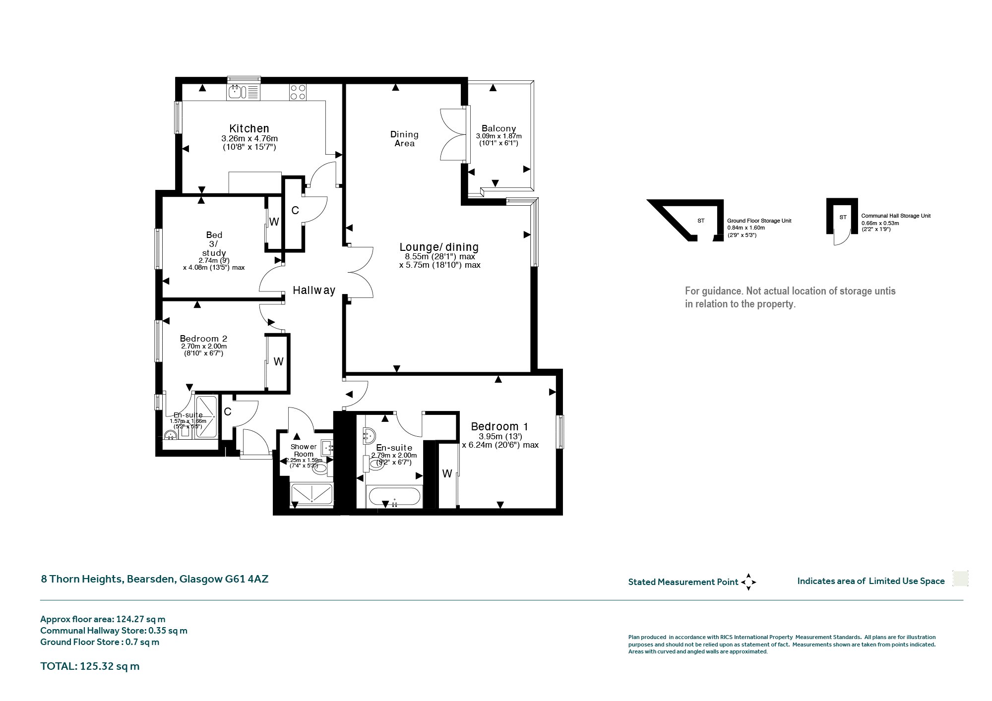
Summary of Accommodation
Reception hallway, spacious lounge/dining room (balcony accessed off dining area), dining kitchen with range of quality appliances, three double bedrooms (bed 3 currently set up as home office), full bathroom ensuite off principal bedroom, shower room ensuite off bed 2 and shower room off the hallway. It is our client’s intention to include all blinds, curtains, wall unit and sideboard in the dining room in the sale.
Situation
Thorn Heights enjoys a most established and leafy setting by virtue of the Chesters House origins. It is in the highly admired Thorn district and is located off Chesters Road. Nearby is Thorn Park, Thorn Tennis Club, and Bearsden Golf Course. Bearsden Cross, the heart of the town, is but half a mile to the east where there is an excellent selection of shops, cafés, restaurants, a well-stocked post office, and a Marks & Spencer food hall. Bearsden railway station is just south of The Cross and provides regular services to Glasgow’s West End and City Centre. The Cross has churches of various denominations, doctor and dental practices and, at its heart, Bearsden’s Library and Community Hub (temporarily closed).
This a very appealing luxury apartment.
Sat Nav Ref: G61 4az
EPC : BAND B
COUNCIL TAX : BAND G
TENURE : FREEHOLD
More Details
Situation: BalconyCommunal Garden
Council Tax Band: G
Tenure: Freehold
Your home may be repossessed if you do not keep up repayments on your mortgage.
There may be a fee for mortgage advice. The actual amount you pay will depend upon your circumstances. The fee is up to 1% but a typical fee is 0.3% of the amount borrowed.
Similar Properties
Looking To Sell Or Let?
Rettie is one of the most trusted and well-respected names in property. Our unrivalled market knowledge helps people from around the world buy, sell, let and develop property in Scotland and the North East of England - from city apartments and rural cottages to large townhouses and prime country homes, farms and estates. We deal with some of the most prestigious properties on the market, but provide the same exceptional standards of service and value for money to all our clients.
