Property Description
This professionally extended, three-bedroom red sandstone end terrace villa occupies a generous corner plot and enjoys an enviable position within the ever-popular Broomhill district of Glasgow’s West End. With a charming South/South-West facing rear garden and a paved double driveway, this property is ideal for families or professionals seeking a stylish, well-located home within minutes’ walk of the highly regarded local primary school and numerous transport links.
The property’s kerb appeal is immediately evident with its attractive dual frontage and charming gable-end extension, which subtly echoes the character of a traditional billiards room. The garden grounds wrap around the front and side of the house, are predominantly laid to lawn, and are bordered by dwarf walls and wrought iron fencing - creating a pretty & eye-catching exterior. The rear garden is well-positioned to catch afternoon and evening sun and has been thoughtfully landscaped with low-maintenance finishes for ease of upkeep and year-round enjoyment.
Internally, the accommodation is presented at an exceptionally high standard throughout, having been meticulously upgraded by the current owners. The bespoke gable-end extension greatly enhances the internal footprint and creates a wonderfully bright and flexible living space, perfectly suited to modern family life or indeed a professional couple who require dedicated space to work from home succesfully.
Broomhill is a hugely desirable area in Glasgow’s West End, known for its strong community feel and superb local amenities. The vibrant Crow Road high street is just a short walk from the property and offers an excellent selection of coffee shops, restaurants, and bars—perfect for weekend brunching or a casual mid-week meal. The area is well connected, with Jordanhill Railway Station approximately 0.5 miles from the property, providing quick links into the city centre and beyond. For those commuting by car, the location offers easy access to major road networks, making travel across West Central Scotland straightforward.
In recent years, Broomhill has become particularly popular with medical professionals, thanks to its proximity to the Queen Elizabeth University Hospital and Gartnavel General Hospital, both of which are within walking or cycling distance.
This is a rare opportunity to acquire a substantial, thoughtfully extended home in one of Glasgow’s most sought-after neighbourhoods. Early viewing is strongly advised to appreciate the quality, space and lifestyle on offer.
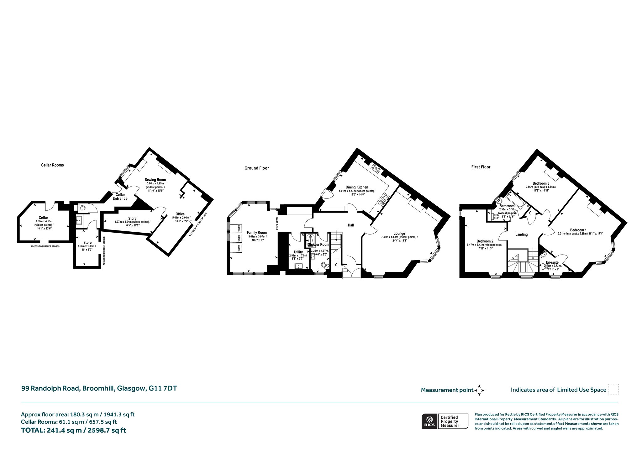
The Accommodation
Set over two principal levels, the property offers approximately 2598 sq ft of beautifully appointed, highly versatile family living space. Finished to an exceptional specification throughout, this home has been carefully improved and upgraded by the current owners, showcasing a real flair for interior design and attention to detail.
In addition, the property boasts a substantial basement (accessed externally from garden level), which has been cleverly adapted to provide a wealth of additional space—perfect for modern living. This lower level now includes extensive storage, a hobby room, a home office, and even a WC, making it ideal for home working or as a creative space.
The main accommodation comprises:
- A broad and welcoming reception hallway with staircase rising to the upper level
- Substantial main living room featuring beautiful traditional details, including a fireplace and bold skirtings
- Beautifully appointed dining kitchen with integrated appliances and direct access to the rear garden
- Exquisite family room formed within the show-stopping gable-end extension
- Utility room offering further practical space
- Stylish ground floor shower room, ideal for guests or family useUpstairs, the home offers:
- Three airy king-sized bedrooms, each with generous proportions and natural light
- Principal bedroom with en-suite WC
- Contemporary family bathroom with white suite, shower over bath, and attractive tilingOutside, the gardens are designed for enjoyment and ease. The front and side grounds are laid to lawn and enclosed by dwarf walls with wrought iron fencing, while the rear garden enjoys a sunny south/south-westerly aspect and has been landscaped using low-maintenance materials for minimal upkeep.LocationSet in the heart of Broomhill, the property benefits from a thriving local community and excellent amenities. The Crow Road high street is just a short walk away, offering an array of coffee shops, restaurants, and bars—perfect for a weekend brunch or a mid-week meal. Jordanhill Railway Station is located approximately 0.5 miles away, providing quick access to the city centre and beyond. For motorists, the property offers swift access to major road networks, ideal for commuting across West Central Scotland.________________________________________Attributes
- Prime West End location within sought-after Broomhill
- Within walking distance of Crow Road’s amenities including cafés, restaurants, and shops
- Approx. 0.5 miles from Jordanhill Railway Station
- Excellent road links providing fast access across West Central Scotland
- Walking/cycling distance to QEUH and Gartnavel Hospitals – ideal for medical professionals
- Professionally extended and significantly improved throughout
- Beautiful traditional features including original fireplaces, deep skirtings, and decorative facings
- Striking gable-end extension with a nod to traditional architecture
- Substantial basement level offering home office, hobby space, WC, and storage
- Stunning interior design with high-quality finishes throughout
- Three king-sized bedrooms, with principal bedroom en-suite
- Flexible family living space with multiple reception areas
- South/South-West facing rear garden designed for low maintenance
- Double monobloc driveway
- Generous corner plot with neat lawned gardens and classic red sandstone kerb appeal
EPC: E
Council Tax: G
Tenure : Freehold
More Details
Situation: Private Garden
Council Tax Band: G
Tenure: Freehold
Your home may be repossessed if you do not keep up repayments on your mortgage. There may be a fee for mortgage advice. The actual amount you pay will depend upon your circumstances.
Similar Properties
Looking To Sell Or Let?
Rettie is one of the most trusted and well-respected names in property. Our unrivalled market knowledge helps people from around the world buy, sell, let and develop property in Scotland and the North East of England - from city apartments and rural cottages to large townhouses and prime country homes, farms and estates. We deal with some of the most prestigious properties on the market, but provide the same exceptional standards of service and value for money to all our clients.
