Flat 1/5 Castle Chambers, 65 Renfield Street, City Centre, Glasgow, G2 1LF
Property Description
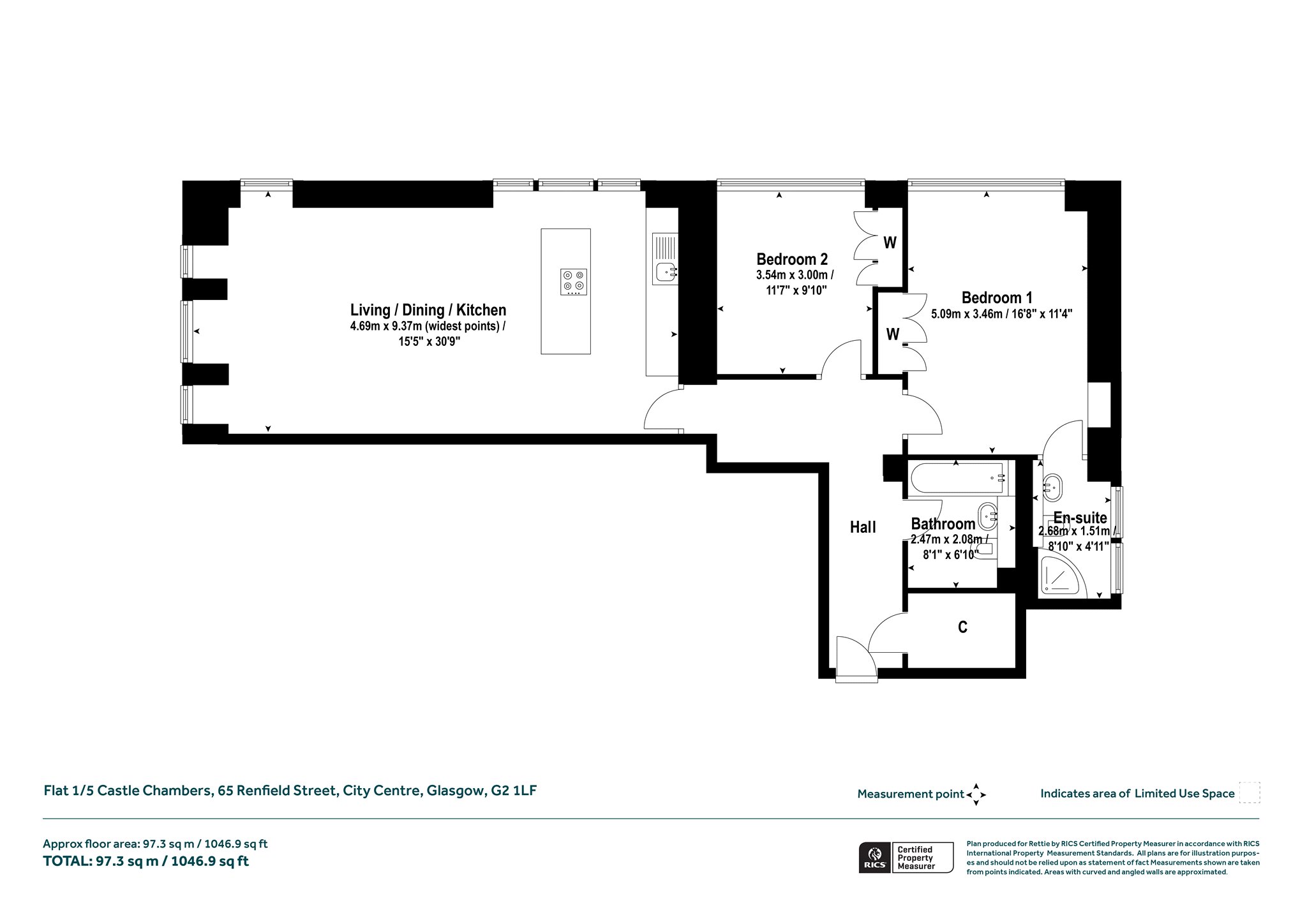
Situated on the first floor within the striking ‘Castle Chambers’ building and centrally located in the heart of Glasgow’s City Centre, this generously proportioned two-bedroom apartment extends to over 1046 sq ft and is ideally placed for enjoying the area's superb selection of amenities, from everyday shopping to leisure outlets, bars, restaurants, and excellent transport links by bus, rail, and road.
This prominent red sandstone building, set on the corner of Renfield Street and West Regent Street, was originally constructed in the early 1900s for G. & J. MacLachlan Brewers and later converted into spacious residential apartments almost a century later.
Entered via a secure communal entrance hallway and with lift and stair access, the building is factored and benefits an on-site 9-to-5 concierge acting as the first point of contact and overseeing the smooth daily running of the 34-flat building, managing everything from safety systems and maintenance coordination to refuse, utilities, and resident support. Combining the roles of caretaker, facilities manager, and compliance monitor, he ensures a safe, clean, and well-functioning environment for all residents. The interior of this bright and spacious apartment is well presented and features high ceilings, laminate wood effect flooring through the hall and main living space, and a contemporary layout that maximises space and light. A notable feature of the property is the superb open-plan living, dining and kitchen area, spanning over 30’ 9” this vast space has dual aspects east and south and kitchen complete with centre island. There are two well-proportioned double bedrooms, both with fitted wardrobes and with the principal bedroom benefiting from an en suite shower room. The main bathroom is positioned off the hall with white three-piece suite and over bath shower, alongside a deep storage cupboard. Additional benefits include electric wet central heating system and secondary glazing to all windows for heat and sound insulation.
Situation
The apartment is situated in the heart of the City Centre where there is an excellent selection of shops nearby on Buchannan Street and Argyle Street together with a wonderful choice of restaurants and bars. Transport links are on the doorstep via bus and by rail from both Glasgow Central and Glasgow Queen Street Station and Glasgow’s International Financial Services District within a few minutes’ walk. The property is also well placed for road links including the M8 motorway network.
Travel Directions
On foot from our Bath Street office, walk east down Bath Street and take the fourth right turn onto Renfield Street. Number 65 is one block down on the right-hand side.
More Details
EPC: E
Council Tax Band: F
Tenure: Freehold
Your home may be repossessed if you do not keep up repayments on your mortgage. There may be a fee for mortgage advice. The actual amount you pay will depend upon your circumstances.
Similar Properties
Looking To Sell Or Let?
Rettie is one of the most trusted and well-respected names in property. Our unrivalled market knowledge helps people from around the world buy, sell, let and develop property in Scotland and the North East of England - from city apartments and rural cottages to large townhouses and prime country homes, farms and estates. We deal with some of the most prestigious properties on the market, but provide the same exceptional standards of service and value for money to all our clients.
