Flat 4/2 Castle Chambers, 65 Renfield Street, City Centre, Glasgow, G2 1LF

City Centre, Glasgow, G2 1LF
Sold
Pin View on map

Offers Over £245,000

House

Apartment

Bed

3 Bedrooms

Bathroom

2 Bathrooms

Reception

1 Reception Room

Size

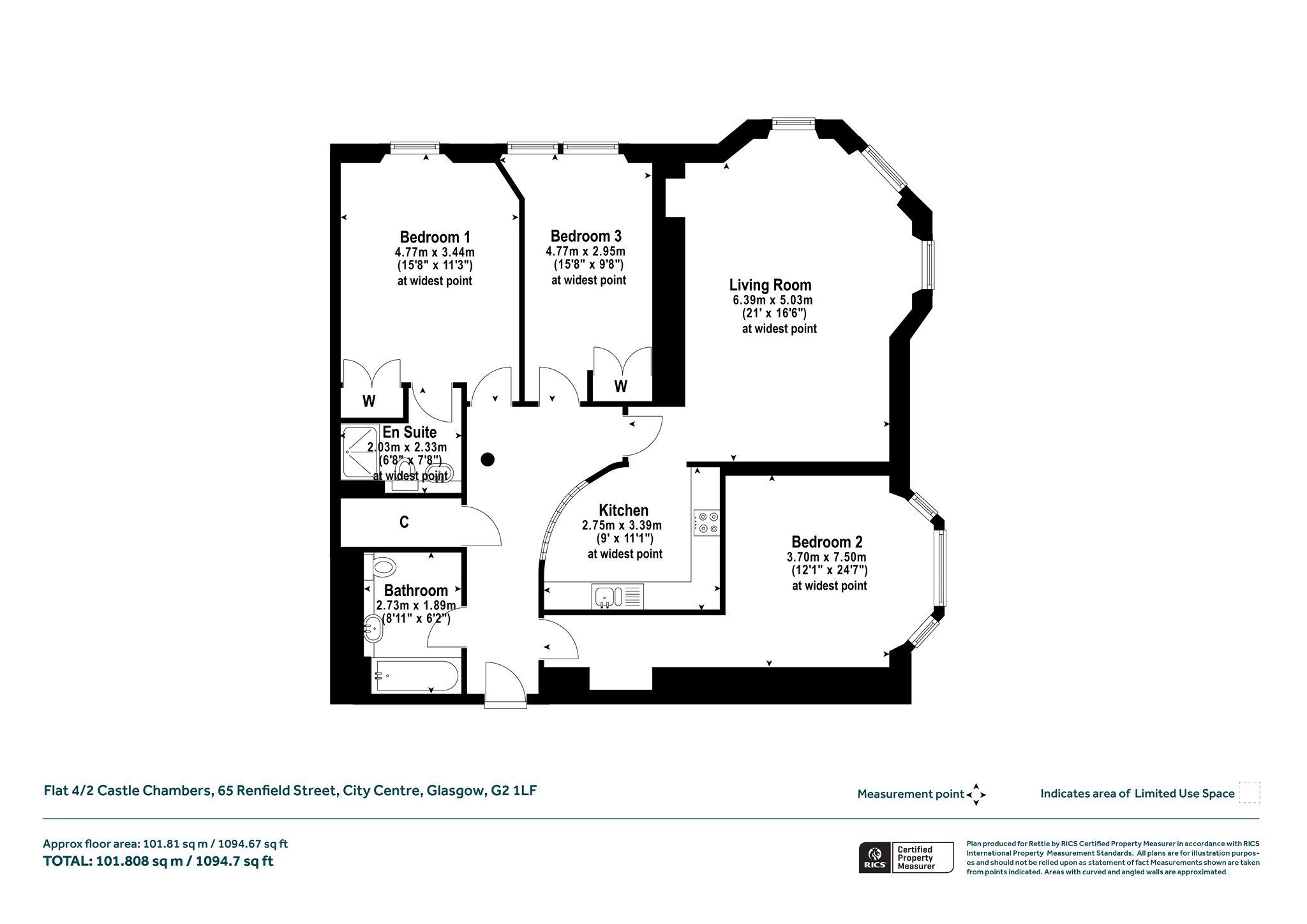
1,094 sq.ft

Telephone

Property Description

Generously proportioned, at over 1094 sq ft, this three-bedroom apartment occupies a fourth-floor position within Castle Chambers, an impressive red sandstone building in the heart of the City Centre. Situated on the corner of Renfield Street and West Regent Street. Originally constructed in early 1900 for G. & J. MacLachlan Brewers, the building was converted into residential apartments almost 100 years later. There is a caretaker on site, an active residents committee and the location is exceptionally well placed to take advantage of an enviable selection of local amenities including, every-day and leisure shopping, excellent transport links by bus, rail and road and a wide selection of bars and restaurants.

The building is factored and benefits an on-site 9-to-5 concierge acting as the first point of contact and overseeing the smooth daily running of the 34-flat building, managing everything from safety systems and maintenance coordination to refuse, utilities, and resident support. Combining the roles of caretaker, facilities manager, and compliance monitor, he ensures a safe, clean, and well-functioning environment for all residents.

Entered via secure communal entrance and with lift and stair access to a very spacious entrance hallway with feature pillars. The interior is bright and well-presented having just been painted throughout, notable highlights include a fabulous main lounge/dining room extending to over 21 ft into the feature circular bay window offering near 270 degree views over the city skyline, set back from the main living space is semi open plan kitchen with a range of modern base and wall mounted units, there are three double bedrooms, two with fitted wardrobes and storage, one with an en suite shower room and there is a main bathroom with white three-piece suite and over bath shower. The property will suit a wide range of buyers, whether you are looking for a spacious city apartment or a buy to let investment.

Situation

The apartment is situated in the heart of the City Centre where there is an excellent selection of shops nearby on Sauchiehall Street, Buchanan Street and Argyle Street together with a wonderful choice of restaurants and bars. Transport links are on the doorstep via bus and by rail from both Glasgow Central and Glasgow Queen Street Station and Glasgow’s International Financial Services District within a few minutes’ walk. The property is also well placed for road links including the M8 motorway network.

Travel Directions

On foot from our Bath Street office, walk east down Bath Street and take the fourth right turn onto Renfield Street. Number 65 is one block down on the right-hand side.

More Details

EPC: D
Council Tax Band: G
Tenure: Freehold

Contact Us

Lisa Pitchers MRICS

Lisa Pitchers MRICS

Associate Director
Craig Roberts

Craig Roberts

Mortgage & Protection Advisor
Mortgage Calculator
Monthly payments
Please set an interest rate.

Your home may be repossessed if you do not keep up repayments on your mortgage.

There may be a fee for mortgage advice. The actual amount you pay will depend upon your circumstances. The fee is up to 1% but a typical fee is 0.3% of the amount borrowed.

Tax Calculator
LBTT calculator for properties purchased in Scotland. Stamp Duty calculator for properties purchased in England.
Land & buildings transaction tax (LBTT)
= £0
New build house with stone and timber cladding

Looking To Sell Or Let?

Rettie is one of the most trusted and well-respected names in property. Our unrivalled market knowledge helps people from around the world buy, sell, let and develop property in Scotland and the North East of England - from city apartments and rural cottages to large townhouses and prime country homes, farms and estates. We deal with some of the most prestigious properties on the market, but provide the same exceptional standards of service and value for money to all our clients.