Offers Over £495,000
Terraced House
4 Bedrooms
3 Bathrooms
2 Reception Rooms
Private Garden
Garage
Off Street Parking
Property Description
Set within a sought-after pocket of Clarkston, this charming blonde sandstone end-terrace villa enjoys an enviable position overlooking the bowling green, offering a peaceful outlook and a strong sense of privacy.
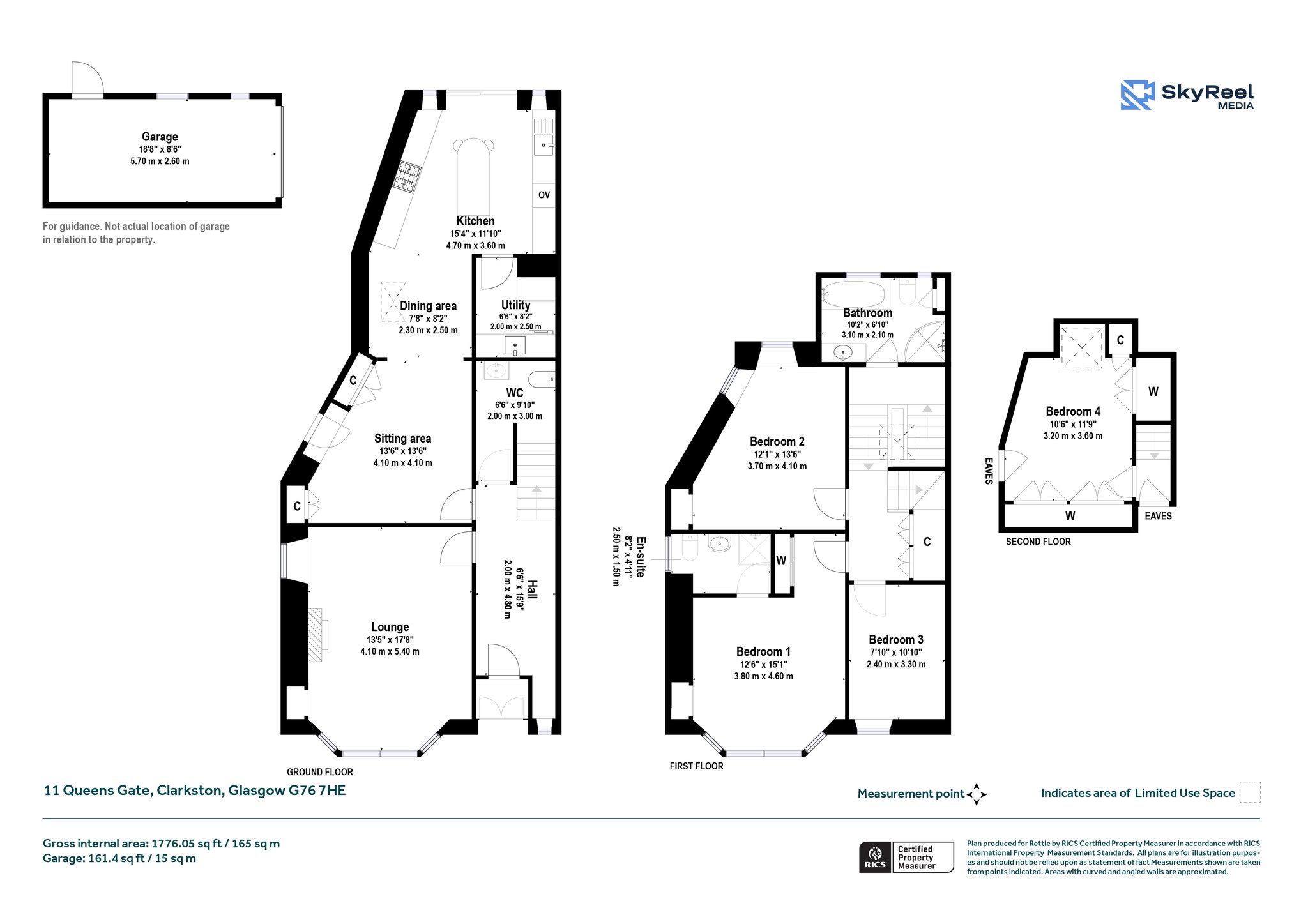
The accommodation is thoughtfully arranged over three levels and beautifully balances traditional character with modern living. On the ground floor, a welcoming hallway with herringbone flooring leads to a bright and spacious bay-windowed lounge with a feature wood burning stove, while a separate sitting room to the rear provides a more relaxed retreat. From the sitting room the dining area flows into a stunning kitchen extension that benefits from underfloor heating and which forms the true heart of the home—featuring a contemporary, well-appointed kitchen with ample space for dining and entertaining, enhanced by excellent natural light and a seamless connection to the garden. A useful utility room and WC complete the ground floor.
Upstairs, the first floor hosts three well-proportioned bedrooms, including a particularly generous principal bedroom with en-suite, along with a stylish family bathroom. A further staircase leads to the second floor where an additional bedroom offers flexible use as guest accommodation or a home office.
Externally, the property benefits from its end-terrace position, allowing for added light and a sense of openness. The gardens include generous patio and decked areas perfect for al-fresco dining and a lovely lawned area with mature trees. At the front this property benefits from its end of cul-de-sac position providing a large gravel driveway and detached garage providing excellent storage or secure parking.
Combining period charm, a striking modern extension, and a prime location, this is a rare opportunity to acquire a distinctive home in the heart of Clarkston.
Clarkston is popular due to the proximity of the highly regarded local schooling at both primary and secondary level. Clarkston provides a selection of restaurants, banks, post office, doctor’s surgeries and health centre. Regular bus and rail services make it an ideal base for commuting, as do excellent road links leading in turn to motorway networks and in turn the central belt. A selection of parks and leisure facilities including Golf, Bowling and Tennis Clubs are also available close by.
More Details
Council tax: F
EPC: D
Tenure: Freehold
Your home may be repossessed if you do not keep up repayments on your mortgage.
There may be a fee for mortgage advice. The actual amount you pay will depend upon your circumstances. The fee is up to 1% but a typical fee is 0.3% of the amount borrowed.
Similar Properties
Looking To Sell Or Let?
Rettie is one of the most trusted and well-respected names in property. Our unrivalled market knowledge helps people from around the world buy, sell, let and develop property in Scotland and the North East of England - from city apartments and rural cottages to large townhouses and prime country homes, farms and estates. We deal with some of the most prestigious properties on the market, but provide the same exceptional standards of service and value for money to all our clients.
