1/3 Hartington Place, Bruntsfield, Edinburgh, EH10 4LF
Offers Over £280,000
Upper Floor Apartment
2 Bedrooms
1 Bathroom
1 Reception Room
694 sq.ft
Off Street Parking
Property Description
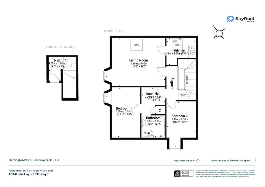
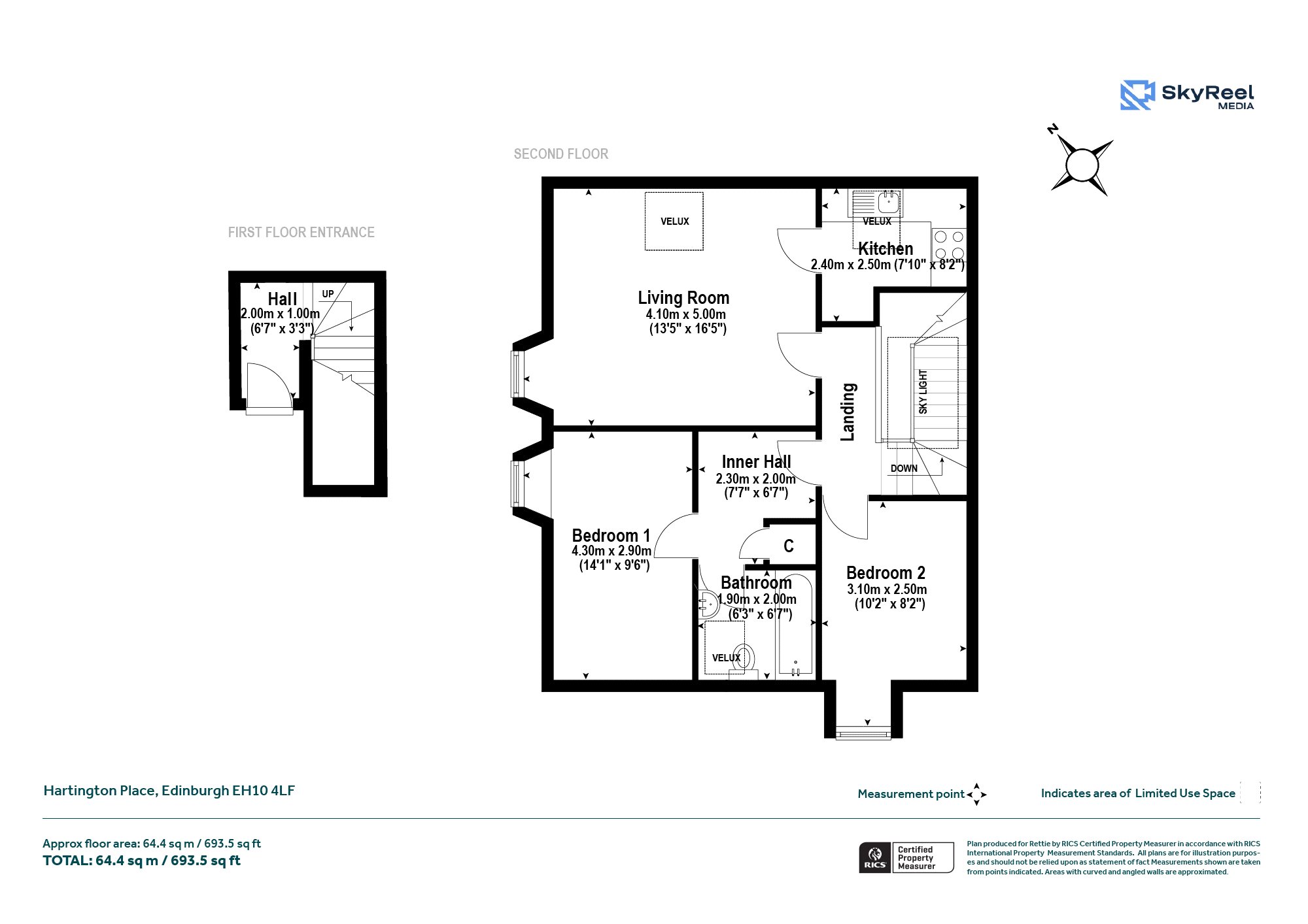
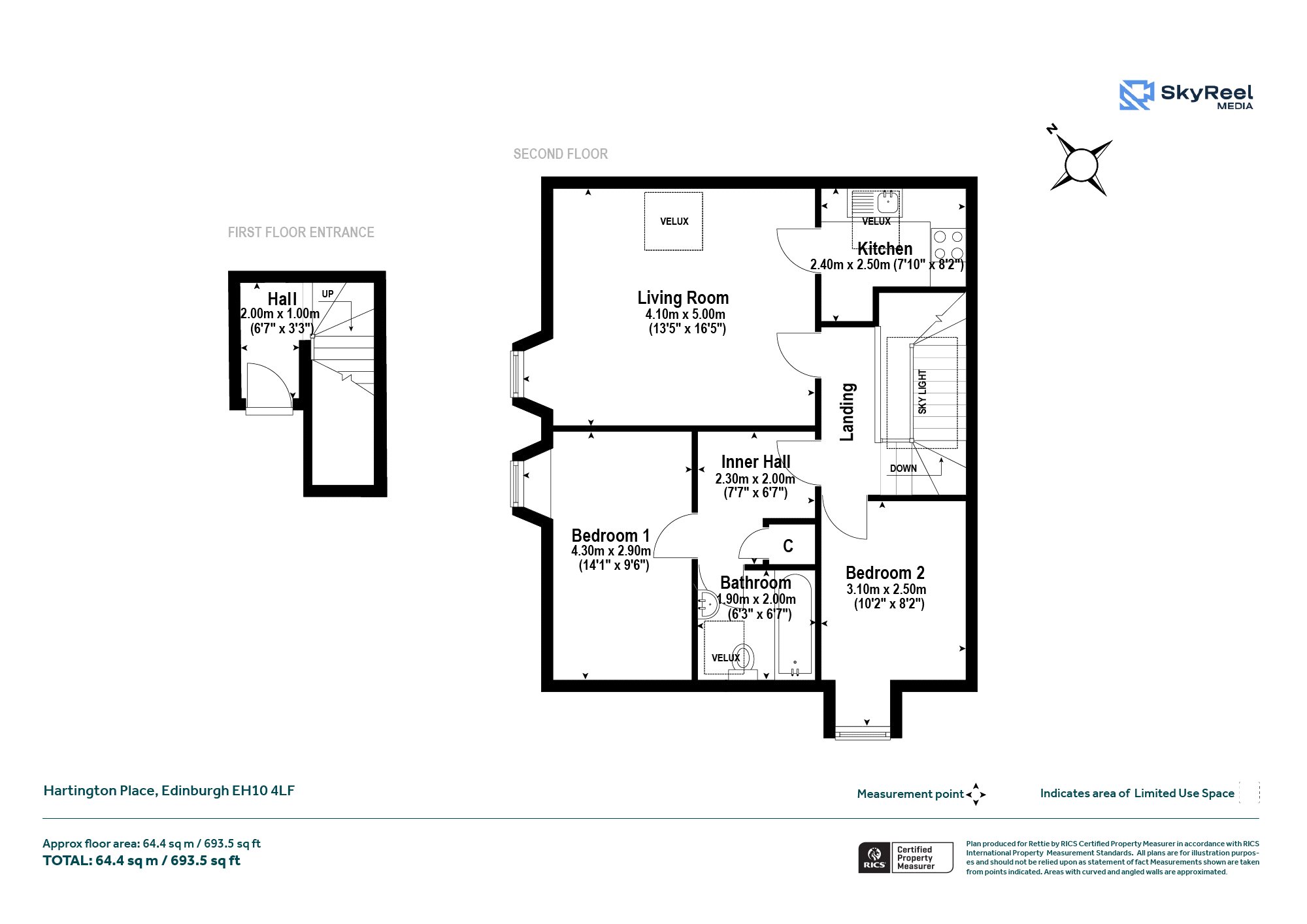
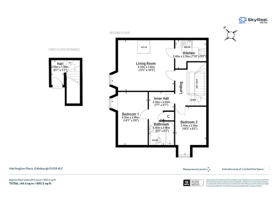
Situated on the top floor of a traditional built end terrace property in the ever-popular Bruntsfield area of Edinburgh, this attractive two-bedroom flat offers well-balanced accommodation, with excellent natural light, generous room sizes, and a highly convenient location, the property will appeal to first-time buyers, professionals, and buy-to-let investors alike.
Entered through a private staircase from the second floor of the building, the central landing space and inner hall with built in storage, provides a welcoming and bright space lit by the copula. The living room offering ample room for both lounge and dining furniture with Velux roof light draws natural light into the room, enhancing the sense of space and creating a comfortable setting for everyday living and entertaining. The kitchen is accessed directly from the living room provides a practical and well laid out space with good storage and worktop space.
The principal bedroom, a double room comfortably accommodating a full range of bedroom furniture located at the back of the property. Separated by the bathroom, a three-piece suit titled throughout, the second bedroom is another well-proportioned room, suitable for use as a guest bedroom, child’s room, or home office completing the accommodation.
Summary Of Accommodation
Inner Hall and Landing, Kitchen, Sitting/Dining Room, Principal Double Bedroom, Second Double Bedroom, Bathroom
Location
Located within the Bruntsfield area, Hartington Place accessed from Viewforth lies just moments from Bruntsfield Links and The Meadows, offering open green spaces right on your doorstep. Within walking distance an array of cafés, restaurants, boutiques, and independent shops line Bruntsfield Place and nearby Morningside Road. The area also boasts excellent transport links, highly regarded local schooling, and proximity to Edinburgh Napier University and The University of Edinburgh.
More Details
Council Tax: D
EPC: C
Tenure: Freehold
Viewing by appointment via Rettie&Co
Your home may be repossessed if you do not keep up repayments on your mortgage. There may be a fee for mortgage advice. The actual amount you pay will depend upon your circumstances.
Similar Properties
Looking To Sell Or Let?
Rettie is one of the most trusted and well-respected names in property. Our unrivalled market knowledge helps people from around the world buy, sell, let and develop property in Scotland and the North East of England - from city apartments and rural cottages to large townhouses and prime country homes, farms and estates. We deal with some of the most prestigious properties on the market, but provide the same exceptional standards of service and value for money to all our clients.


































