22 Pentland Terrace, Edinburgh, EH10 6HB

Edinburgh, EH10 6HB
New
Pin View on map

Offers Over £845,000

House

Terraced House

Bed

4 Bedrooms

Bathroom

2 Bathrooms

Reception

2 Reception Rooms

Size

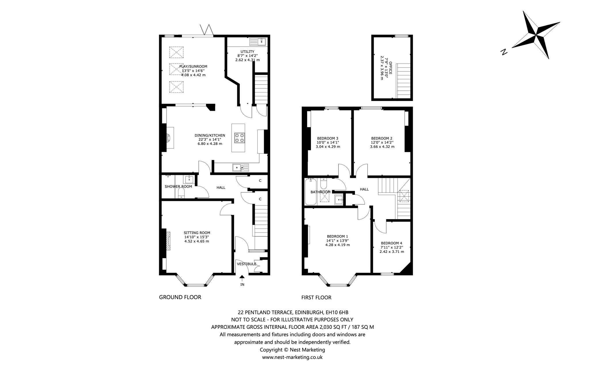
2,030 sq.ft

Tree

Private Garden

Telephone

Property Description

An exciting opportunity to acquire a fabulously presented, extended terraced family home in the sought after Southside of Edinburgh. Boasting four bedrooms on the first floor and perfect family living/ entertaining on the ground floor, this perfect home allows easy modern living, as well as having a separate sitting room. Benefiting from an extension comprising a sunroom leading out to the south/ west facing garden with patio and outdoor dining area, as well as a good sized lawn, this makes the perfect family home. There is also a utility room and shower room, and plentiful storage, completing the ground floor. Upstairs, the four bedrooms are all good sizes and there is a family bathroom on this level too. There is also an office on the first floor, accessed via stairs up from the kitchen.

The property is perfectly located very close to Morningside, a prestigious area in the south of the city, offering a wide range of independent retailers, coffee shops, bars and restaurants as well as Waitrose and M&S Simply Food. There are further supermarkets & shopping facilities available at nearby Straiton Retail Park, Colinton Mains & Hunters Tryst.

The property is also well located for the independent Dominion Cinema and Church Hill Theatre, together with a good range of leisure facilities, golf courses, wonderful walks in Braidburn Valley Park, The Hermitage of Braid, the Pentlands and Blackford Hill. There are great bus links into the city centre, easy access on to the City Bypass and the property is located in the school catchment area for South Morningside Primary and Boroughmuir High School, as well as being within easy access of a number of private schools, including George Watson’s College and George Heriots.

Epc:

Council Tax Band: G

Tenure: Freehold

More Details

Situation: Private Garden
Council Tax Band: G
Tenure: Contact Branch

Request More Details

Faith Peden

Faith Peden

Senior Sales Negotiator
Bob Duncan Cert CII (MP)

Bob Duncan Cert CII (MP)

Managing Director
Mortgage Calculator
Monthly payments
Please set an interest rate.

Your home may be repossessed if you do not keep up repayments on your mortgage.

There may be a fee for mortgage advice. The actual amount you pay will depend upon your circumstances. The fee is up to 1% but a typical fee is 0.3% of the amount borrowed.

Tax Calculator
LBTT calculator for properties purchased in Scotland. Stamp Duty calculator for properties purchased in England.
Land & buildings transaction tax (LBTT)
= £0
New build house with stone and timber cladding

Looking To Sell Or Let?

Rettie is one of the most trusted and well-respected names in property. Our unrivalled market knowledge helps people from around the world buy, sell, let and develop property in Scotland and the North East of England - from city apartments and rural cottages to large townhouses and prime country homes, farms and estates. We deal with some of the most prestigious properties on the market, but provide the same exceptional standards of service and value for money to all our clients.