98/3 Whitehouse Loan, Bruntsfield, Edinburgh, EH9 1BD
Property Description
Closing Date Set - Wednesday 8th at 12 Noon
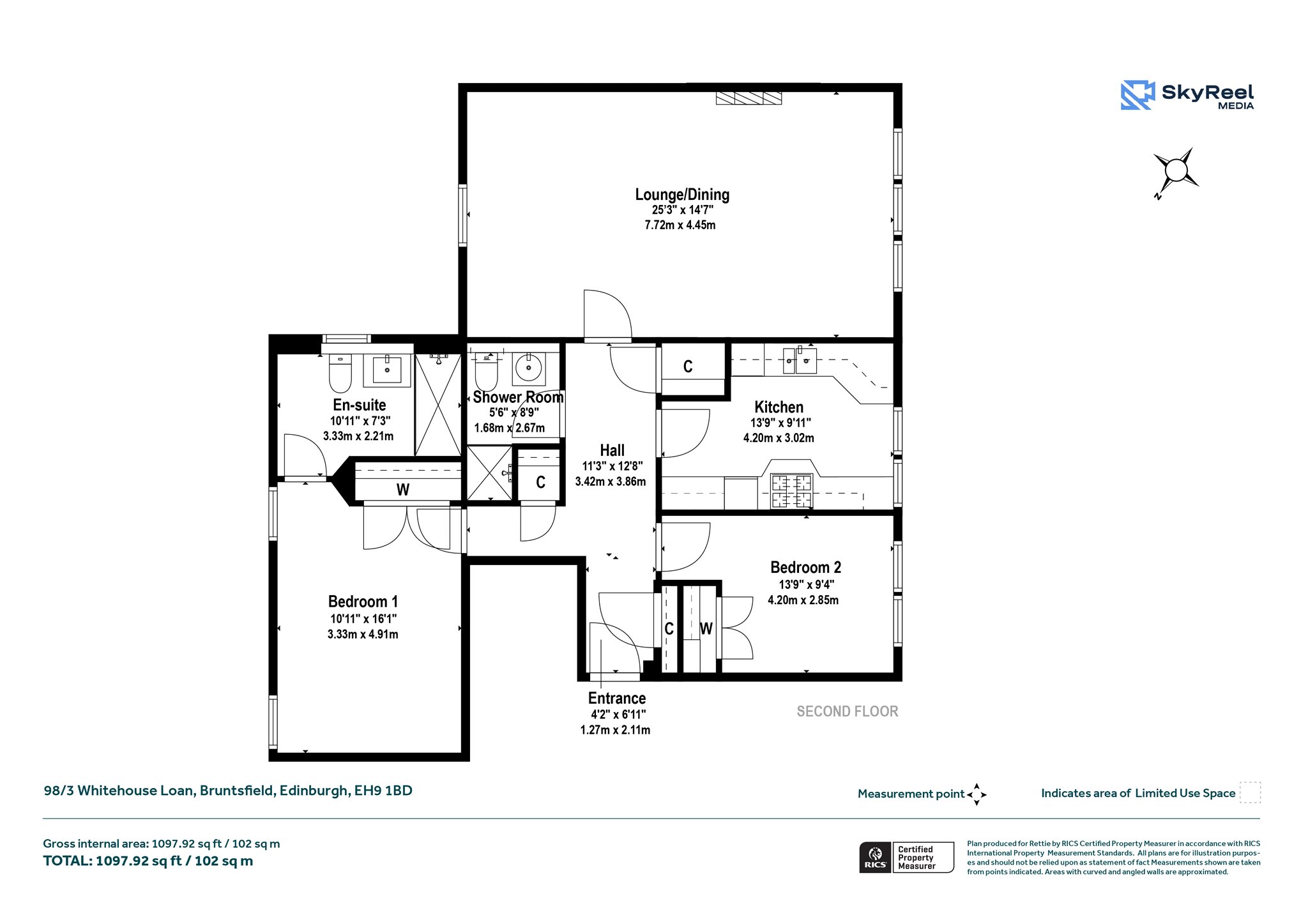
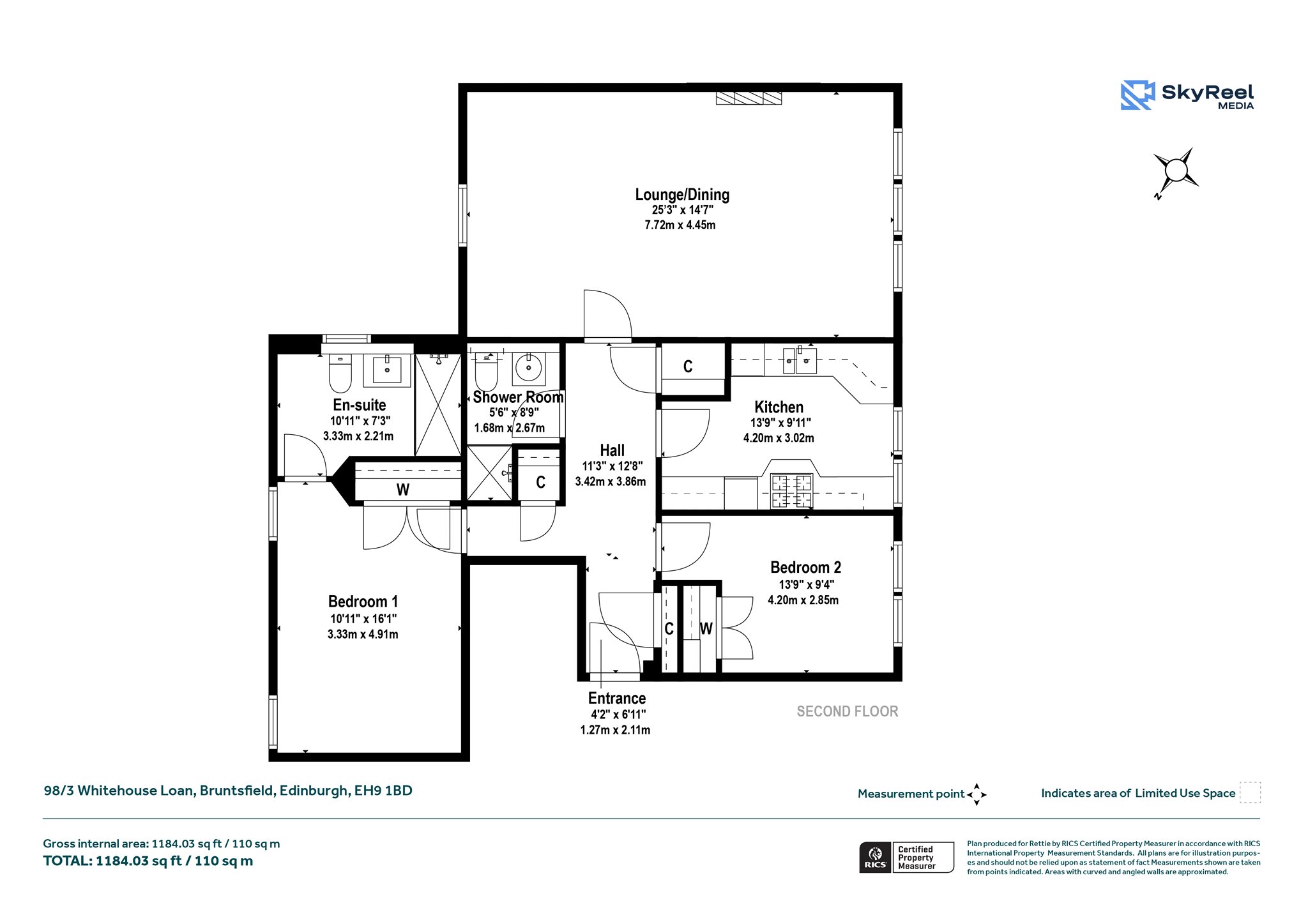
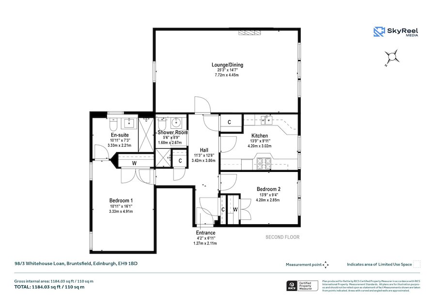
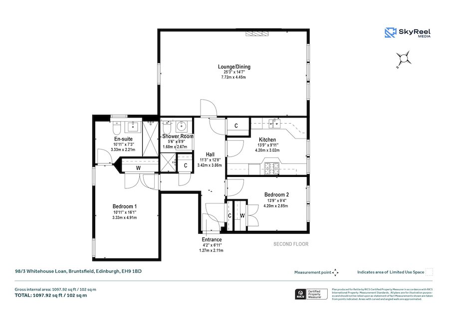
Enjoying an exclusive, leafy setting, 98/3 Whitehouse Loan is a fantastic opportunity to acquire a two bedroom, second floor apartment, converted by the prestigious AMA Homes in the 1990s. Entered via a lift, this 1,184 sq ft apartment comprises a generously proportioned sitting/ dining room, fully equipped kitchen with space for dining table, integrated appliances, two double bedrooms offering built in wardrobes and one with a well sized en suite bathroom. The apartment benefits from a separate shower room, and hall storage cupboard. Externally, the property further benefits from an additional lockable storage cupboard, well-maintained communal gardens and a private parking space.
Bruntsfield is a highly sought-after residential area, lying less than one mile to the south of Edinburgh’s city centre. The area - which has an abundance of independent retailers, cafés, restaurants, and bars - is moments away from both the picturesque green spaces of the Meadows and Bruntsfield Links. These spaces offer a variety of activities including tennis courts, pitch and putt, BBQ spots and pleasant walks.
The area is also popular with families and offers a selection of highly regarded schools nearby. It falls into the catchment area of Bruntsfield Primary School and Boroughmuir High School. There are excellent bus services from Bruntsfield Place into the city centre.
Private parking space with EV charger, accessed via secure. remote controlled entrance gate.
Access to communal grounds.
Communal bicycle store/lock up.
The washing machine, curtains in the second bedroom and the ceiling lights in the living room will not be included in the sale.
More Details
Council Tax: G
EPC: B
Tenure: Freehold
Viewing by appointment via Rettie&Co
Your home may be repossessed if you do not keep up repayments on your mortgage.
There may be a fee for mortgage advice. The actual amount you pay will depend upon your circumstances. The fee is up to 1% but a typical fee is 0.3% of the amount borrowed.
Similar Properties
Looking To Sell Or Let?
Rettie is one of the most trusted and well-respected names in property. Our unrivalled market knowledge helps people from around the world buy, sell, let and develop property in Scotland and the North East of England - from city apartments and rural cottages to large townhouses and prime country homes, farms and estates. We deal with some of the most prestigious properties on the market, but provide the same exceptional standards of service and value for money to all our clients.
