7/1 Leamington Terrace, Bruntsfield, Edinburgh, EH10 4JW
Offers Over £595,000
First Floor Apartment
4 Bedrooms
2 Bathrooms
1 Reception Room
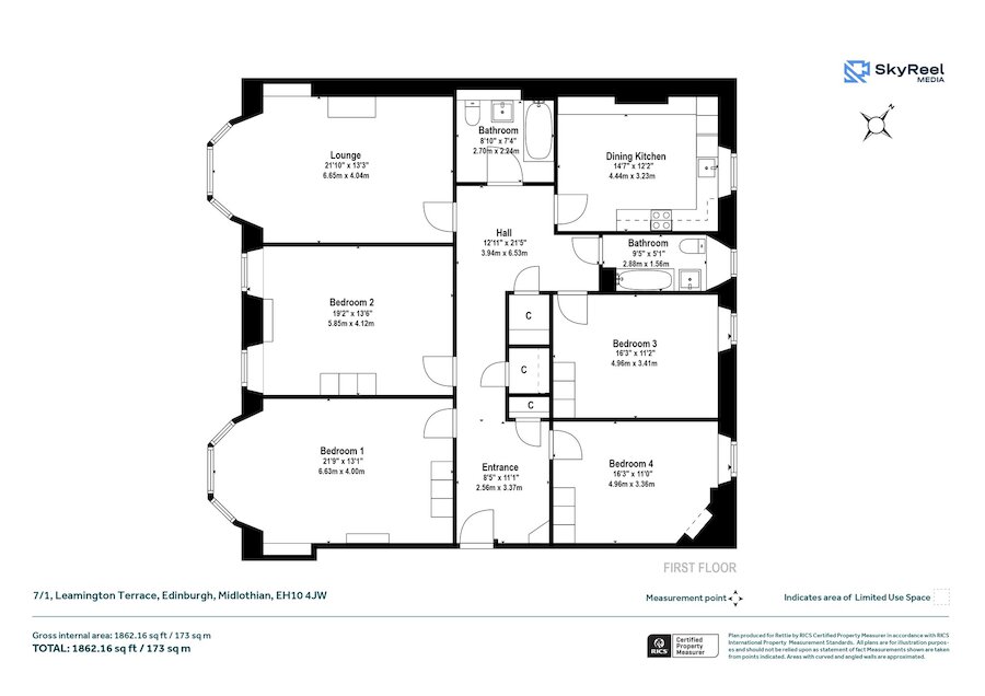
1,862 sq.ft
On Street/Permit
Property Description
Occupying a prime first floor, corner position within a handsome Victorian tenement, this substantial four bedroom flat extends to an impressive 1,862 square feet and combines elegant period architecture with exceptional room proportions, this is a rare opportunity to acquire a truly distinguished home in one of Edinburgh’s most prestigious addresses.
Entered via a large, open hallway, this well maintained flat proves spacious accommodation. Comprising a large sitting room with bay window, a well equipped dining kitchen, with fantastic views towards Edinburgh Castle, four double bedrooms and two bathrooms, this is a perfect flat for families, couples and investors alike. The principal bedroom is large with beautiful bay window, and all other bedrooms are very good sizes. Communal patio space completes this lovely flat.
estled in the heart of the highly desirable Bruntsfield district, this property enjoys a tranquil yet central setting on the elegant Leamington Terrace, close to The Meadows, local cafés, boutiques, and excellent transport links.
More Details
EPC: C
Council Tax Band: E
Tenure: Freehold
Your home may be repossessed if you do not keep up repayments on your mortgage. There may be a fee for mortgage advice. The actual amount you pay will depend upon your circumstances.
Similar Properties
Looking To Sell Or Let?
Rettie is one of the most trusted and well-respected names in property. Our unrivalled market knowledge helps people from around the world buy, sell, let and develop property in Scotland and the North East of England - from city apartments and rural cottages to large townhouses and prime country homes, farms and estates. We deal with some of the most prestigious properties on the market, but provide the same exceptional standards of service and value for money to all our clients.
